Villa d'Arte werkt intensief samen met Baerz & Co Luxury Homes International, het trefpunt waar exclusieve huizen en veeleisende kopers samenkomen. Hieronder vindt u een geselecteerd aanbod van de meest exclusieve huizen op alle hot-spots in 20 landen rond de Middellandse zee, de Alpen, Mexico en Dubai.

AMSTERDAM
Herengracht 6 - 1015 BK
Netherlands

Sander Bovenkerk profile image
Sander Bovenkerk
Real estate agent
€2,850,000 k.k.
Living Area
382m2
Plot Size
92m2
Bedrooms
5

Description

Herengracht 6, 1015 BK Amsterdam

Living on the Herengracht means living in the heart of Amsterdam’s canal district, where history, character, and vibrancy come together. At number 6 you will find an impressive canal house dating from 1880, part of a monumental row of façades and located in one of the most sought-after parts of the city. With a living area of approximately 382 m², spread over a basement, bel étage and four residential floors, this property offers a unique opportunity to create a spacious canal residence in the center of Amsterdam. The combination of authentic details, generous rooms, and a central location makes this an exceptional property within the UNESCO World Heritage area.

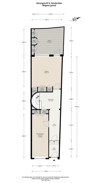
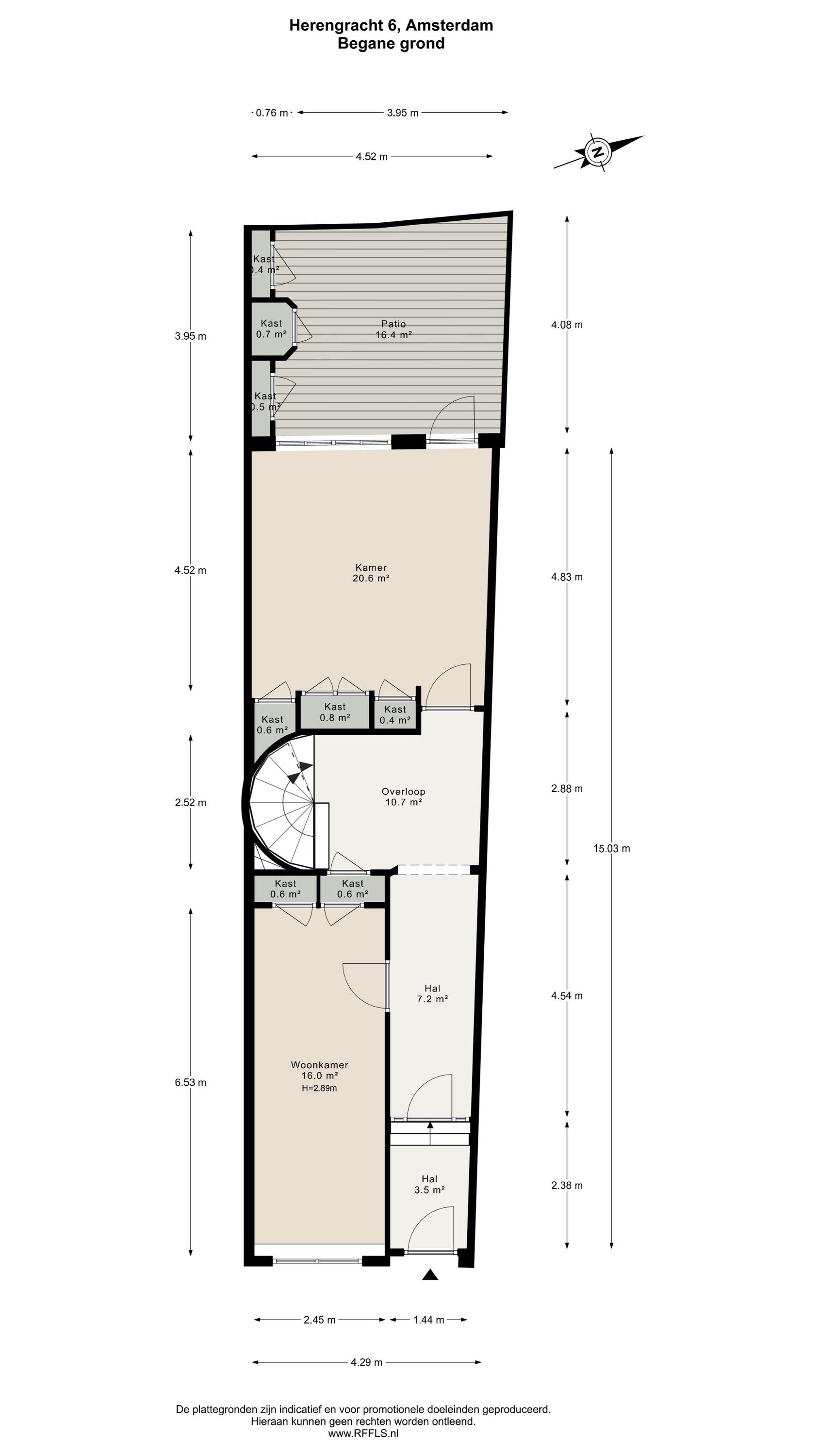
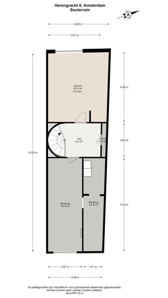
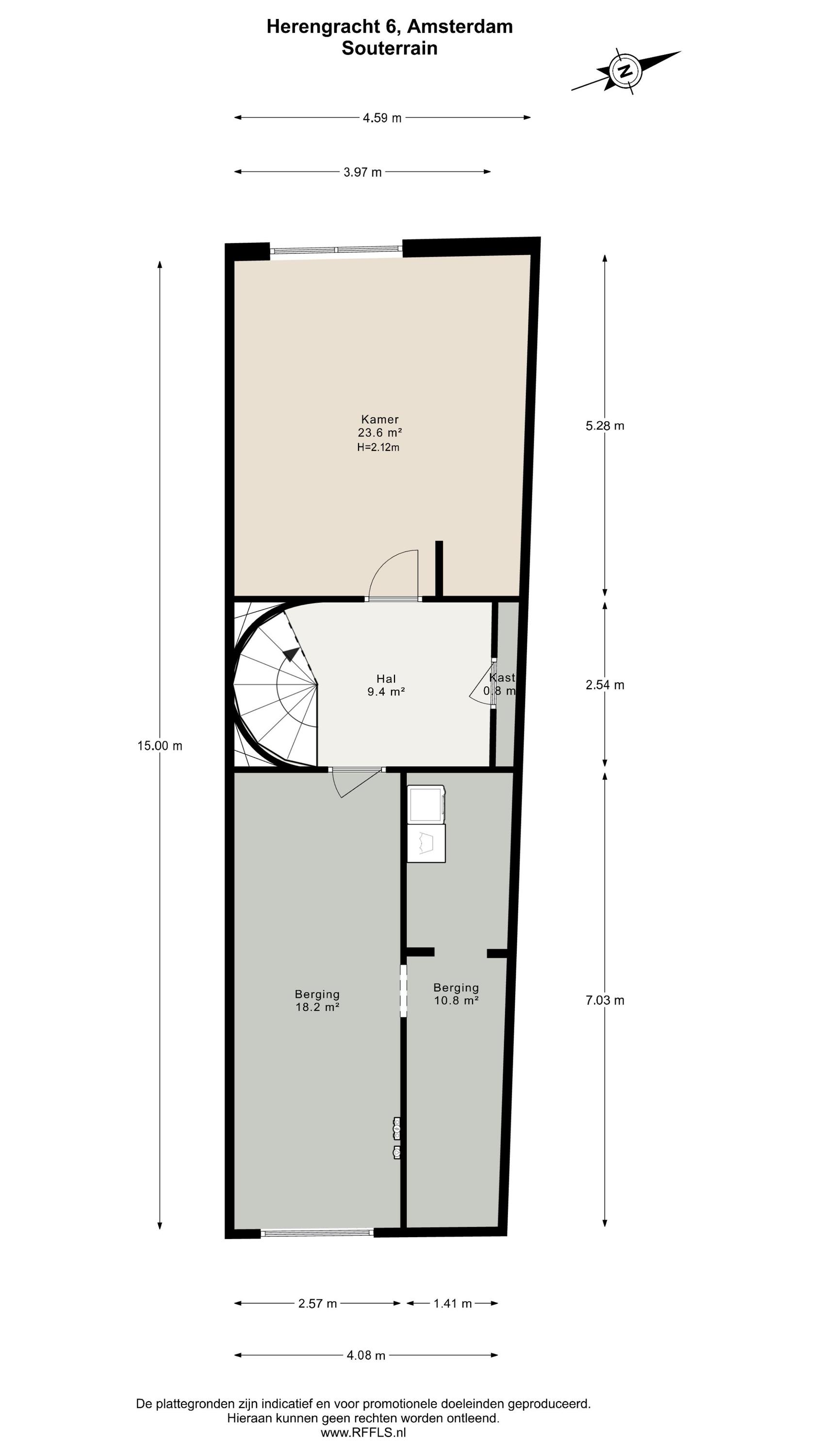
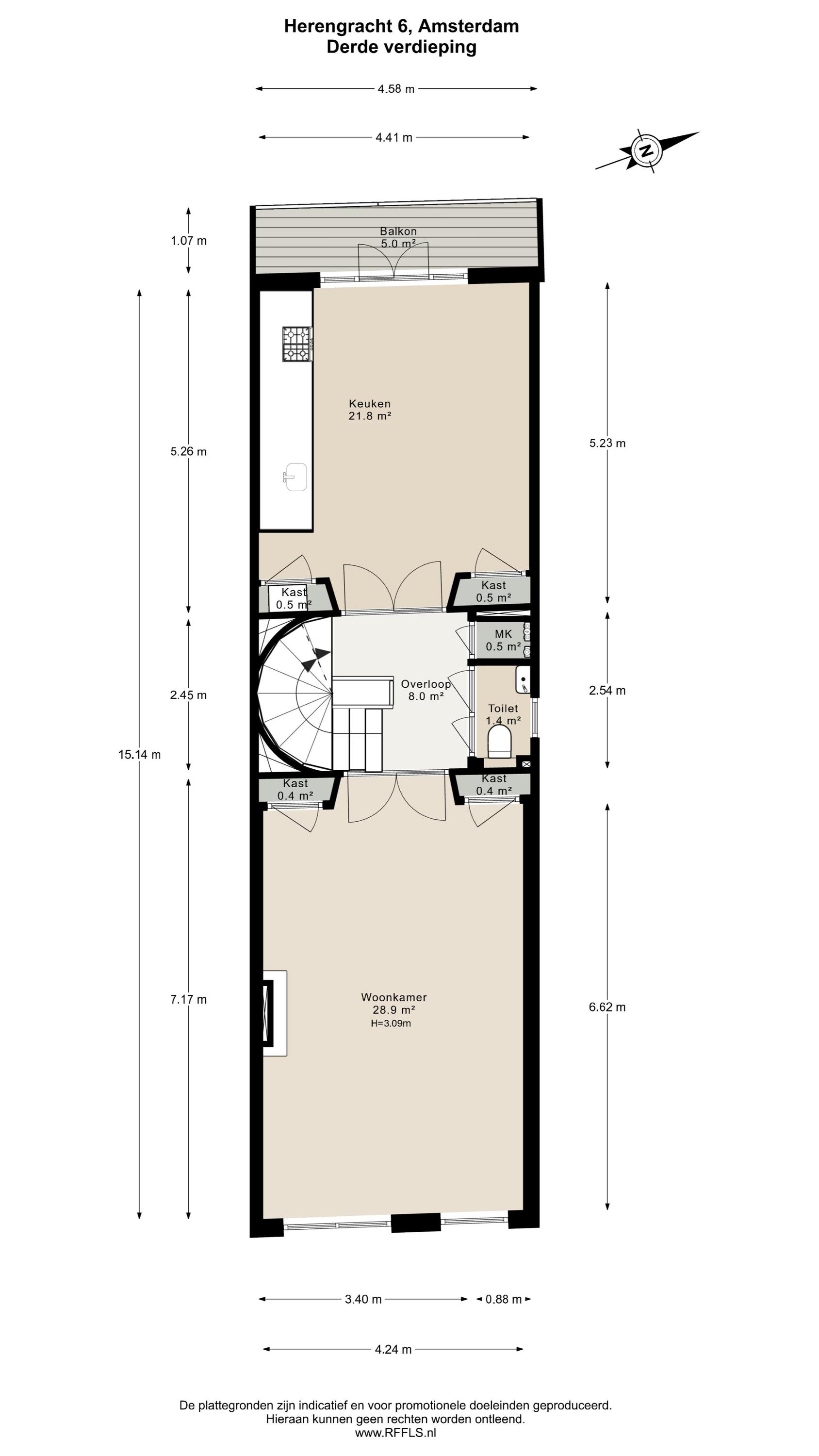
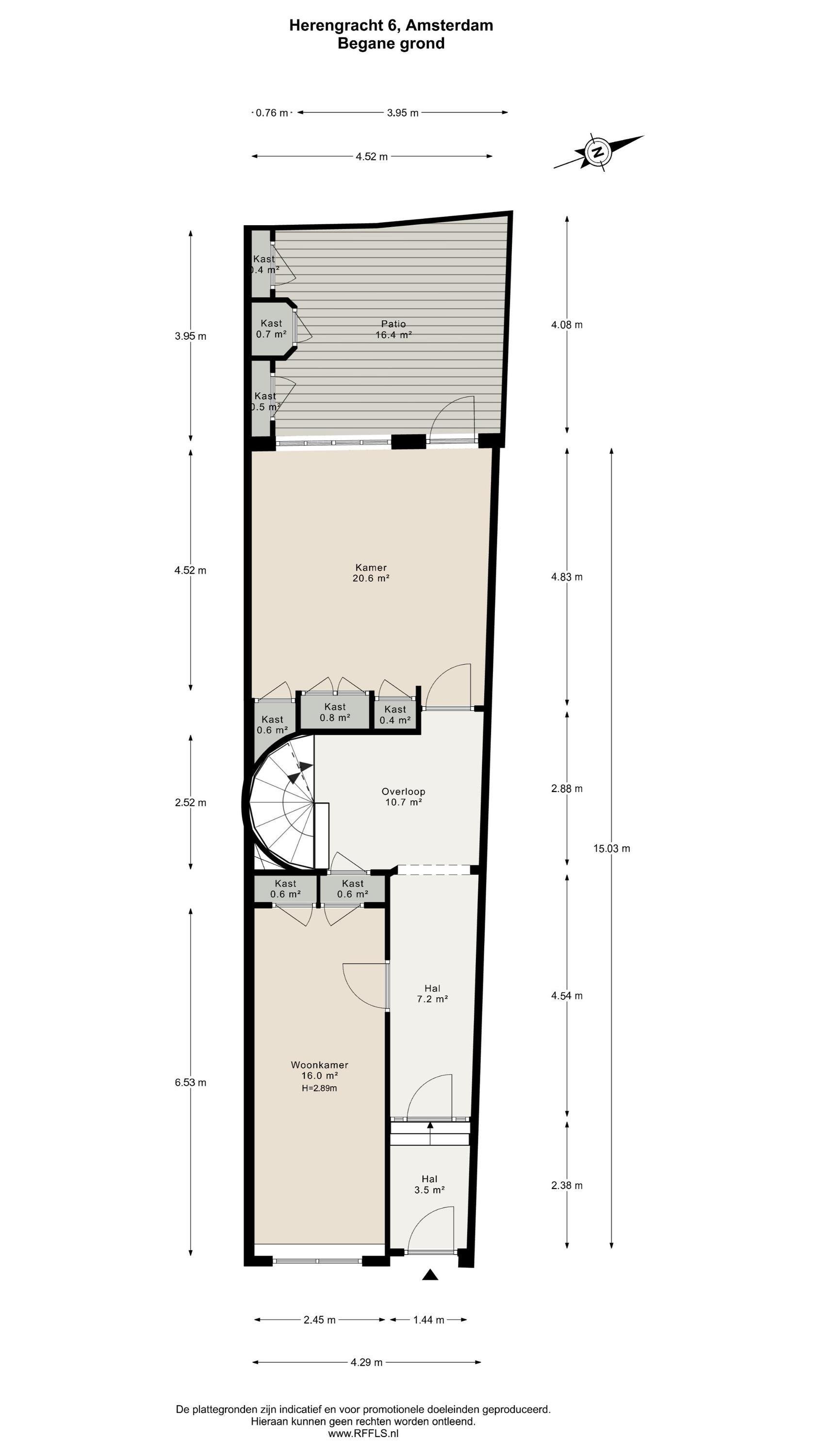
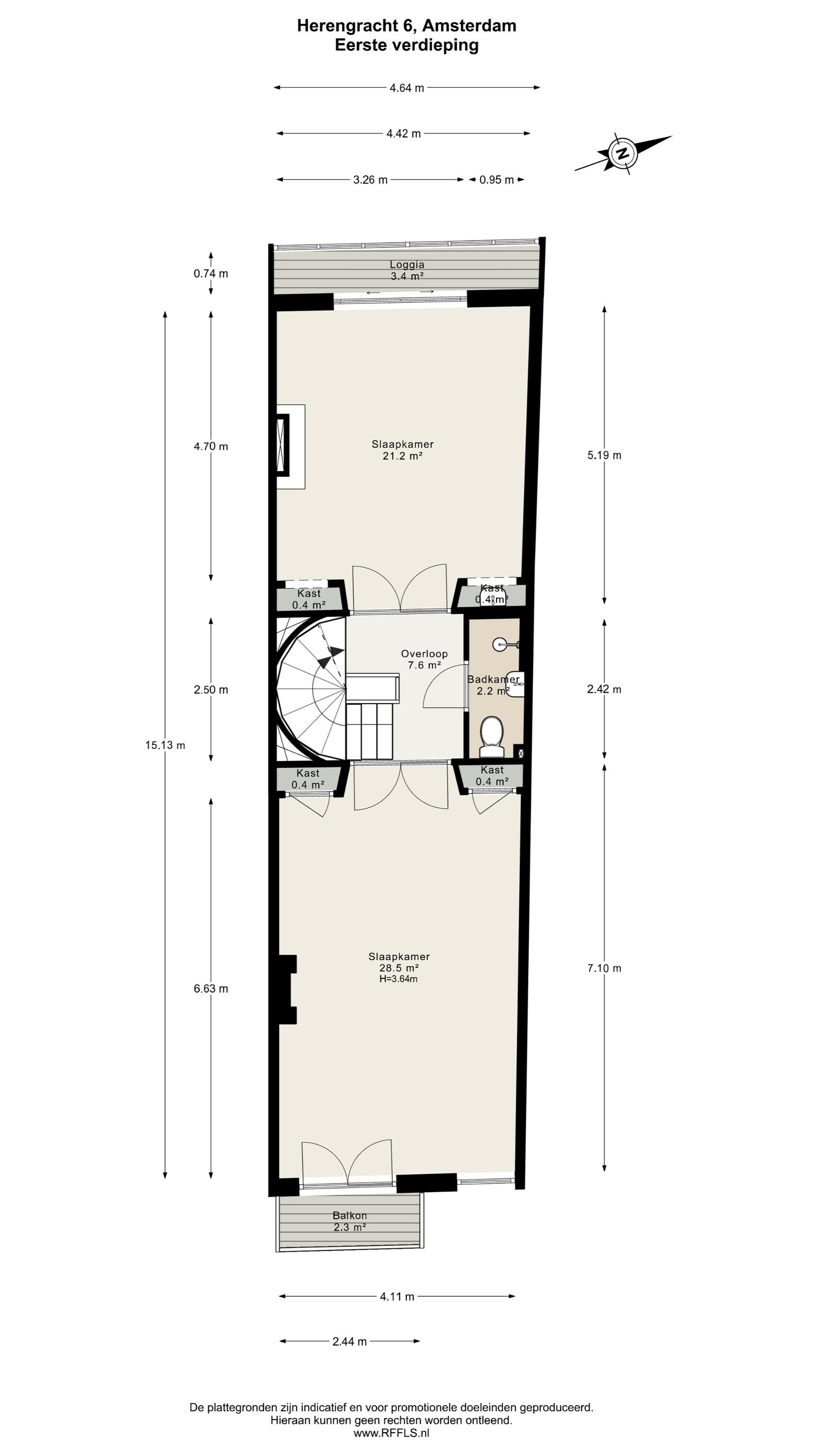
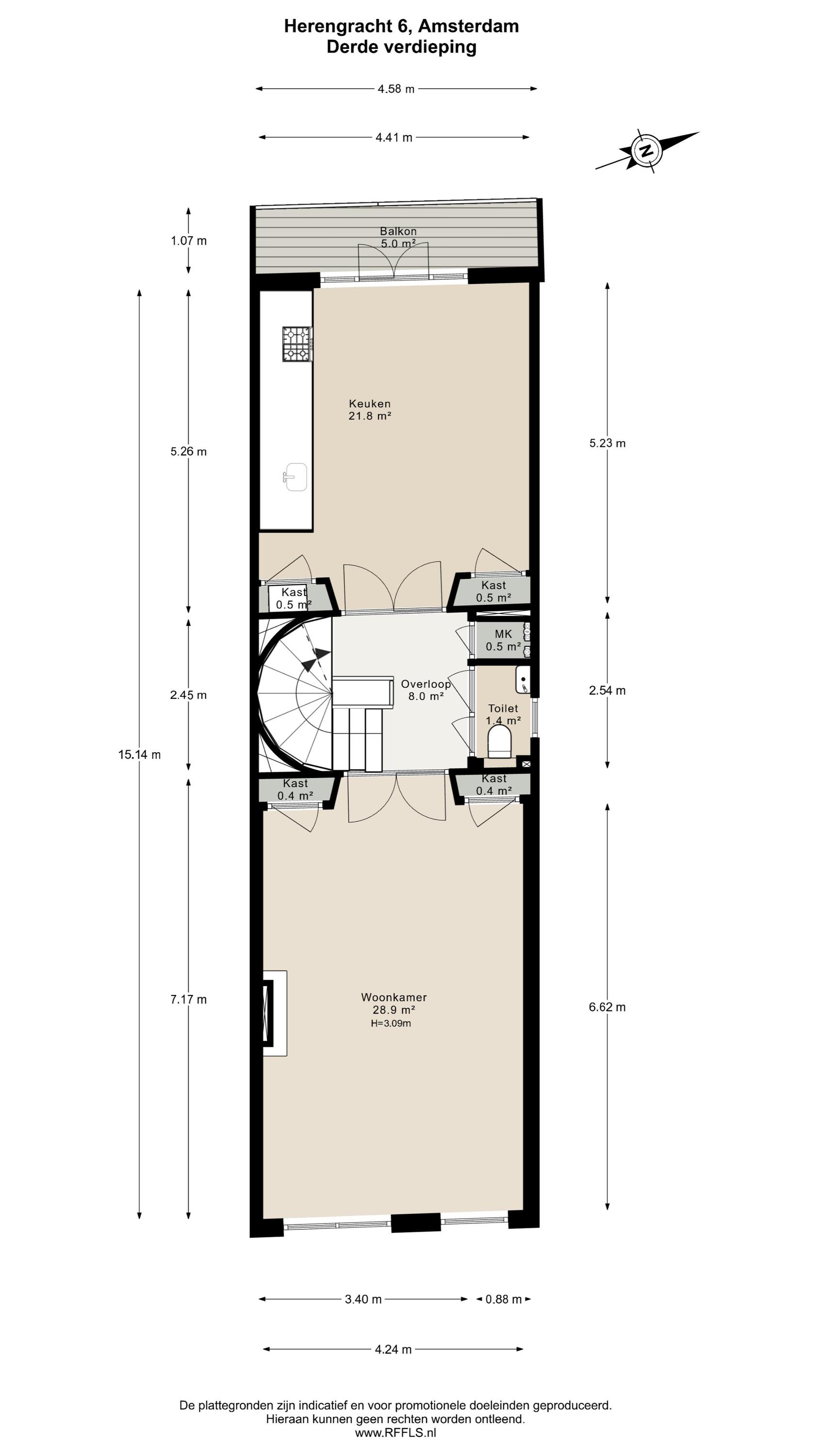
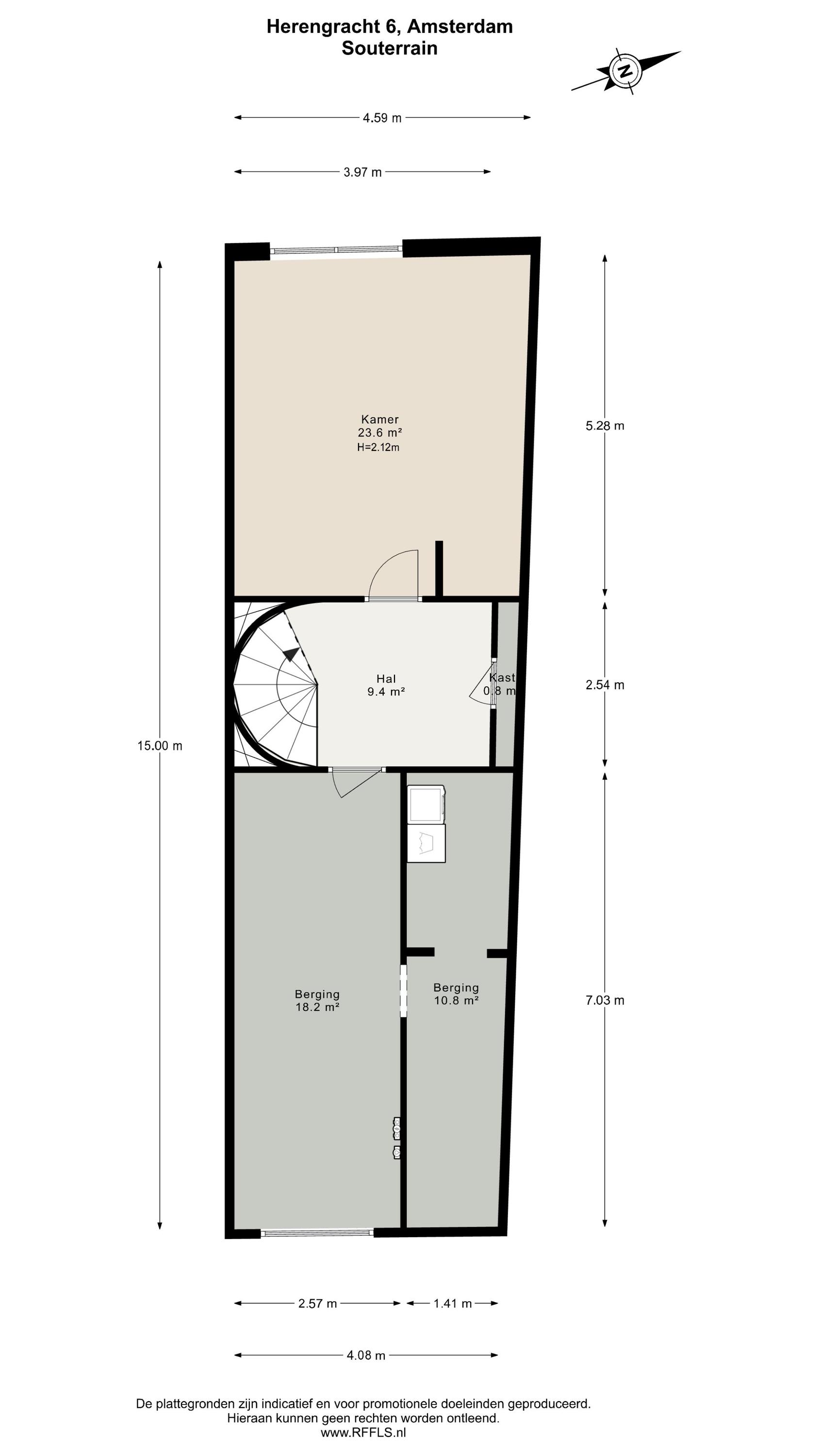
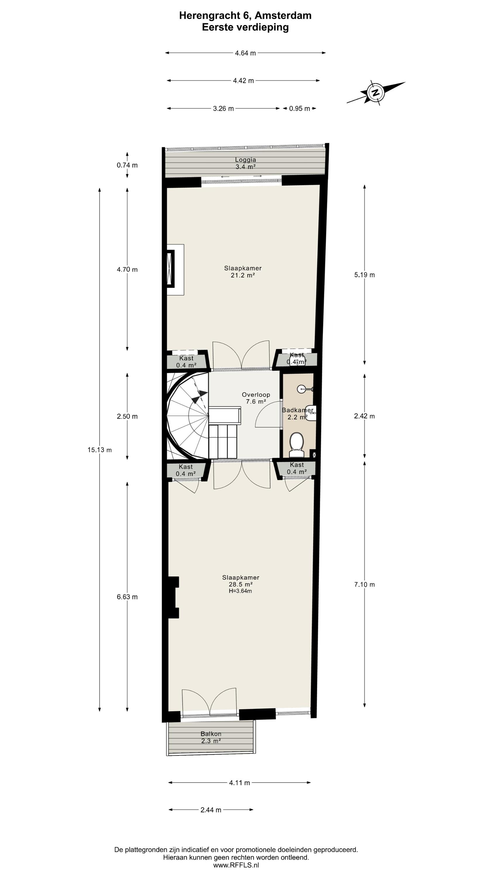
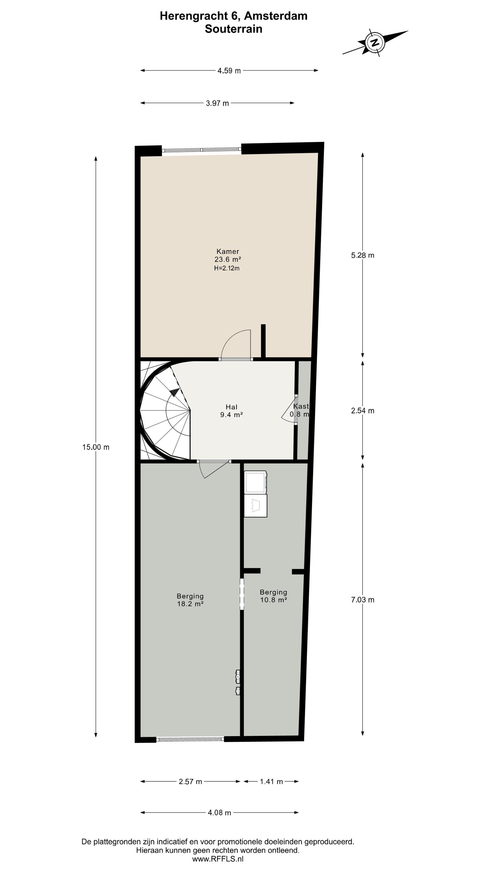
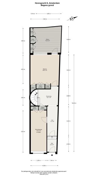
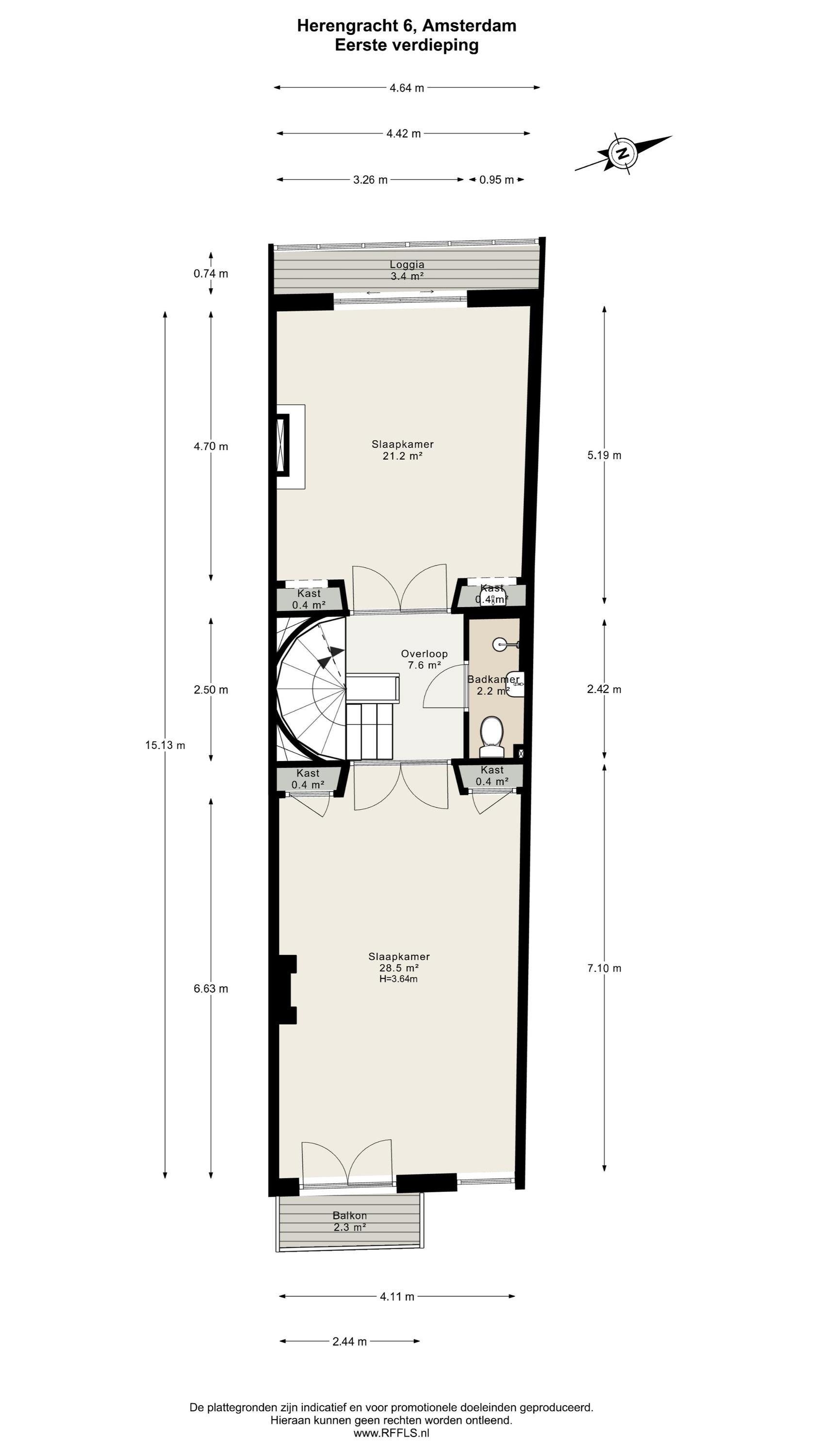
Layout

This stately canal house on the Herengracht is divided over a basement, bel étage, and four full residential floors. The property breathes history, with a classic entrance, marble hallway, and an elegant staircase that connects all levels.

Each floor has spacious rooms with high ceilings, original ornaments, and paneled doors. Large windows at both the front and rear provide abundant natural light and offer characteristic views: at the front over the Herengracht and from the upper floors towards the Koepelkerk. Features such as marble fireplaces, decorative ceiling moldings, and built-in cupboards have been preserved on various levels, maintaining the authentic atmosphere.

The current layout is flexible and offers ample possibilities for a new owner. It is conceivable to arrange the floors separately as individual living areas or to divide the property into several independent apartments. A combination of living and working is also very feasible: the lower floors are ideally suited for an office or practice, while the upper floors offer peace and privacy.

This property therefore offers a unique opportunity to design an entire canal house entirely to your own wishes, where living and working can be effortlessly combined. The historical charm combined with the open layout makes it a rare property in one of Amsterdam’s most desirable locations.

Location & surroundings

Herengracht 6 is located in one of the most special parts of Amsterdam’s canal district. According to the standard reference work De Grachten van Amsterdam, the house, together with the adjacent properties, forms an important part of the monumental row between Herenstraat and Brouwersgracht. The residence was designed in the Dutch Neo-Renaissance style and stands out with its richly detailed façade, balconies with original wrought-iron railings, and characteristic ornaments. The property therefore seamlessly fits into the high urban and cultural-historical value of this part of the canal belt.

In addition to its historical significance, the immediate surroundings offer plenty of vibrancy and amenities. In the Jordaan, Haarlemmerbuurt, and the canal district you will find a wide range of restaurants, bistros, and coffee houses. For daily shopping there are various supermarkets, bakeries, and specialty stores nearby. Furthermore, several cultural landmarks are within walking distance, such as the Anne Frank House, Westerkerk, and the many galleries that enrich this part of the city. This mix of history, culture, and culinary addresses makes living on the Herengracht particularly attractive.

Accessibility

The property is just a short walk from Amsterdam Central Station, making train, metro, tram, and bus easily accessible. By bike, you can reach the Jordaan, Haarlemmerdijk, or Noordermarkt in just a few minutes. For motorists, the arterial roads towards the A10 ring road are easily accessible via Haarlemmer Houttuinen and the Piet Hein Tunnel.

Particulars

- Living area of approx. 382 m² (measured in accordance with NEN2580 standards);
- Municipally listed monumental canal house dating from 1880;
- Property divided over six floors;
- Spacious and bright levels with ceilings over 3 meters high;
- Completely adaptable to your own wishes;
- Nationally protected cityscape;
- UNESCO World Heritage;
- Age clause and foundation clause apply;
- Located on freehold land, so no ground lease;
- Transfer in consultation.

This information has been compiled by us with the necessary care. However, no liability is accepted on our part for any incompleteness, inaccuracy, or otherwise, nor for the consequences thereof. All stated dimensions and surfaces are indicative. The buyer has their own duty to investigate all matters that are of importance to him or her. With regard to this property, the broker acts as an advisor to the seller. We recommend engaging a professional (NVM) purchasing agent to guide you through the buying process. If you have specific wishes regarding the property, we advise you to communicate them to your purchasing agent in time and to carry out independent research accordingly. If you do not engage a professional representative, you are considered legally competent to oversee all matters of importance yourself. The NVM conditions apply.

Features

Transfer of ownership
Asking Price
€ 2.850.000 k.k.
Status
beschikbaar
Acceptance
in overleg
Construction
Kind of house
Grachtenpand
Building type
tussenwoning
Construction period
1880
Bedrooms
5
Bathrooms
2
Surface Areas And Volume
Living Area
382 m2
Other indoor space
2 m2
Exterior space attached to the buildinge
16 m2
Volume in cubic meters
1454 m3
Plot Size
92 m2
Facilities
Tv kabel
Natuurlijke ventilatie
Aan water
In centrum
Aan vaarwater
Baerz & Co Property Brochure

Brochure

Videos

Heeren Makelaars

Stadionweg 75
1077 SE Amsterdam

info@heerenmakelaars.nl
+31 204702255

www.heerenmakelaars.nl

Information / Viewing request

Sander Bovenkerk profile image
Sander Bovenkerk
Real estate agent

Buying a Luxury Property in Amsterdam

Amsterdam offers a cosmopolitan lifestyle defined by heritage, connectivity, and discreet luxury. Residents benefit from a robust international community, curated services, and vibrant culture. The city’s enduring appeal lies in its blend of history, sophistication, and progressive spirit.