Villa d'Arte werkt intensief samen met Baerz & Co Luxury Homes International, het trefpunt waar exclusieve huizen en veeleisende kopers samenkomen. Hieronder vindt u een geselecteerd aanbod van de meest exclusieve huizen op alle hot-spots in 20 landen rond de Middellandse zee, de Alpen, Mexico en Dubai.

Herenhuis for sale in BERGSCHENHOEK

BERGSCHENHOEK Van Keulendreef 51 - 2661 ST The Netherlands


Dominique Blom profile image
Dominique Blom
Real Estate Agent
+31 107850833
dominique@dbmakelaars.nl

DB Makelaars
Dorpsstraat 79
2661 CE Bergschenhoek
NETHERLANDS
+31 107850833
www.dbmakelaars.nl
info@dbmakelaars.nl

Living area
177m2
Plot size
252m2
Bedrooms
5

Description

Spacious House with 5 Bedrooms in a Beautiful Location with Unobstructed Water Views

This property is located in the child-friendly neighbourhood of Oosteindsche Ackers, along a wide canal. Within walking distance, you'll find several primary schools, daycare centres, the library, and the charming centre of Bergschenhoek, offering a variety of shops, specialty stores, supermarkets, and restaurants. A short bike ride takes you to numerous sports and recreational facilities, the park "De Leeuwenkuil", swimming pool De Windas, and the Annie M.G. Schmidt Park. The home is also conveniently situated for public transport (bus and RandstadRail) and major roads (A12, A13, N209, N470, and N471) leading to the larger cities.

In short: a lovely home in a wonderful area with everything Bergschenhoek has to offer close by.

Layout

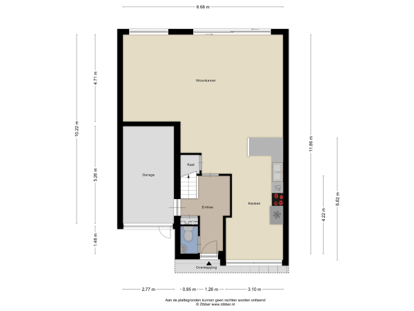
Ground Floor:
Spacious driveway with parking for multiple cars, including a charging station for an electric vehicle and access to the garage.
Entrance/hallway with stairs to the first floor, meter cupboard, toilet, access to the garage, and the living room.

At the front is the open-plan kitchen, which offers plenty of storage space and is fully equipped with a sink and mixer tap, ceramic hob, extractor hood, refrigerator, freezer, and dishwasher.

The spacious living room is located at the rear. Large windows allow for plenty of natural light, and sliding doors provide access to the backyard.

The beautifully landscaped rear garden faces south, making it a great spot to enjoy the afternoon and evening sun. The garden is also equipped with an electric sunshade.

First Floor:
The landing provides access to four bedrooms, a separate toilet, and the bathroom.
Bedrooms 1 and 2 are at the front of the house and both feature built-in wardrobes.
Bedrooms 3 and 4 are at the rear, with bedroom 4 also having a built-in wardrobe.

The centrally located bathroom includes a shower, bathtub, double sinks, and a towel radiator.

Second Floor:
On the second floor, the landing houses the central heating system and the washing machine and dryer connections. The landing also gives access to the spacious roof terrace – ideal for drying laundry or simply enjoying the sun.
The attic also features a fifth spacious bedroom with built-in wardrobes.

The entire property is carpeted.

Key Features:
- Built in 1999, situated on a 252 m² plot

- Unobstructed water views in a child-friendly neighbourhood

- 5 bedrooms

- Sunny roof terrace on the second floor

- Delivery by mutual agreement, in accordance with the List of Fixtures and Fittings

We warmly invite you to come and view this home for yourself.

All information provided should be considered as an invitation to make an offer or to enter into negotiations. The texts and impressions are intended to give a good impression of the property. The utmost care has been taken with the content. Nevertheless, all information is expressly subject to change. No rights can be derived from the property details.

Purchase Agreement Only Valid After Signing:
An oral agreement between the private seller and the private buyer is not legally binding. In other words, there is no sale until both parties have signed the purchase agreement. This follows from Article 7:2 of the Dutch Civil Code. A confirmation of the verbal agreement by email or a draft version of the purchase agreement does not constitute a 'signed purchase agreement'.

Measurement Instruction Disclaimer:
The property has been measured according to the industry-wide Measurement Instruction (BBMI). This instruction aims to apply a uniform method for indicating the usable area. However, differences in measurement outcomes cannot be completely excluded due to interpretation differences, rounding, or limitations in the measuring process.

We represent the seller. We recommend that you bring your own estate agent to safeguard your interests during the purchase of your future home!

Features

Transfer of ownership
price
€ 850.000 k.k.
Status
beschikbaar
Acceptance
in overleg
Construction
Kind of house
Herenhuis
Building type
geschakelde woning
Construction period
1999
Energy rating
B
Roof type
samengesteld dak
Bedrooms
5
Bathrooms
1
Surface Areas And Volume
Living area
177 m2
Other indoor space
15 m2
Exterior space attached to the building
27 m2
Volume in cubic meters
679 m3
Plot size
252 m2
facilities
Mechanische ventilatie
Jacuzzi
Schuifpui
Glasvezel kabel
Aan water
In woonwijk
Baerz & Co Property Brochure

Brochure

Information / Viewing request

Videos

Photos

Floor Plans