Villa d'Arte werkt intensief samen met Baerz & Co Luxury Homes International, het trefpunt waar exclusieve huizen en veeleisende kopers samenkomen. Hieronder vindt u een geselecteerd aanbod van de meest exclusieve huizen op alle hot-spots in 20 landen rond de Middellandse zee, de Alpen, Mexico en Dubai.

DELFT
Ezelsveldlaan 105 - 2611 RV
Netherlands

Jan Paul van Daal profile image
Jan Paul van Daal
Real estate agent
€1,195,000 k.k.
Living Area
270m2
Plot Size
N/A
Bedrooms
4

Description

Wonen in een monumentaal complex aan de rand van het centrum in een mooi gelegen ruim en modern afgewerkt, levensloopbestendig appartement.

Het appartement is gelegen op de eerste verdieping en heeft twee woonlagen in een monumentaal complex dat is voorzien van een lift. Het appartement combineert de sfeer van een loft met de ruimte van een herenhuis.

Van deze woning is een unieke woningwebsite beschikbaar. Download op funda de brochure voor de link naar de website waar je alle gegevens en meer informatie van deze woning kunt vinden.

Het appartement heeft vier ruime slaapkamers, twee badkamers, een bijzonder licht woongedeelte met een unieke plafondhoogte en een luxe open keuken. De goed bruikbare vide op de verdieping maakt het geheel uniek en bijzonder.

Op de begane grond is er een berging en een eigen parkeerplaats.

De indeling is als volgt:

Via de afgesloten entree met brievenbussen en intercom is er toegang tot de fraai aangelegde binnentuin van waaruit er toegang is tot het complex waar dit appartement zich in bevindt. Via een imposante, klassieke hal is de toegang bereikbaar. Via een brede deur heeft u toegang tot de woning.

Indeling:

Entree, een brede hal met prachtige zwart/wit betegelde vloer met toilet en binnenberging. Woonkamer van meer dan 100 m2 met een nagenoeg nieuwe open haard (Boley) en een imposante plafondhoogte van ruim 5 meter. Door de vele hoge raampartijen is dit een heerlijke lichte leefruimte. De royale open keuken (Siematic) is recent geplaatst en deze is voorzien van inbouwapparatuur. Ruime slaapkamer met ernaast een moderne badkamer.

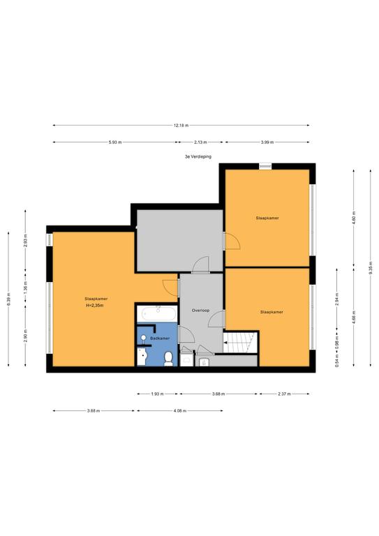
Tweede etage:
Gang met kast met opstelplaats voor de CV-combiketel (2010) en een bergkast met de opstelplaats voor wasmachine en droger. Een royale entresol die in contact staat met de woonkamer. Op deze verdieping bevinden zich nog drie royale slaapkamers, twee aan de achterzijde en één aan de voorzijde. De badkamer heeft een ligbad, inloopdouche, toilet en wastafel.

Bijzonderheden/Kenmerken:
- Woonoppervlakte 270 m2, inhoud 1078 m3;
- Bouwjaar ca. 1900 (gerenoveerd in 1996);
- Rijksmonument;
- Geheel voorzien van dubbel glas;
- Toegang door middel van een videofoon-installatie;
- Privé parkeerplaats en gemeenschappelijke binnentuin;
- De berging (3.10x2.65m) bevindt zich in het complex en is binnendoor bereikbaar;
- Er is een actieve VvE. Bijdrage Museumhof IV per maand € 586,65;
- Bijdrage VvE parkeerplaats Museumhof II is € 14,20;

Oplevering in overleg

Interesse in dit huis? Schakel uw eigen NVM Aankoopmakelaar in.
Uw NVM Aankoopmakelaar komt op voor uw belang en bespaart u tijd, geld en zorgen.
Adressen van NVM Aankoopmakelaars vindt u op Funda.nl

Features

Transfer of ownership
Asking Price
€ 1.195.000 k.k.
Status
beschikbaar
Acceptance
in overleg
Construction
Kind of house
Maisonnette
Building type
appartement
Roof type
zadeldak
Bedrooms
4
Bathrooms
2
Surface Areas And Volume
Living Area
270 m2
Other indoor space
0 m2
External storage space
18 m2
Volume in cubic meters
1078 m3
Facilities
Aan rustige weg
In centrum
Baerz & Co Property Brochure

Brochure

Videos

Floor Plans

Van Daal Makelaardij

Voldersgracht 33
2611 ED Delft

janpaul@vandaalmakelaardij.nl
+31 (0)15 - 212 73 00

www.vandaalmakelaardij.nl

Information / Viewing request

Jan Paul van Daal profile image
Jan Paul van Daal
Real estate agent

Buying a Luxury Property in Delft

Delft is renowned for its artistic legacy, refined lifestyle, and world-class urbanism. The community draws sophisticated residents and investors, offering bespoke residences, access to elite services, and thriving international connections.