Villa d'Arte werkt intensief samen met Baerz & Co Luxury Homes International, het trefpunt waar exclusieve huizen en veeleisende kopers samenkomen. Hieronder vindt u een geselecteerd aanbod van de meest exclusieve huizen op alle hot-spots in 20 landen rond de Middellandse zee, de Alpen, Mexico en Dubai.

HAAFTEN
Steenweg 2 - 4175 AD
Netherlands

Jeanette van Haaften profile image
Jeanette van Haaften
Real Estate Agent
€1,500,000 k.k.
Living Area
437m2
Plot Size
1930m2
Bedrooms
6

Description

Peace, space and comfort come together in this architecturally converted T-farmhouse with A++ label, garage for several cars and a mature, sunny garden with lots of privacy. The layout of the farmhouse lends itself perfectly to combine living and working or as a multi-generational house.

Hall, impressive garden-oriented living room, dining kitchen, bedroom with adjoining bathroom, two work/bedrooms, a 2nd bathroom, utility room and second hallway with access to the terrace under the Gelderland overhang on the first floor.
A 2nd living room cum studio space, library room and a bedroom with adjoining 3rd bathroom in the front house and two bedrooms in the back house on the second floor.

Haaften (municipality of West Betuwe) is located in the Tielerwaard on the river Waal. The quiet village is 15 car minutes from 's-Hertogenbosch and 30 car minutes from Utrecht. The village offers a complete shopping center for daily groceries, a tennis and a soccer club, an ice rink and a multifunctional center with public library, playgroup and two elementary schools. Haaften is a beloved village with a non-oppressive social cohesion, where now many Randstedelingen have also settled. The village lies in the bowl of the Waalband dike on the north bank of the river Waal. A footpath runs from the farmhouse to this Waalbandijk. From there it is a few minutes' walk to De Crobsche Waard, a 77-hectare nature reserve open to the public that consists of an alternation of ponds, swampy forests and wet farmland.
The area is popular with hikers and cyclists because of its scenic rural trails and proximity to the river. For more extensive facilities and amenities, residents can use nearby towns such as Geldermalsen, Tiel or Zaltbommel.

Gross volume of house: approx. 1,700 m³
Living area: 437 m²
Land area: 1,930 m²
Construction period: late 19th century

First floor layout:
Through the electric remote controlled gate is the farmhouse to reach. On site is ample space for parking several cars.
The original front door is located centrally in the front house but it is no longer used. The daily entrance is on the driveway side. The entrance is spacious and furnished with closets and a toilet. From the adjacent hallway is access to the living room. This sunny room with many skirted windows, flanked by interior shutters, breathes -with the almost three-meter high beamed ceiling- a pleasant atmosphere. In addition to the luxurious ceramic floor with underfloor heating, there is a natural stone fireplace with an open gas fire. In the living room are two passages that offer a view of the adjacent dining kitchen. This space offers access to the south-facing terrace through double French doors. Three mature Plane trees act as natural umbrellas there in the summer.
The kitchen is furnished with a luxurious island with breakfast bar, granite countertops and high-quality, recently updated appliances.
On a central corridor dividing the back house in two, at the end are two French doors that open out under the Gelderland overhang. The sheltered patio is the favorite place to start the day in the morning sun.
On the north side of the hallway is the master bedroom with double patio doors, closets and an attached bathroom. This bathroom is furnished with a large corner bathtub, walk-in shower, two sinks, toilet and bidet. On the south side of the hallway are two bedroom/workrooms and a utility room. In the back house is further a 2nd bathroom with shower, sink and the white goods connections.

Layout second floor:
This floor has two entrances. In the front house, the staircase leads to a beautiful, bright room which is furnished as a library.
The skylights provide a sea of light. Adjacent to the library is a second living room, studio, TV room; just a few functions you could assign to that 60m2. On the other side of the library is another bedroom with adjacent 3rd bathroom. This is equipped with a large shower, sink and the
4th toilet.
From the central corridor in the back house a staircase leads to the first floor. Under the insulated roof are two more beautiful bedrooms. Through three skylights there is a view of the garden and surroundings. Both rooms are wonderfully bright and have plenty of storage space.

Details:
This attractive and ready to move in T-farm is in a lovely quiet location, on a car-free and dead-end street. Through a walking path is the Waalbandijk accessible. The location is an excellent base for a walk with the dog, a stroll through the floodplains or by (racing) bike towards Gorinchem or Nijmegen. The A2 freeway can be reached by car within 6 minutes.
Accessibility is excellent, as Utrecht can be reached in 30 minutes and Eindhoven Airport in 40 minutes. The farmhouse is not only well maintained, but above all comfortable. All hardwood windows have HR glazing, walls and floors are insulated and on the insulated roof are no less than 46 solar panels. Together with the Nefit heat pump and 2 high-efficiency boilers, in combination with underfloor heating on the entire first floor, this ensures sustainable comfort. The farmhouse also guarantees safe living and is equipped with burglar-proof locks and hinges and an extensive alarm system with alarm notification.
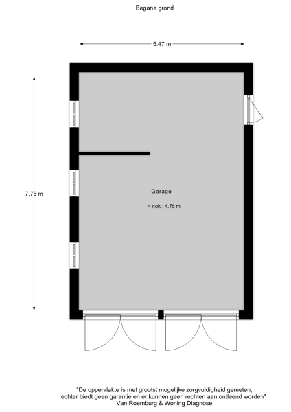
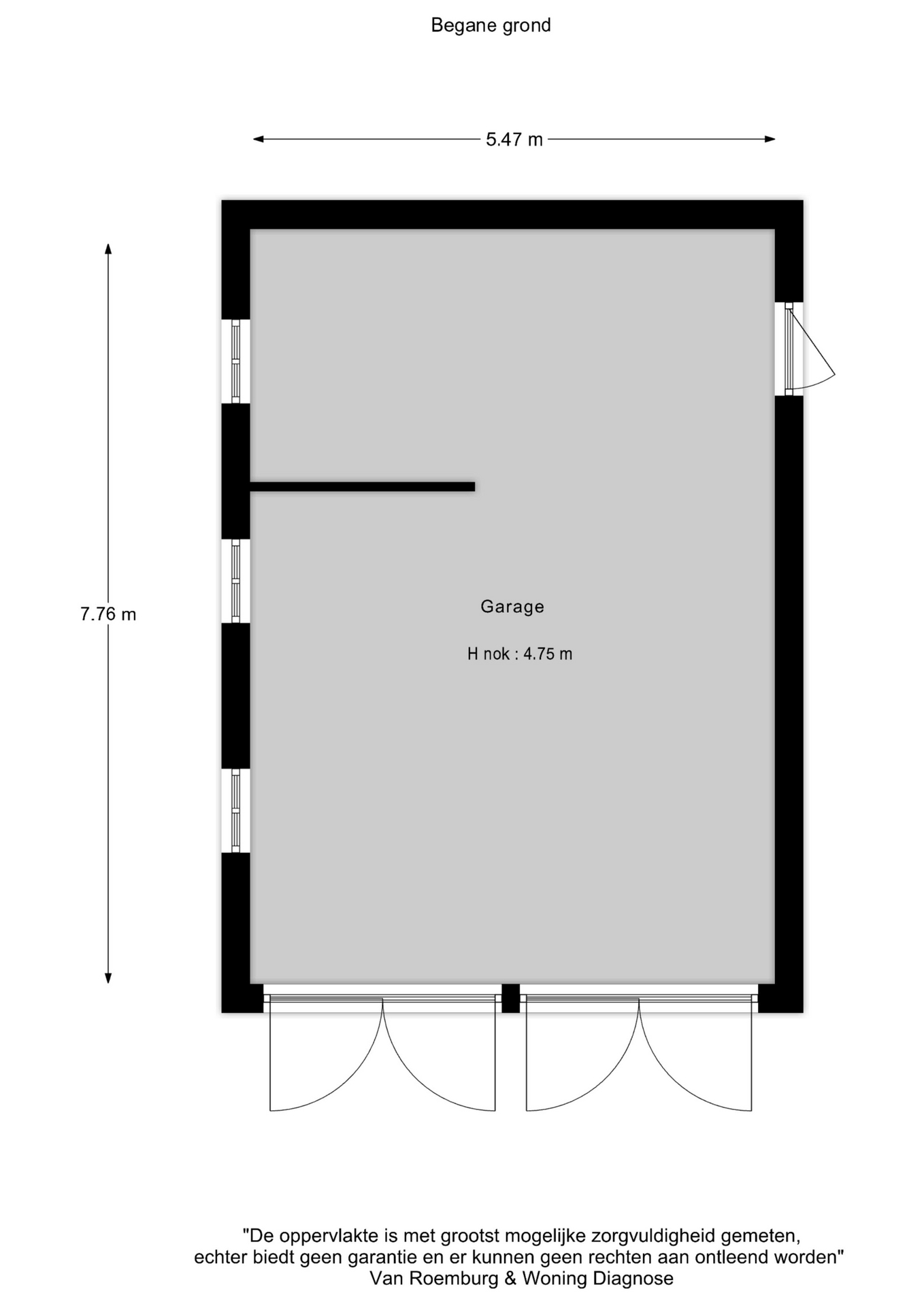
The double insulated garage of 42m2 offers space for several cars and has a loft and electricity.
The low maintenance garden is landscaped with large terraces on the south and east, a large lawn with mature (fruit) trees, hedges and flowering ground cover.

Features

Solar panels
Alarm system
Transfer of ownership
Asking Price
€ 1.500.000 k.k.
Status
beschikbaar
Acceptance
in overleg
Construction
Kind of house
Woonboerderij
Building type
vrijstaande woning
Construction period
2002
Energy rating
A++
Roof type
samengesteld dak
Bedrooms
6
Bathrooms
3
Surface Areas And Volume
Living Area
437 m2
Other indoor space
55 m2
Exterior space attached to the buildinge
29 m2
Volume in cubic meters
1700 m3
Plot Size
1930 m2
Facilities
Mechanische ventilatie
Alarminstallatie
Rookkanaal
Dakraam
Glasvezel kabel
Zonnepanelen
Natuurlijke ventilatie
Aan rustige weg
Beschutte ligging
Baerz & Co Property Brochure

Brochure

Videos

360 Panoramas

360°
360 Panorama - Steenweg 2
360°
360 Panorama - Steenweg 2
360°
360 Panorama - Steenweg 2
360°
360 Panorama - Steenweg 2
360°
360 Panorama - Steenweg 2
360°
360 Panorama - Steenweg 2
360°
360 Panorama - Steenweg 2

Floor Plans

Bijzonder Wonen Makelaardij

Heilige Geeststraat, 11
5301CP Zaltbommel

info@bijzonderwonen.com
+31 41 868 00 50

www.bijzonderwonen.com

Information / Viewing request

Jeanette van Haaften profile image
Jeanette van Haaften
Real Estate Agent

Buying a Luxury Property in Haaften

Haaften offers a harmonious blend of refined riverside living, a close-knit community, and understated architectural excellence. Discerning residents benefit from curated services, secure surroundings, and seamless access to a rich Dutch cultural landscape.