Villa d'Arte werkt intensief samen met Baerz & Co Luxury Homes International, het trefpunt waar exclusieve huizen en veeleisende kopers samenkomen. Hieronder vindt u een geselecteerd aanbod van de meest exclusieve huizen op alle hot-spots in 20 landen rond de Middellandse zee, de Alpen, Mexico en Dubai.

NOORDWIJK
Koningin Astrid Boulevard 16 - 2202 BK
Netherlands

Frits Wilbrink profile image
Frits Wilbrink
Real estate agent
€3,250,000 k.k.
Living Area
220m2
Plot Size
608m2
Bedrooms
5

Description

Such a unique opportunity rarely comes along.

In a truly fantastic location in Noordwijk, right on the boulevard and just a few steps from the beach, stands the spacious detached villa ‘Elisabeth’ with double garage.
Here, the day begins with a refreshing dip in the sea and ends with a magnificent sunset. A view that changes with every season and never gets boring.
• 2 Living rooms
• 5 Bedrooms
• 2 Bathrooms
• Parking on own property

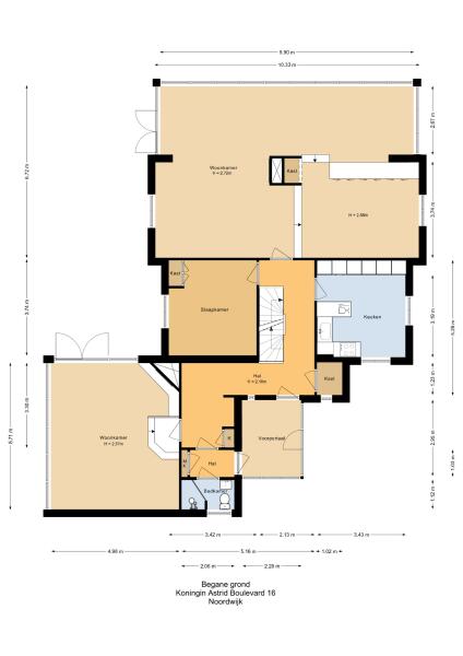
Built in 1888, thoroughly renovated inside in approx. 1980, living area 220m2, volume 891m3, plot 608m2

The house offers excellent opportunities to modernize it entirely to your own taste.The large windows in the living room allow you to enjoy the phenomenal view every day, and the fireplace provides extra warmth and atmosphere on colder days.
The kitchen, equipped with built-in appliances, is practically furnished with plenty of cupboard space. Furthermore, on the ground floor, you will find a bright second living room with a gas fireplace, ideal for relaxation or as a spacious study. In addition, the ground floor has a comfortable bedroom with a built-in wardrobe. The spacious, sunny south-facing terrace is accessible from both living rooms. The bathroom in the hall is ideal for rinsing off the sand after a day at the beach.

First floor
On the first floor, there are four bedrooms, all with built-in closets, and two have breathtaking sea views. The large dormer window at the front provides extra light and space. The spacious bathroom is practically furnished and completes this floor.

Basement
The basement features a hobby room, a laundry and boiler room with additional storage space, providing plenty of practical storage options.

The villa also has a double garage with one electric door, a storage loft, and a door to the garden. There is parking space for three cars in front of the garage.

Sustainability
This property has energy label G and requires some attention and renovation, but this also means it offers a lot of potential.

Location
The location is truly unique: you live here almost on the beach, directly on the boulevard and close to cozy restaurants and all the amenities that Noordwijk has to offer.
A place with a long history where you can enjoy the beach, the sea, and the amazing view in every season.

History
Villa Elisabeth was part of the old Huis ter Duin complex. At the time, guests of Huis ter Duin were easily accommodated here. One of them was the German painter Max Liebermann, who stayed in this villa in Noordwijk during his early period, a number of summers before the First World War.
The house is located on the Max Liebermann route. A beautiful route through Noordwijk, along the coast, the historic center, and back across the beach. Places where Max Liebermann actually painted.

Special features
• Very unique location
• Located on the boulevard
• Breathtaking views of the beach and sea
• Close to restaurants, shops, and the historic center of Noordwijk
• Permitted as a second home
• Located on the Max Liebermann route

Don't miss this unique opportunity and call our office for an appointment.
Real estate agent Frits Wilbrink will be happy to show you around.

Features

Transfer of ownership
Asking Price
€ 3.250.000 k.k.
Status
beschikbaar
Acceptance
in overleg
Construction
Kind of house
Villa
Building type
vrijstaande woning
Construction period
1888
Energy rating
G
Roof type
samengesteld dak
Bedrooms
5
Bathrooms
2
Surface Areas And Volume
Living Area
220 m2
Other indoor space
25 m2
Exterior space attached to the buildinge
9 m2
External storage space
34 m2
Volume in cubic meters
891 m3
Plot Size
608 m2
Facilities
Rookkanaal
Glasvezel kabel
Natuurlijke ventilatie
In woonwijk
Vrij uitzicht
Open ligging
Zeezicht
Baerz & Co Property Brochure

Brochure

Videos

Floor Plans

Wilbrink & v.d. Vlugt Makelaars

Heereweg 231
2161 BG Lisse

info@wilbrinkvandervlugt.nl
+31 252 41 90 49

www.onsaanbod.nl

Information / Viewing request

Frits Wilbrink profile image
Frits Wilbrink
Real estate agent

Buying a Luxury Property in Noordwijk

Noordwijk melds elegant coastal living with strong community bonds and refined amenities. International appeal, discreet services, and a relaxed pace make it an enduring choice among discerning property owners.