Villa d'Arte werkt intensief samen met Baerz & Co Luxury Homes International, het trefpunt waar exclusieve huizen en veeleisende kopers samenkomen. Hieronder vindt u een geselecteerd aanbod van de meest exclusieve huizen op alle hot-spots in 20 landen rond de Middellandse zee, de Alpen, Mexico en Dubai.

RHENEN
Jacobaweide 14 - 3911 NN
Netherlands

Wistik Zonnenberg profile image
Wistik Zonnenberg
Register Makelaar Taxateur/ Eigenaar
€1,295,000 k.k.
Living Area
196m2
Plot Size
450m2
Bedrooms
4

Description

Wonen op topniveau: stijlvol, slim, energiezuinig en zorgeloos genieten in een oase van comfort.

Aan de Jacobaweide 14 op grondgebied van Rhenen, pal tegen de grens van Veenendaal in de woonwijk Petenbos, staat deze moderne en tot in de puntjes verzorgde vrijstaande woning met een royaal woonoppervlak van maar liefst 195 m². De woning biedt u alle comfort, luxe en techniek van nu: vier ruime slaapkamers, twee stijlvolle badkamers, een lichte woonkamer en een royale leefkeuken. De gehele woning is voorzien van vloerverwarming en vloerkoeling, airconditioning met nano-filters (voor schone lucht, vrij van pollen en bacteriën) en heeft maar liefst energielabel A++++.
Er is een slim domoticasysteem van Busch-Jaeger aanwezig waarmee u verlichting/scènes, camera- en alarminstallatie, alle zonwering, Sonos geluidsinstallatie (welke in beide badkamers, keuken, woonkamer en kantoor geïnstalleerd is) en het brandalarm/brandveiligheid (bij brand gaat volledige zonwering omhoog en alle lichten aan) kunt bedienen.

Het geheel is afgewerkt met een fraaie PVC-visgraatvloer en verkeert in perfecte staat. Een woning waar alles klopt en waar u direct kunt intrekken.
De woning ligt op een rustige locatie, direct grenzend aan de geliefde wijk Petenbos, met het uitgestrekte Prattenburgse bos op steenworp afstand. Hier geniet u van een groene, kindvriendelijke woonomgeving met alle dagelijkse voorzieningen in de nabije omgeving. Scholen, supermarkten en sportverenigingen zoals voetbal, tennis en fitness liggen op korte afstand. Ook de bereikbaarheid is uitstekend: binnen enkele minuten bereikt u de N233 en de A12, waardoor steden als Wageningen, Veenendaal en Utrecht goed te bereiken zijn. Het openbaar vervoer is eveneens goed geregeld, met station Veenendaal-Centrum op slechts enkele minuten afstand.

Entree
Via de voortuin en de eigen oprit met parkeergelegenheid voor twee auto’s en een laadpaal, betreedt u de woning. Ook in de directe omgeving is parkeerruimte aanwezig. In de ruime ontvangsthal springt de stijlvolle trap direct in het oog waar het daglicht fraai invalt – doordat deze open doorloopt naar de tweede verdieping een echte eyecatcher. De hoogwaardige afwerking is bij binnenkomst al voelbaar. Vanuit de hal heeft u toegang tot de toiletruimte, de woonkamer en de trap naar de eerste verdieping.

Woonkamer
Via elegante taatsdeuren betreedt u de lichte en ruime woonkamer. De royale opzet biedt volop mogelijkheden voor een comfortabele zithoek. Een op maat gemaakt wandmeubel benadrukt de luxe uitstraling en biedt praktische bergruimte. De grote raampartijen rondom zorgen voor een overvloed aan daglicht en een vloeiende verbinding tussen binnen en buiten.

Keuken
De moderne leefkeuken vormt het hart van het huis en is uitgerust met hoogwaardige apparatuur. Het keukenblad is uitgevoerd in Pure Kwartsiet, een stijlvol en duurzaam natuursteen. U kookt op een Bora inductiekookplaat met geïntegreerde afzuiging, terwijl de Miele-ovens en inbouw koffiemachine en de grote koelkast, vriezer en vaatwasser van Siemens zorgen voor optimaal kookcomfort. De keuken biedt voldoende ruimte voor een royale eettafel en heeft openslaande deuren naar het terras, waardoor u direct buiten kunt dineren of ontspannen.
Achter een onopvallende deur bevindt zich de praktische bijkeuken, met ruimte voor opslag en huishoudelijke apparatuur. Deze ruimte grenst bovendien aan een extra kamer die zich uitstekend leent als werk-, hobby- of speelruimte.

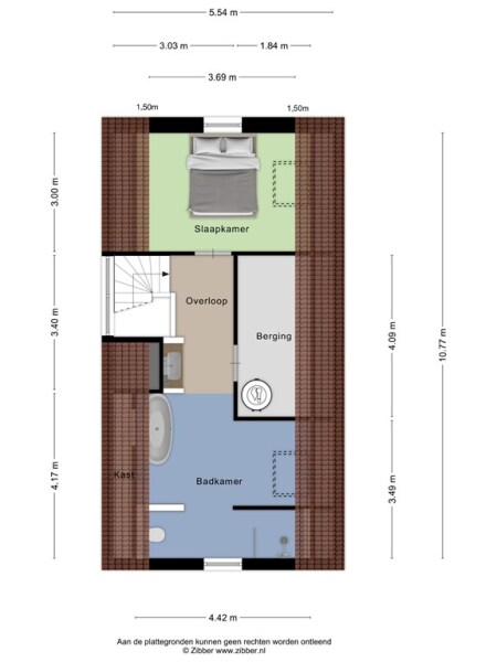
Eerste verdieping
De trap in de hal leidt naar de eerste verdieping, waar u drie ruime slaapkamers en een hoogwaardig ingerichte badkamer aantreft. De gehele verdieping beschikt over vloerverwarming en vloerkoeling. Twee slaapkamers zijn voorzien van airconditioning en maatwerk kasten en bureaus. De derde slaapkamer is ingericht als kastenkamer. Bovendien zijn er screens geplaatst voor optimaal comfort in elk seizoen.

Sanitair
De moderne badkamer is volledig betegeld en voorzien van een inloopdouche met glazen wand, een dubbele wastafel met spiegel en Sonos-speaker. Op de overloop bevindt zich een separate toiletruimte met zwevend toilet. Alles straalt kwaliteit en comfort uit.

Tweede verdieping
Via een vaste trap bereikt u de tweede verdieping, die is ingericht als oudervertrek. Hier bevindt zich een ruime slaapkamer en een royale, open wellnessruimte met vrijstaand bad, inloopdouche, toilet en dubbele wastafel. Er is tevens een voorbereiding getroffen voor de installatie van een sauna, zodat u hier een echte ontspanningsruimte kunt creëren. Op de overloop is een fraaie kastenwand met verlichting ingebouwd.
Daarnaast bevindt zich een berging/technische ruimte met de Atlantic warmtepomp, WTW-systeem en extra bergruimte.

Buitenruimte
Rondom de woning ligt een nette, groene tuin, grotendeels voorzien van gazon en deels bestraat. Dankzij de ideale ligging geniet u de hele dag van de zon – van de vroege ochtend tot de avondzon op het terras. De tuin biedt volop privacy en ruimte voor een lounge of eetgedeelte. Aan de voorzijde bevindt zich een oprit met plaats voor twee auto’s en een laadpaal, terwijl fraaie buitenverlichting zorgt voor een sfeervol geheel, ook in de avonduren.

De woning is ook te bekijken in aflevering 3 van Van Woonvilla naar Droomvilla seizoen 18!

Goed om te weten: Verkoper staat ervoor open indien u als koper de woning wilt aankopen onder voorbehoud van verkoop eigen woning.

Algemene gegevens
- Type woning: vrijstaand
- Bouwjaar: 2024
- Aantal kamers: 6
- Aantal slaapkamers: 4
- Aantal badkamers: 2
- Parkeerruimte: op eigen oprit en openbaar
- Aanwezig: dakkapel/laadpaal/bijkeuken
- Ligging tuin: noordwest
- Tuin bereik: voor/opzij en via de woning

Technische gegevens
-Warmwatervoorziening: lucht-water warmtepomp (Atlantic/Novaya 300L)
- Verwarmvoorziening: lucht-water warmtepomp (Atlantic/Novaya 300L)
- Vloerverwarming/koeling: gehele woning
- Zonnepanelen: 16 stuks
- Voorzieningen: airco/alarminstallatie/buitenzonwering/domotica/waterontharder
- Warmte terugwin installatie: aanwezig
- Mechanische ventilatie: aanwezig
- Isolatie: dak/spouw/vloer geheel
- Dubbel glas: geheel
- Glasvezel kabel, TV kabel
- Kozijnen: kunststof

WILT U EVEN BINNEN KIJKEN?

Voor meer informatie omtrent deze woning, kunt u contact opnemen met ons kantoor in Veenendaal op telefoonnummer 0318-559600.

U bent van harte welkom! De beste indruk van deze woning krijgt u natuurlijk tijdens een bezichtiging. Wij proberen onze bezichtigingen altijd in samenspraak met verkoper en koper te plannen en nemen ruim de tijd, zodat u op uw gemak de woning kan bekijken en ervaren.

N.B. Aan de samenstelling van deze gegevens is maximale zorg besteed. Aan onvolkomenheden in de vermelde gegevens en tekeningen kunnen geen rechten en aanspraken worden ontleend.

Features

Solar panels
Alarm system
Transfer of ownership
Asking Price
€ 1.295.000 k.k.
Status
Available
Acceptance
In Concert
Reference
08087
Construction
Kind of house
Single Family House
Building type
Detached House
Construction period
2024
Energy rating
A++
Roof type
composite
Bedrooms
4
Bathrooms
2
Surface Areas And Volume
Living Area
196 m2
Exterior space attached to the buildinge
1 m2
Volume in cubic meters
726 m3
Plot Size
450 m2
Facilities
Airco
Alarm
Fibreopticcable
Garden
Homeautomation
Outdoorawnings
Skylight
Solarpanels
Ventilation
Baerz & Co Property Brochure

Brochure

Videos

Floor Plans

Zonnenberg Makelaardij

Kerkewijk 108
3904 JG Veenendaal

info@zonnenbergmakelaardij.nl
+31 318 559600

www.zonnenbergmakelaardij.nl

Information / Viewing request

Wistik Zonnenberg profile image
Wistik Zonnenberg
Register Makelaar Taxateur/ Eigenaar

Buying a Luxury Property in Rhenen

Rhenen offers elevated living amidst river views and heritage charm. Residents enjoy a vibrant, close-knit community, expert property services, and seamless integration with the international lifestyle.