Villa d'Arte werkt intensief samen met Baerz & Co Luxury Homes International, het trefpunt waar exclusieve huizen en veeleisende kopers samenkomen. Hieronder vindt u een geselecteerd aanbod van de meest exclusieve huizen op alle hot-spots in 20 landen rond de Middellandse zee, de Alpen, Mexico en Dubai.

SINT NICOLAASGA
Huisterheide 1 - 8521 NC
Netherlands

Ellen Schoneveld profile image
Ellen Schoneveld
Real Estate Agent
€2,500,000 v.o.n.
Living Area
583m2
Plot Size
50080m2
Bedrooms
8

Description

NSW Estate "Huize Boschoord" – Frisian Lake District

In the heart of the Frisian Lake District, between Lemmer and Joure, lies the exceptional NSW-designated estate "Huize Boschoord". A historic country house of rare elegance, set on 5.5 hectares of private grounds and surrounded by woodland, water and tranquillity.

Built in 1871 as a refined country retreat, Huize Boschoord combines architectural distinction with contemporary comfort. The eclectic design, inspired by chalet-style elements and expressive brickwork, was highly progressive for its time and remains striking today.

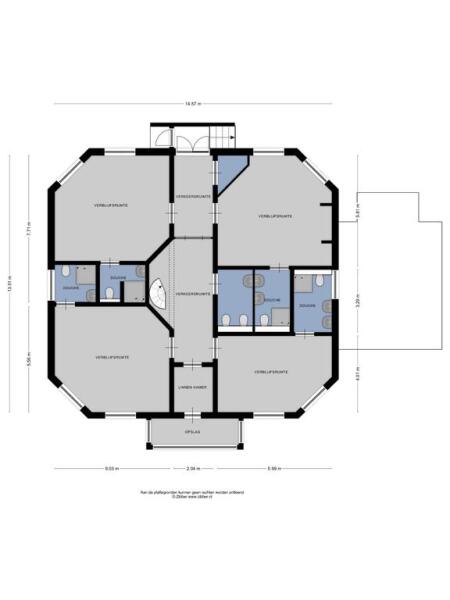
The estate offers approximately 568 m² of living space, divided over a basement, bel-etage and upper floor. The residence comprises eight spacious suites, each with its own bathroom, making the property suitable for private use, representative living or a high-end hospitality concept. A circular driveway provides an elegant arrival and departure.

Over the past decade, the house has been meticulously restored and upgraded, with an investment exceeding €1.2 million. Modern installations and sustainability measures, including roof insulation and double glazing, have been discreetly integrated, preserving the authentic 19th-century atmosphere.

The interior is rich in period details, including ornate fireplaces, damask wall coverings, refined staircases and bespoke finishes.

The bel-etage forms the heart of the house. A marble entrance hall leads to two impressive salons and a formal dining room, all featuring generous proportions and original fireplaces. The professional-grade kitchen, located in the former billiard room, is equipped to gastronomic standards and is ideally suited for entertaining on a grand scale.

The basement level houses 4 characterful rooms, each approximately 30 m², suitable as guest suites, studies or leisure spaces.

On the upper floor, 4 generous suites offer panoramic views over the estate and surrounding woodland. Several rooms feature freestanding bathtubs and balconies overlooking the grounds.

The landscaped estate extends to 5 hectares and borders the private Vegelin woodland, including a large pond. The grounds feature a terrace, a historic tea pavilion dating from circa 1900, a waterside gazebo and a carriage house with plans for conversion into additional guest accommodation or residential space with a separate driveway.

Huize Boschoord is a listed national monument and is designated under the Dutch Natuurschoonwet (Nature Conservation Act). This classification provides substantial fiscal advantages in relation to inheritance and gift tax, income tax, corporate tax, transfer tax and property-related levies, subject to long-term preservation requirements. These benefits significantly support the sustainable ownership and maintenance of the estate.

Sint Nicolaasga is centrally located within the Frisian Lake District and offers excellent accessibility. Joure is reached within 8 minutes, Sneek and Heerenveen within 20 minutes. The A6 motorway provides direct connections to Groningen (45 minutes), Leeuwarden (35 minutes) and Amsterdam (approximately 75 minutes).

Huize Boschoord represents a rare opportunity to acquire a fully restored, NSW-designated estate of scale and distinction, combining privacy, heritage and commercial potential in one of the most desirable regions of the Netherlands.
Viewings are available by appointment.

Features

Alarm system
Air conditioning
Transfer of ownership
Asking Price
€ 2.500.000 v.o.n.
Status
beschikbaar
Acceptance
in overleg
Construction
Kind of house
Landgoed
Building type
vrijstaande woning
Construction period
1871
Roof type
samengesteld dak
Bedrooms
8
Bathrooms
9
Surface Areas And Volume
Living Area
583 m2
Other indoor space
0 m2
External storage space
26 m2
Volume in cubic meters
2033 m3
Plot Size
50080 m2
Facilities
Mechanische ventilatie
Alarminstallatie
Tv kabel
Airconditioning
Rookkanaal
Dakraam
Glasvezel kabel
Domotica
Natuurlijke ventilatie
Aan bosrand
Aan water
Aan rustige weg
Vrij uitzicht
Beschutte ligging
Buiten bebouwde kom
In bosrijke omgeving
Landelijk gelegen
Baerz & Co Property Brochure

Brochure

Videos

Floor Plans

Villa Friesland Makelaardij

Lange Marktstraat 1
8911 AD Leeuwarden

info@villafriesland.nl
+31 (0)58 - 23 006 23

www.villafriesland.nl

Information / Viewing request

Ellen Schoneveld profile image
Ellen Schoneveld
Real Estate Agent

Buying a Luxury Property in Sint Nicolaasga

Sint Nicolaasga invites those seeking a refined community and tranquil country living, enhanced by dependable services, recreational opportunities, and a welcoming, cosmopolitan spirit.