Villa d'Arte werkt intensief samen met Baerz & Co Luxury Homes International, het trefpunt waar exclusieve huizen en veeleisende kopers samenkomen. Hieronder vindt u een geselecteerd aanbod van de meest exclusieve huizen op alle hot-spots in 20 landen rond de Middellandse zee, de Alpen, Mexico en Dubai.

UDEN
Burgemeester Buskensstraat 14 - 5401 EE
Netherlands

Bram Van der Wielen profile image
Bram Van der Wielen
Owner, MMCEPI register makelaar
€869,000 k.k.
Living Area
160m2
Plot Size
702m2
Bedrooms
3

Description

Detached Home with Character, Comfort, and a Beautiful Outbuilding

Situated on a quiet and sought-after street in Uden, this charming detached home—originally from the 1930s—was completely rebuilt under architectural supervision in 2003. The result is a perfect blend of classic character and modern comfort and sustainability. The property is excellently insulated and equipped with full insulation, HR++ glazing, solar panels, and a hybrid heat pump—fully future-proof!

Surroundings and Location

The home is located in a peaceful, atmospheric residential street within one of Uden’s older, characterful neighborhoods. Here you’ll enjoy a friendly ambiance, abundant greenery, and all amenities close by. Within a short distance you’ll find various shops, supermarkets, schools, and sports facilities. The lively center of Uden is easily accessible and offers a wide range of shops, restaurants, and cultural venues.

Nature lovers will appreciate that the Maashorst and Lieverlingsbos nature reserves are within cycling distance—beautiful areas with plenty of walking and cycling routes. Thanks to its convenient location near the A50 motorway, you can quickly reach Eindhoven, Den Bosch, or Nijmegen. This location truly offers the best of both worlds: tranquil living with excellent accessibility and all amenities nearby.

Highlights

- Spacious living room with gas fireplace
- Beautiful, light-filled kitchen-diner with a luxurious finish and views of the garden
-High-quality finishes, high ceilings, and underfloor heating on the ground floor
-Three stylish bedrooms, two of which are in the main house
-Elegant bathroom with underfloor heating, bathtub, and walk-in shower
-Practical garage accommodating at least one vehicle
- Attractive and private garden with several sunny spots throughout the day
- Well-insulated outbuilding with bathroom, suitable for multiple purposes
- A perfect combination of charm and sustainability near Uden’s town center

Layout and Living Comfort

Inside, you’ll find a bright and welcoming home with a practical layout. The hallway features a high-quality finish, ample built-in storage, and a wardrobe area, as well as a guest toilet.

The spacious living area benefits from abundant natural light, underfloor heating, and a gas fireplace. The living room connects openly to the kitchen-diner but can be separated by elegant pivot doors. A practical cellar provides additional storage, and the unique raised room (opkamer) offers access to the first floor.

The modern, luxurious kitchen is both stylish and functional, offering generous space and beautiful views of the garden—perfect for relaxed dining. The kitchen is equipped with built-in appliances including a ceramic oven, combination oven-microwave, steam oven, American-style fridge (with water connection) and a Quooker tap. Provisions are also in place for a built-in coffee machine.

The home offers two spacious bedrooms and a full bathroom. Both bedrooms are located at the front and finished to a high standard. The landing includes an air-conditioning unit that can both heat and cool.

The tiled bathroom features underfloor heating, a bathtub, walk-in shower, wall-mounted toilet, washbasin, mirror heating, and adjustable mechanical ventilation.

Garden and Outdoor Space

The beautifully landscaped garden is a true eye-catcher. With multiple terraces, a lawn, and borders filled with flowers and plants, it’s a wonderful place to relax and enjoy outdoor living. The property also includes a garage and a large driveway with space for multiple cars.

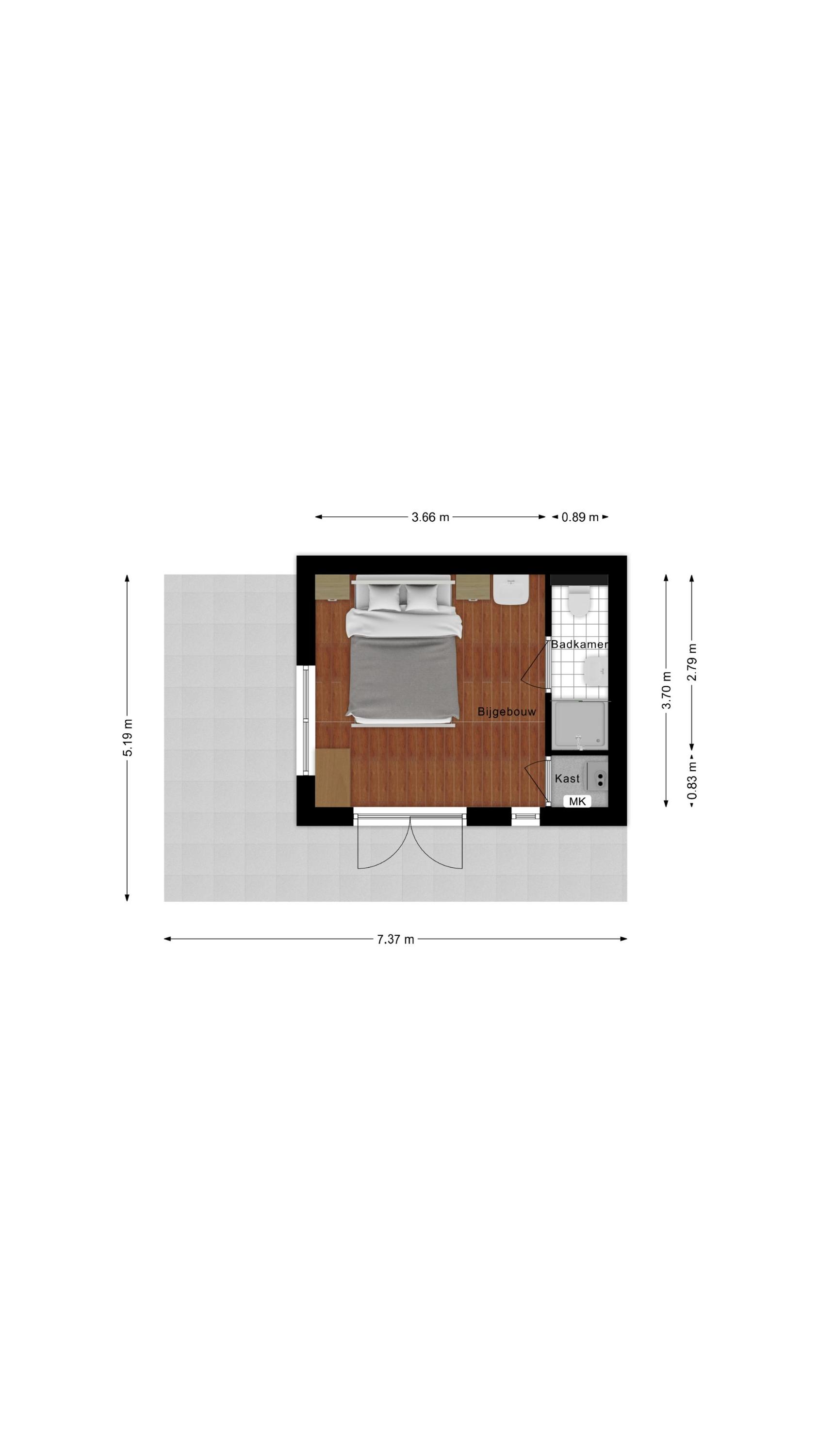
Outbuilding with Many Possibilities

The detached outbuilding is very well insulated and includes a bathroom and its own central heating system. This makes it ideal for use as a home office, studio, guest accommodation, or even as an annexe for assisted living.

In Summary

Burgemeester Buskensstraat 14 offers the perfect combination of character, modern comfort, sustainability, and a beautiful outdoor space. A unique opportunity for those seeking a detached home with space, privacy, and long-term value—on an attractive location in Uden.

Features

Solar panels
Alarm system
Air conditioning
Transfer of ownership
Asking Price
€ 869.000 k.k.
Status
beschikbaar
Acceptance
in overleg
Construction
Kind of house
Eengezinswoning
Building type
vrijstaande woning
Construction period
1930
Energy rating
B
Roof type
mansarde dak
Bedrooms
3
Bathrooms
1
Surface Areas And Volume
Living Area
160 m2
Other indoor space
6 m2
External storage space
22 m2
Volume in cubic meters
574 m3
Plot Size
702 m2
Facilities
Mechanische ventilatie
Alarminstallatie
Airconditioning
Dakraam
Glasvezel kabel
Zonnepanelen
Aan rustige weg
Baerz & Co Property Brochure

Brochure

Videos

Floor Plans

Kordaat Makelaars

Liessentstraat 9 a
5405 AH Uden

bram@kordaatmakelaars.nl
+31 623454361

www.kordaatmakelaars.nl

Information / Viewing request

Bram Van der Wielen profile image
Bram Van der Wielen
Owner, MMCEPI register makelaar

Buying a Luxury Property in Uden

Uden offers a harmonious lifestyle, coupling sophisticated homes with a rich cultural scene and natural beauty. Its welcoming community, exceptional amenities, and international links create a sought-after address for global homeowners.