Villa d'Arte werkt intensief samen met Baerz & Co Luxury Homes International, het trefpunt waar exclusieve huizen en veeleisende kopers samenkomen. Hieronder vindt u een geselecteerd aanbod van de meest exclusieve huizen op alle hot-spots in 20 landen rond de Middellandse zee, de Alpen, Mexico en Dubai.

VOGELENZANG
Bekslaan 58 - 2114 CA
Netherlands

Frits Wilbrink profile image
Frits Wilbrink
Real estate agent
€3,750,000 k.k.
Living Area
297m2
Plot Size
18030m2
Bedrooms
3

Description

Exclusive detached villa in the middle of the forest – a life in harmony with nature.

The charming detached villa “Vogeltjesduyn” is surrounded by greenery, tranquility, space, and privacy. In this high-quality villa, you will literally live at one with nature while enjoying luxury and comfort.

• 3 bedrooms
• 2 bathrooms
• Stairs and elevator to all floors
• Located in the forest
• Within cycling distance of shops

Built in 2019, living area 297m2, volume 1,468m3, plot perceel 18.030m2

The villa has been finished with attention to detail, quality, and style. Large windows provide an abundance of light and offer beautiful views of the surrounding garden and woods. The house exudes a feeling of warmth and security—a place where it is nice to come home to.

Layout
Ground floor
All rooms are accessible via the impressive central hall with its beautiful staircase and elevator. The bright living room is a wonderfully spacious place to enjoy the peace and quiet and the view, and offers direct access to the veranda. The fireplace and underfloor heating add to the atmosphere and comfort. At the front of the house is a cozy drawing room (or dining room) with a view of the forest. Between these rooms is a spacious workspace.
The spacious, cozy kitchen has a high ceiling, a mezzanine, modern built-in appliances including an American refrigerator and a luxury AGA induction stove with 4 ovens. Adjacent to this is a practical utility room. The skylights and wood-burning stove make the kitchen a pleasant, warm place to cook and eat. From the kitchen, you can walk straight onto the veranda, where the wood-burning stove ensures that you can enjoy the outdoors all year round.

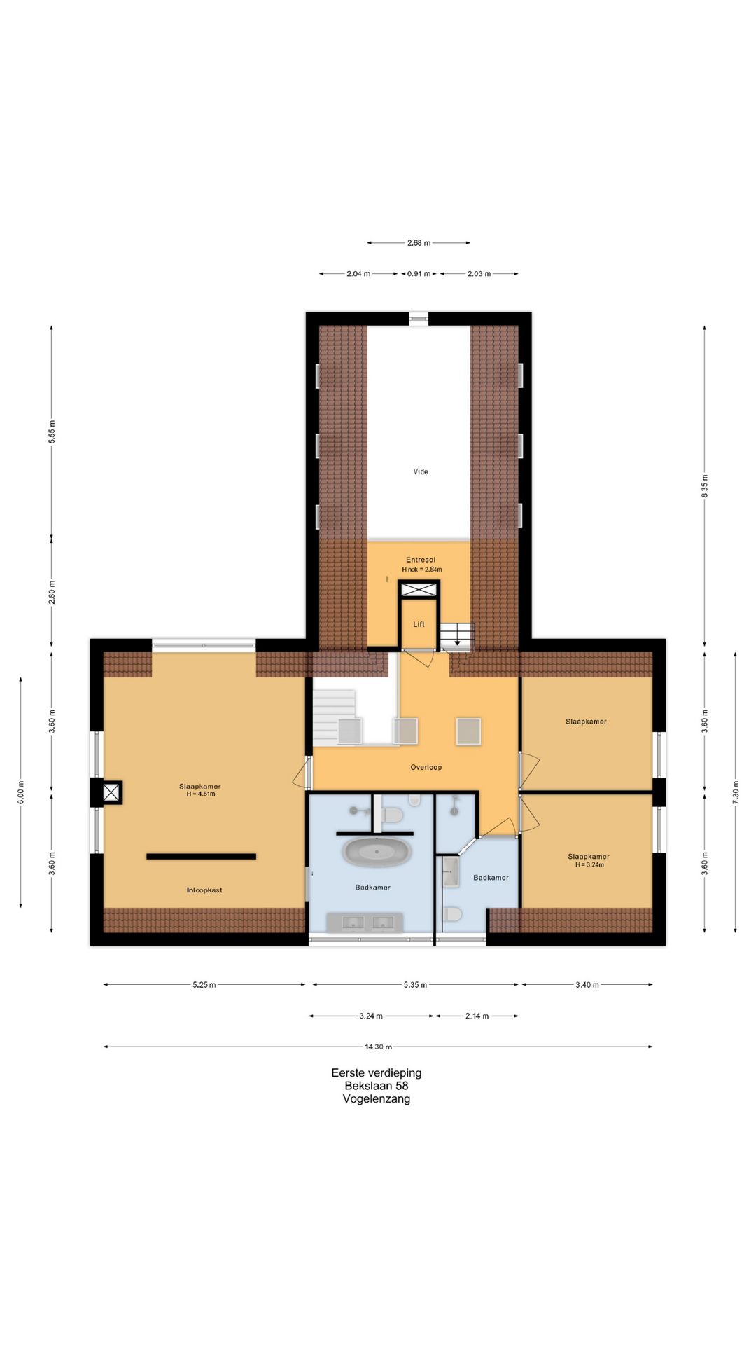
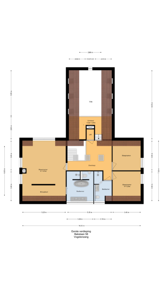
First floor
The upper floor has a spacious landing with skylights for extra light. The generous master bedroom has a cleverly placed dressing room and its own luxurious bathroom with bathtub, walk-in shower, large washbasin, toilet, and urinal. There are also two spacious bedrooms and a second bathroom, perfect for family or guests. The landing leads to the mezzanine, which can also be used as a guest room, and dormer windows on this floor provide extra space and light. There is also an attic.

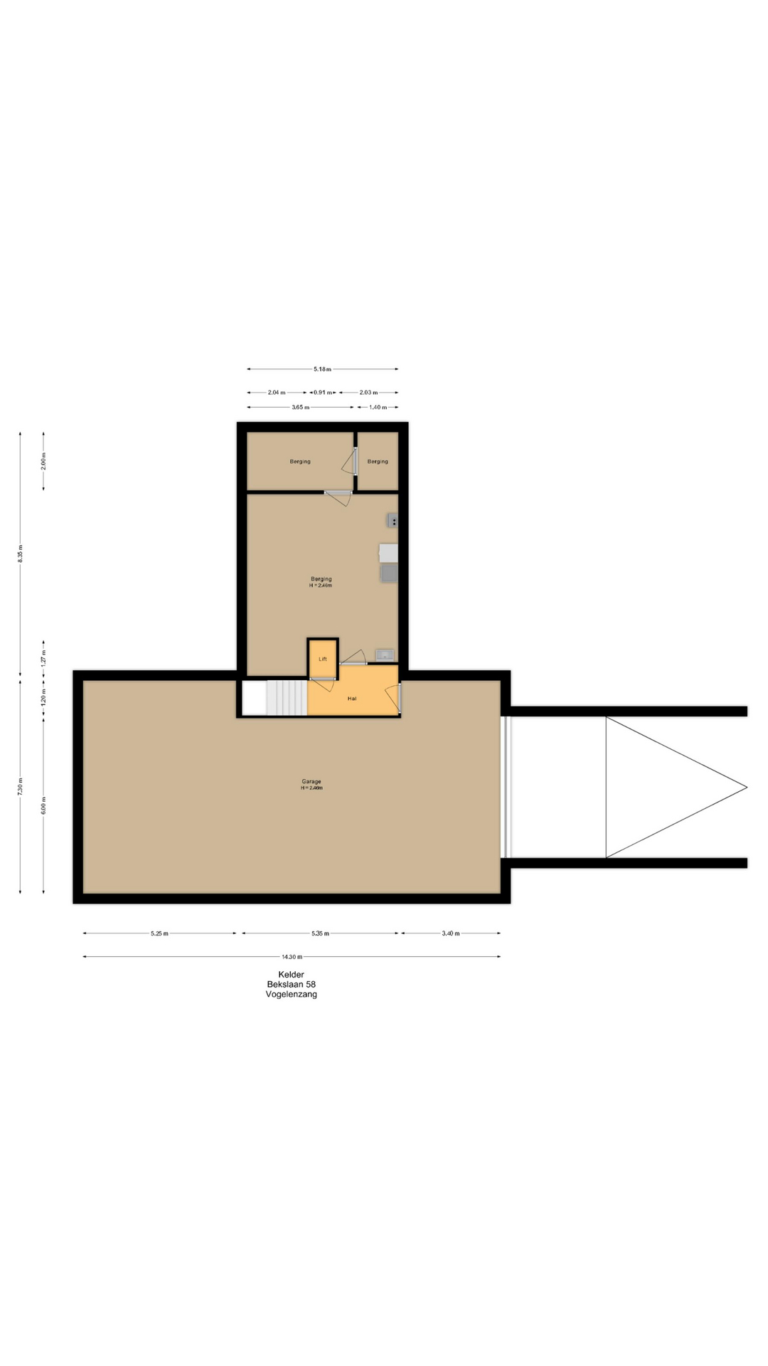
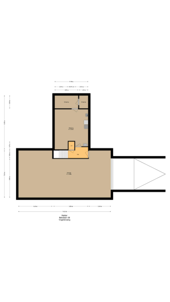
Basement
The large basement houses a spacious double garage for up to four cars and a charging point for electric cars, a storage room, and a large boiler/laundry room.

Sustainability and comfort
Built in 2019, this villa is excellently insulated.
• Floor insulation
• Roof insulation
• Wall insulation
• HR++ glass
• Underfloor heating as main heating
• Energy label A

Location
The villa is situated on a unique plot of over 18,000 m² in the middle of the forest. Here you can enjoy absolute peace, privacy, and nature—without compromising on accessibility. Shops and schools are within cycling distance. A rare combination of luxury living, living in nature with everyday amenities within easy reach.

Water
There is a private harbor with mooring for three sloops. From here, you can sail directly onto the Leidsche Vaart to Haarlem or Kagerplassen, among other places.

Details
• Natural stone flooring (Burgundy flagstones)
• Underfloor heating throughout the ground floor
• Garage with underfloor heating and troweled floor
• Each floor is accessible by elevator
• Solid oak doors
• Alarm system
• Built with hand-formed clinkers
• Clad with low-maintenance Red Cedar.

Frits Wilbrink will be happy to show you around.
Call our office for an appointment.

Features

Alarm system
Transfer of ownership
Asking Price
€ 3.750.000 k.k.
Status
beschikbaar
Acceptance
in overleg
Construction
Kind of house
Villa
Building type
vrijstaande woning
Construction period
2019
Energy rating
A
Roof type
samengesteld dak
Bedrooms
3
Bathrooms
2
Surface Areas And Volume
Living Area
297 m2
Other indoor space
97 m2
Exterior space attached to the buildinge
28 m2
Volume in cubic meters
1468 m3
Plot Size
18030 m2
Facilities
Mechanische ventilatie
Alarminstallatie
Tv kabel
Lift
Rookkanaal
Dakraam
Aan bosrand
Aan water
Aan rustige weg
Vrij uitzicht
Beschutte ligging
Buiten bebouwde kom
In bosrijke omgeving
Landelijk gelegen
Baerz & Co Property Brochure

Brochure

Videos

Floor Plans

Wilbrink & v.d. Vlugt Makelaars

Heereweg 231
2161 BG Lisse

info@wilbrinkvandervlugt.nl
+31 252 41 90 49

www.onsaanbod.nl

Information / Viewing request

Frits Wilbrink profile image
Frits Wilbrink
Real estate agent

Buying a Luxury Property in Vogelenzang

Vogelenzang offers an exceptional combination of refined living, enduring heritage, and close-knit community. Its premier estates, aesthetic lifestyle, and proximity to cosmopolitan amenities make it a discreet yet vibrant destination for global families and discerning investors.