Villa d'Arte werkt intensief samen met Baerz & Co Luxury Homes International, het trefpunt waar exclusieve huizen en veeleisende kopers samenkomen. Hieronder vindt u een geselecteerd aanbod van de meest exclusieve huizen op alle hot-spots in 20 landen rond de Middellandse zee, de Alpen, Mexico en Dubai.

AMSTELVEEN
Amsteldijk Noord 105 - 1183 TH
Países Bajos

€2,850,000
Superficie habitable
309m2
Tamaño del terreno
1930m2
Dormitorios
4

Descripción

La casa pareada en Amstelveen ofrece una excepcional combinación de serenidad junto al río y diseño atemporal. Esta elegante residencia pareada abarca aproximadamente 309 m² y se encuentra en una generosa parcela de 1.930 m², posicionada para ofrecer una rara sensación de privacidad y conexión con el Amstel. Desde el primer momento, una calma palpable marca el tono, con un paisajismo cuidadosamente diseñado y una verja de hierro forjado que conduce al garaje y la entrada principal.

En el interior, la vivienda destaca por su refinado carácter histórico, desde vitrales originales del Palacio de la Paz hasta robustos suelos de madera recuperados de antiguos cuarteles. Cada uno de los cuatro dormitorios y tres baños ofrece un confort detalladamente estudiado, iluminados por luz natural y vistas al jardín o al río.

Entre los elementos distintivos se cuentan cuatro chimeneas abiertas, puertas de roble hechas a mano y un tejado de paja aislado. La casa pareada de Amstelveen invita a una vida versátil, con espacio para la familia, el trabajo flexible o la hospitalidad. En el exterior, el amplio jardín y las terrazas brindan privacidad poco habitual, con acceso directo a un amarre privado sobre el Amstel. Es un hogar donde la tranquilidad, el detalle arquitectónico y el acceso tanto a los servicios urbanos como a la naturaleza confluyen con seguridad.

Explora Amstelveen con Baerz, Tu Buscador y Asesor Personal de Propiedades de Confianza

Navegar el discreto y competitivo mercado de Amstelveen requiere conocimiento más allá de las ofertas públicas. Los asesores cualificados brindan acceso a ventas privadas, comprensión de la dinámica vecinal y experiencia en operaciones a medida. Su especialización garantiza diligencia exhaustiva, negociaciones optimizadas y transacciones internacionales fluidas, protegiendo los intereses de los clientes en cada fase.

Evita los errores comunes

Los compradores internacionales a menudo pierden tiempo valioso en listados en línea duplicados, desactualizados o engañosos, especialmente porque casi el 30% de las casas de lujo nunca aparecen en el mercado público. Los agentes del vendedor representan los intereses del vendedor, no los del comprador. Incluso solicitar información sobre una propiedad puede resultar en que un agente del vendedor te registre como su “cliente” sin tu consentimiento.
Con Baerz Property Finders & Advisors, evitas por completo todos estos errores. Trabajamos únicamente en tu nombre, ofreciendo representación independiente, orientación clara y acceso a todas las propiedades disponibles, incluidas oportunidades fuera del mercado que otros nunca llegan a ver.

¿Interesado en un Asesor Personal de Propiedades?

Te mostramos todas las casas disponibles en un solo lugar. No dudes en contactarnos para saber cómo podemos satisfacer tus necesidades y proteger tus intereses exclusivamente.

Características

Transferencia de propiedad
Precio solicitado
€ 2.850.000
Estado
beschikbaar
Aceptación
in overleg
Construcción
Tipo de casa
Herenhuis
Tipo de edificio
twee onder een kapwoning
Periodo de construcción
1935
Tipo de tejado
zadeldak
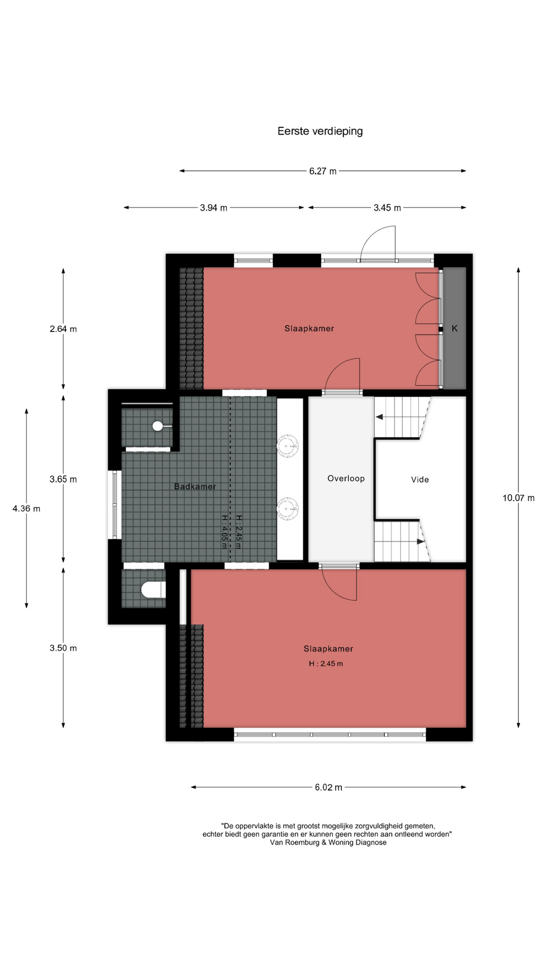
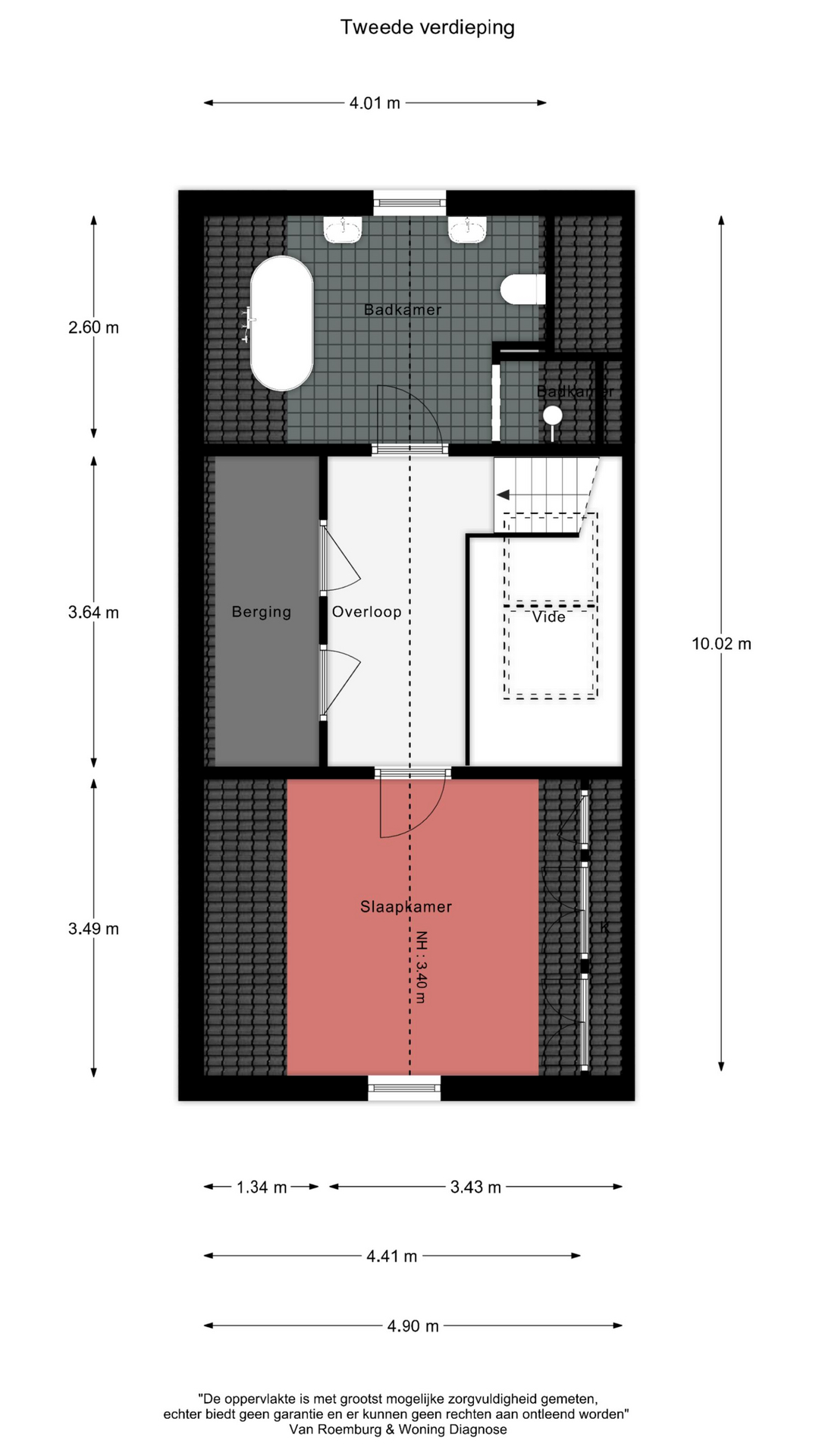
Dormitorios
4
Baños
3
Superficies y Volumen
Superficie habitable
309 m2
Otro espacio interior
0 m2
Espacio exterior adjunto al edificio
20 m2
Espacio de almacenamiento externo
22 m2
Volumen en metros cúbicos
965 m3
Tamaño del terreno
1930 m2
Baerz & Co Property Brochure

Folleto

Vídeos

Heeren Makelaars

Stadionweg 75
1077 SE Amsterdam

info@heerenmakelaars.nl
+31 204702255

www.heerenmakelaars.nl

Solicitud de información / Visita

Sander Bovenkerk profile image
Sander Bovenkerk
Real estate agent

Comprar una propiedad de lujo en Amstelveen

Amstelveen ofrece residencias refinadas, ambiente cosmopolita y excelente conectividad. Su mezcla de zonas verdes, servicios internacionales y sofisticación atrae a compradores globales y familias que buscan privacidad y conexiones urbanas vivas.