Villa d'Arte werkt intensief samen met Baerz & Co Luxury Homes International, het trefpunt waar exclusieve huizen en veeleisende kopers samenkomen. Hieronder vindt u een geselecteerd aanbod van de meest exclusieve huizen op alle hot-spots in 20 landen rond de Middellandse zee, de Alpen, Mexico en Dubai.

AMSTERDAM
Blauwburgwal 18 H - 1015 AT
Países Bajos

€3,950,000
Superficie habitable
239m2
Tamaño del terreno
90m2
Dormitorios
3

Descripción

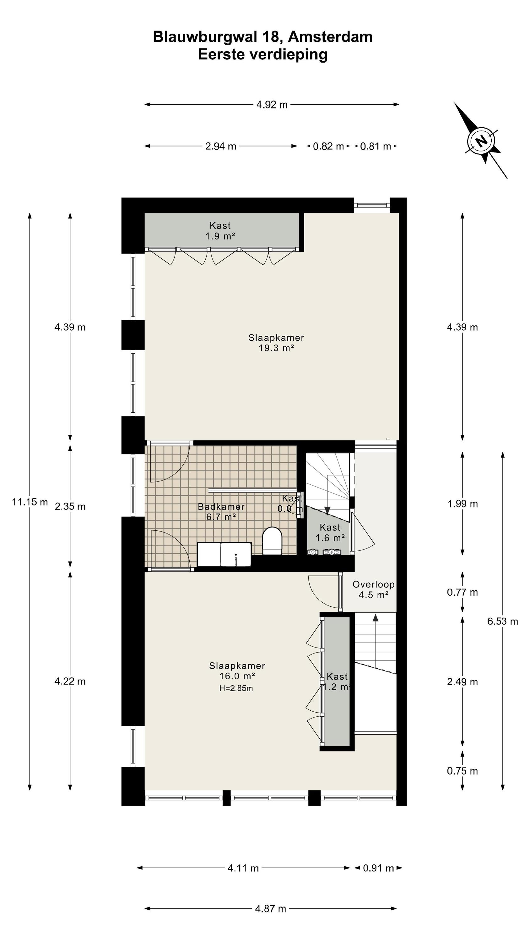
Canal House Amsterdam define una presencia sofisticada en el legendario cinturón de canales de la ciudad, discretamente situado entre Herengracht y Singel. Esta residencia de cinco plantas ofrece aproximadamente 239 m² de espacio habitable y fusiona su origen histórico con detalles minimalistas japoneses, resultado de una meticulosa renovación en 2020. Al entrar, la planta baja presenta un espacio comercial multifuncional presidido por madera de roble, vigas expuestas y abundante luz natural, ideal para un estudio discreto o una oficina en casa. Los pisos superiores albergan tres dormitorios tranquilos y dos baños, cada uno acabado con un elevado y atemporal estándar. La suite principal incluye un baño privado de bienestar con bañera Agape exenta, ducha a ras de suelo, cabina de vapor y una tumbona integrada, enriquecida con iluminación ambiental y cálidas texturas de madera.

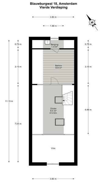
La segunda planta está dedicada a la vida familiar y social, con una moderna cocina dotada de electrodomésticos premium, isla central y amplios espacios para relajarse, todo enmarcado por vistas al canal a través de altos ventanales. Los momentos privados se extienden hasta el balcón del último piso, un refugio íntimo bajo techos inclinados. En toda la vivienda, suelos de roble macizo, calefacción por suelo radiante de alta eficiencia y un sistema climático totalmente actualizado reflejan el compromiso con el confort y la sostenibilidad, avalado por una etiqueta energética A+++.

Vivir aquí significa acceso inmediato a vibrantes calles con boutiques exclusivas, restaurantes reconocidos y espacios culturales, todo a pocos pasos de la Estación Central de Ámsterdam. Tranquila, espaciosa y restaurada con arte, esta casa de canal ofrece una rara confluencia de encanto histórico y vida contemporánea en el corazón de Ámsterdam.

Explora Ámsterdam con Baerz, Tu Buscador y Asesor Personal de Propiedades de Confianza

Navegar en el mercado de lujo de Ámsterdam exige un profundo conocimiento local, discreción y habilidad negociadora. Los mejores asesores ofrecen acceso a listados privados, aclaran las complejidades legales y detectan oportunidades en un contexto donde rara vez afloran al público. Los equipos consultores realizan auditorías exhaustivas y representación personalizada, fortaleciendo su posición en negociaciones, garantizando transacciones impecables y protegiendo su privacidad en cada etapa.

Evita los errores comunes

Los compradores internacionales a menudo pierden tiempo valioso en listados en línea duplicados, desactualizados o engañosos, especialmente porque casi el 30% de las casas de lujo nunca aparecen en el mercado público. Los agentes del vendedor representan los intereses del vendedor, no los del comprador. Incluso solicitar información sobre una propiedad puede resultar en que un agente del vendedor te registre como su “cliente” sin tu consentimiento.
Con Baerz Property Finders & Advisors, evitas por completo todos estos errores. Trabajamos únicamente en tu nombre, ofreciendo representación independiente, orientación clara y acceso a todas las propiedades disponibles, incluidas oportunidades fuera del mercado que otros nunca llegan a ver.

¿Interesado en un Asesor Personal de Propiedades?

Te mostramos todas las casas disponibles en un solo lugar. No dudes en contactarnos para saber cómo podemos satisfacer tus necesidades y proteger tus intereses exclusivamente.

Características

Transferencia de propiedad
Precio solicitado
€ 3.950.000
Estado
beschikbaar
Aceptación
in overleg
Construcción
Tipo de casa
Grachtenpand
Tipo de edificio
tussenwoning
Periodo de construcción
1761
Calificación energética
A+++
Tipo de tejado
zadeldak
Dormitorios
3
Baños
2
Superficies y Volumen
Superficie habitable
239 m2
Otro espacio interior
0 m2
Espacio exterior adjunto al edificio
9 m2
Espacio de almacenamiento externo
2 m2
Volumen en metros cúbicos
939 m3
Tamaño del terreno
90 m2
Instalaciones
Mechanische ventilatie
Tv kabel
Dakraam
Aan water
In centrum
Vrij uitzicht
Baerz & Co Property Brochure

Folleto

Vídeos

Heeren Makelaars

Stadionweg 75
1077 SE Amsterdam

info@heerenmakelaars.nl
+31 204702255

www.heerenmakelaars.nl

Solicitud de información / Visita

Sander Bovenkerk profile image
Sander Bovenkerk
Real estate agent

Comprar una propiedad de lujo en Ámsterdam

Ámsterdam ofrece un estilo de vida cosmopolita, definido por su legado histórico, su conectividad y un lujo discreto. Sus residentes disfrutan de una comunidad internacional vibrante, servicios a medida y una rica vida cultural. La fuerza de la ciudad reside en su fusión de historia, sofisticación y espíritu progresista.