Villa d'Arte werkt intensief samen met Baerz & Co Luxury Homes International, het trefpunt waar exclusieve huizen en veeleisende kopers samenkomen. Hieronder vindt u een geselecteerd aanbod van de meest exclusieve huizen op alle hot-spots in 20 landen rond de Middellandse zee, de Alpen, Mexico en Dubai.

BERGSCHENHOEK
Oosteindseweg 13 - 2661 EA
Países Bajos

€1,200,000
Superficie habitable
273m2
Tamaño del terreno
581m2
Dormitorios
5

Descripción

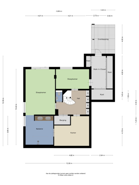
La casa pareada en Bergschenhoek es una invitación a un estilo de vida refinado que reúne privacidad, confort y accesibilidad en perfecta armonía. Ubicada en una parcela espaciosa de 581 m², esta propiedad brinda una sensación de refugio a pocos pasos del corazón de Bergschenhoek. Con una superficie habitable de 273 m², cinco dormitorios y dos baños, la vivienda está diseñada cuidadosamente para el disfrute familiar más generoso.

Una amplia entrada para vehículos con punto de recarga eléctrico da la bienvenida a la propiedad, complementada por un garaje privado. Grandes superficies acristaladas y un relajante invernadero bañan de luz la zona principal de estar, donde el suelo de madera y la chimenea abierta generan un ambiente acogedor. La cocina, con moderna isla y electrodomésticos integrados de alta gama, incluye comodidades como armario climatizado, Quooker y horno de vapor. Los balcones y jardines colindantes crean una transición fluida entre interior y exterior, con sol durante todo el día y soluciones prácticas como persianas enrollables, toldos y veinte paneles solares para maximizar el confort y la eficiencia.

La distribución favorece un ritmo familiar cómodo, con dormitorios amplios, abundante espacio de almacenamiento y un ático versátil bajo ventanales luminosos. La calificación energética B, el avanzado aislamiento y los acristalamientos de alta gama aseguran calidad y durabilidad. Esta casa pareada en Bergschenhoek está cerca de colegios, comercios y los parajes naturales de Rottemeren, representando lujo discreto y el arte de vivir holandés sin esfuerzo.

Explora Bergschenhoek con Baerz, Tu Buscador y Asesor Personal de Propiedades de Confianza



Evita los errores comunes

Los compradores internacionales a menudo pierden tiempo valioso en listados en línea duplicados, desactualizados o engañosos, especialmente porque casi el 30% de las casas de lujo nunca aparecen en el mercado público. Los agentes del vendedor representan los intereses del vendedor, no los del comprador. Incluso solicitar información sobre una propiedad puede resultar en que un agente del vendedor te registre como su “cliente” sin tu consentimiento.
Con Baerz Property Finders & Advisors, evitas por completo todos estos errores. Trabajamos únicamente en tu nombre, ofreciendo representación independiente, orientación clara y acceso a todas las propiedades disponibles, incluidas oportunidades fuera del mercado que otros nunca llegan a ver.

¿Interesado en un Asesor Personal de Propiedades?

Te mostramos todas las casas disponibles en un solo lugar. No dudes en contactarnos para saber cómo podemos satisfacer tus necesidades y proteger tus intereses exclusivamente.

Características

Paneles solares
Transferencia de propiedad
Precio solicitado
€ 1.200.000
Estado
beschikbaar
Aceptación
in overleg
Construcción
Tipo de casa
Eengezinswoning
Tipo de edificio
halfvrijstaande woning
Periodo de construcción
1978
Calificación energética
B
Tipo de tejado
samengesteld dak
Dormitorios
5
Baños
2
Superficies y Volumen
Superficie habitable
273 m2
Otro espacio interior
51 m2
Espacio exterior adjunto al edificio
41 m2
Volumen en metros cúbicos
1148 m3
Tamaño del terreno
581 m2
Instalaciones
Rolluiken
Tv kabel
Buitenzonwering
Dakraam
Glasvezel kabel
Zonnepanelen
In centrum
Beschutte ligging
Baerz & Co Property Brochure

Folleto

Vídeos

Planos

DB Makelaars

Dorpsstraat 79
2661 CE Bergschenhoek

dominique@dbmakelaars.nl
+31 107850833

www.dbmakelaars.nl

Solicitud de información / Visita

Dominique Blom profile image
Dominique Blom
Register Makelaar Taxateur

Comprar una propiedad de lujo en Bergschenhoek

Bergschenhoek ofrece una comunidad selecta con servicios a medida, zonas verdes y una visión internacional, convirtiéndose en el destino ideal para quienes buscan un estilo de vida sofisticado y valor permanente.