Villa d'Arte werkt intensief samen met Baerz & Co Luxury Homes International, het trefpunt waar exclusieve huizen en veeleisende kopers samenkomen. Hieronder vindt u een geselecteerd aanbod van de meest exclusieve huizen op alle hot-spots in 20 landen rond de Middellandse zee, de Alpen, Mexico en Dubai.

DINTELOORD
Galgendijk 3 - 4671 RH
Países Bajos

€950,000
Superficie habitable
241m2
Tamaño del terreno
1640m2
Dormitorios
5

Descripción

La casa independiente Dinteloord se sitúa en el tranquilo y acuático borde del pueblo, fusionando serenidad con una inusual sensación de amplitud. Ubicada en una generosa parcela de 1.640 m², esta vivienda única ofrece paz y privacidad, con vistas despejadas sobre el agua y jardines japoneses cuidadosamente diseñados. La palabra clave ‘casa independiente Dinteloord’ se refleja en la ubicación discreta de la propiedad, al final de una calle sin salida, y la integración fluida de los espacios interiores y exteriores.

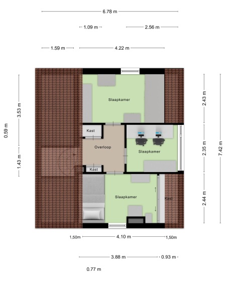
La residencia principal presenta una distribución pensada, que incluye una amplia sala de estar, un invernadero con vistas panorámicas, una cocina con encimera de granito y cuatro dormitorios. Elementos como el aire acondicionado y un avanzado sistema de aislamiento contribuyen a un ambiente confortable en el interior y a una calificación energética C. Un quinto dormitorio, aire acondicionado adicional y equipamientos prácticos refuerzan el enfoque en la comodidad y en la vida cotidiana.

Un punto destacado es la casa de invitados multifuncional, con contador energético independiente y etiqueta energética B, ideal para trabajar, recibir invitados o alquilar. Seis amarres privados bordean el frente de agua, ofreciendo opciones para navegación o inversión.

Privacidad y buena conexión definen la propiedad, con estacionamiento amplio en la parcela, almacenamiento seguro y conexión por fibra óptica. Vivir aquí es disfrutar de la rara unión entre la sofisticación residencial y el acceso directo al agua, donde cada día se distingue por la calma y la versatilidad ilimitada.

Explora Dinteloord con Baerz, Tu Buscador y Asesor Personal de Propiedades de Confianza

La búsqueda de una propiedad exclusiva en Dinteloord exige conocimiento detallado del mercado. Los asesores personales brindan acceso a oportunidades reservadas, orientan en negociaciones complejas y garantizan una debida diligencia integral. Su conocimiento de las costumbres locales y su red facilitan transacciones fluidas y detectan nuevas oportunidades. Para quienes demandan privacidad y precisión, la asesoría supera al corretaje convencional.

Evita los errores comunes

Los compradores internacionales a menudo pierden tiempo valioso en listados en línea duplicados, desactualizados o engañosos, especialmente porque casi el 30% de las casas de lujo nunca aparecen en el mercado público. Los agentes del vendedor representan los intereses del vendedor, no los del comprador. Incluso solicitar información sobre una propiedad puede resultar en que un agente del vendedor te registre como su “cliente” sin tu consentimiento.
Con Baerz Property Finders & Advisors, evitas por completo todos estos errores. Trabajamos únicamente en tu nombre, ofreciendo representación independiente, orientación clara y acceso a todas las propiedades disponibles, incluidas oportunidades fuera del mercado que otros nunca llegan a ver.

¿Interesado en un Asesor Personal de Propiedades?

Te mostramos todas las casas disponibles en un solo lugar. No dudes en contactarnos para saber cómo podemos satisfacer tus necesidades y proteger tus intereses exclusivamente.

Características

Aire acondicionado
Transferencia de propiedad
Precio solicitado
€ 950.000
Estado
beschikbaar
Aceptación
in overleg
Construcción
Tipo de casa
Eengezinswoning
Tipo de edificio
vrijstaande woning
Periodo de construcción
1926
Calificación energética
C
Tipo de tejado
samengesteld dak
Dormitorios
5
Baños
2
Superficies y Volumen
Superficie habitable
241 m2
Otro espacio interior
0 m2
Espacio exterior adjunto al edificio
2 m2
Espacio de almacenamiento externo
23 m2
Volumen en metros cúbicos
894 m3
Tamaño del terreno
1640 m2
Instalaciones
Airconditioning
Dakraam
Glasvezel kabel
Natuurlijke ventilatie
Vrij uitzicht
Aan vaarwater
Baerz & Co Property Brochure

Folleto

Vídeos

Helmig Makelaardij en Taxatieburo o.z. B.V.

Dorpsstraat 107
4661 HN Halsteren

info@helmigmakelaardij.nl
+31 164-685925

www.helmigmakelaardij.nl

Solicitud de información / Visita

Erwin Schuurbiers profile image
Erwin Schuurbiers
Makelaar / Taxateur

Comprar una propiedad de lujo en Dinteloord

Dinteloord ofrece una comunidad sofisticada, vida discreta y conectividad excepcional. Los residentes disfrutan servicios de alto nivel y calma, convertido el municipio en destino ideal para compradores internacionales que valoran la elegancia y la privacidad.