Villa d'Arte werkt intensief samen met Baerz & Co Luxury Homes International, het trefpunt waar exclusieve huizen en veeleisende kopers samenkomen. Hieronder vindt u een geselecteerd aanbod van de meest exclusieve huizen op alle hot-spots in 20 landen rond de Middellandse zee, de Alpen, Mexico en Dubai.

LANDSMEER
Zuiderzeelaan 105 - 1121 RA
Países Bajos

€798,011
Superficie habitable
132m2
Tamaño del terreno
147m2
Dormitorios
5

Descripción

La vivienda familiar en Landsmeer ofrece una atractiva combinación de espacio, confort y luminosidad en una zona residencial altamente deseada. Con una superficie habitable de 132 m², esta propiedad lista para entrar a vivir cuenta con cinco dormitorios y un jardín orientado al sur, cuidadosamente paisajístico, que proporciona privacidad y una perfecta integración entre el interior y el exterior. La ubicación es tranquila, pero con excelente acceso a Ámsterdam y a la zona recreativa ’t Twiske.

La planta baja recibe con una cocina abierta de estilo moderno equipada con electrodomésticos integrados y una generosa encimera, conectando con un salón luminoso enmarcado por puertas francesas hacia el jardín. Incluye detalles prácticos como un armario de almacenamiento bajo la escalera y un elegante aseo de pared.

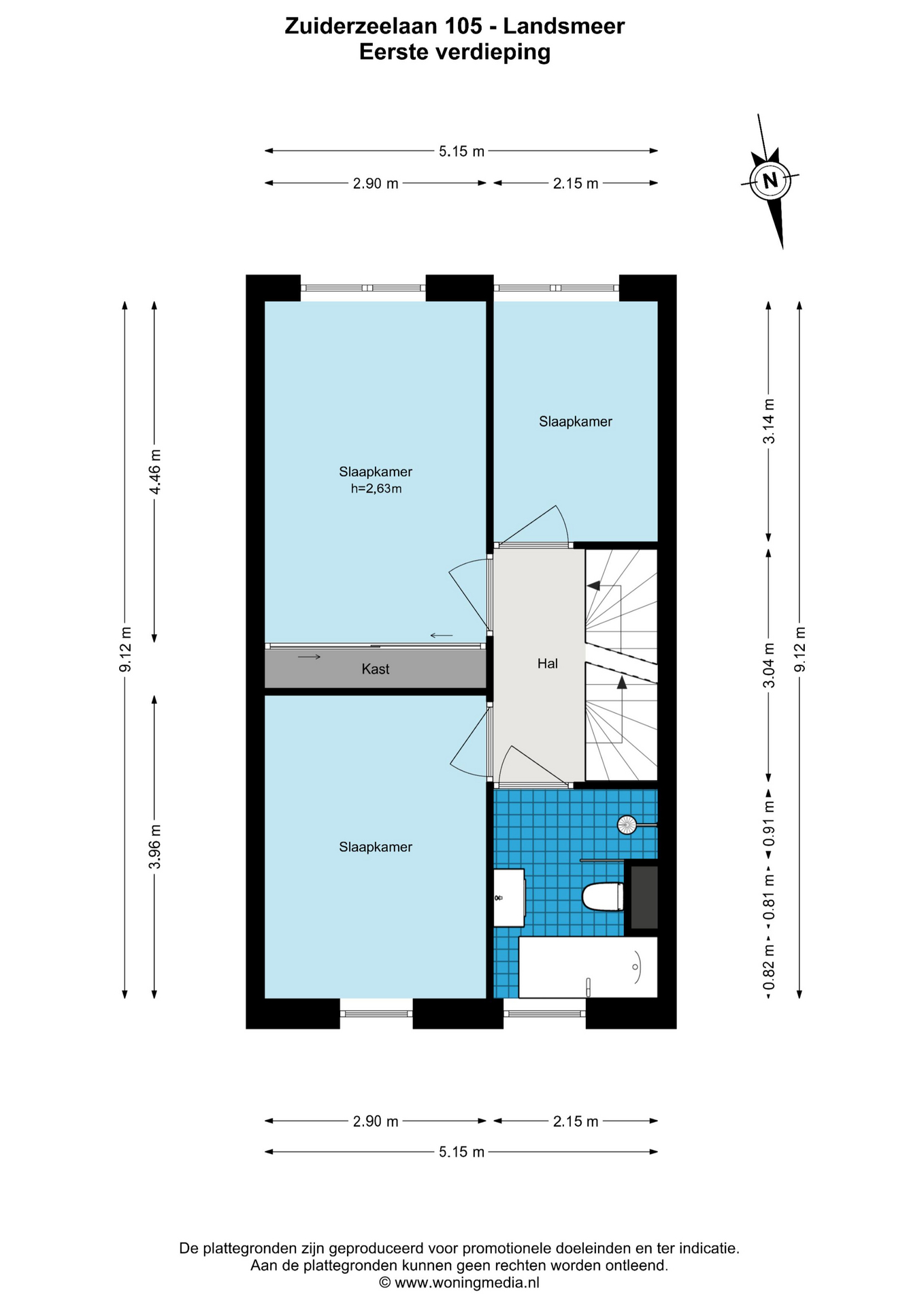
En la planta superior, tres dormitorios disfrutan de luz natural y el baño dispone de bañera, ducha a ras de suelo, segundo inodoro y mueble lavabo. La segunda planta aporta dos dormitorios amplios y una zona independiente para lavandería e instalaciones técnicas. En toda la vivienda, la calefacción por suelo radiante y la ventilación mecánica garantizan el confort moderno, complementados por un completo aislamiento y doble acristalamiento.

Con amplias opciones de aparcamiento, acceso directo al agua y etiqueta energética A, esta propiedad combina la tranquilidad de la vida de pueblo con rápidas conexiones a la ciudad.

Explora Landsmeer con Baerz, Tu Buscador y Asesor Personal de Propiedades de Confianza

Colaborar con un asesor inmobiliario local aporta ventajas decisivas. Muchas propiedades excepcionales se comercializan de forma privada y requieren acceso a redes consolidadas. Los asesores experimentados guían las negociaciones, gestionan el marco regulatorio y facilitan contactos con arquitectos y proveedores acreditados. Su experiencia es clave para asegurar adquisiciones sobresalientes, beneficiando tanto a compradores como a vendedores.

Evita los errores comunes

Los compradores internacionales a menudo pierden tiempo valioso en listados en línea duplicados, desactualizados o engañosos, especialmente porque casi el 30% de las casas de lujo nunca aparecen en el mercado público. Los agentes del vendedor representan los intereses del vendedor, no los del comprador. Incluso solicitar información sobre una propiedad puede resultar en que un agente del vendedor te registre como su “cliente” sin tu consentimiento.
Con Baerz Property Finders & Advisors, evitas por completo todos estos errores. Trabajamos únicamente en tu nombre, ofreciendo representación independiente, orientación clara y acceso a todas las propiedades disponibles, incluidas oportunidades fuera del mercado que otros nunca llegan a ver.

¿Interesado en un Asesor Personal de Propiedades?

Te mostramos todas las casas disponibles en un solo lugar. No dudes en contactarnos para saber cómo podemos satisfacer tus necesidades y proteger tus intereses exclusivamente.

Características

Transferencia de propiedad
Precio solicitado
€ 798.011
Estado
beschikbaar
Aceptación
in overleg
Construcción
Tipo de casa
Eengezinswoning
Tipo de edificio
tussenwoning
Periodo de construcción
2016
Calificación energética
A
Tipo de tejado
zadeldak
Dormitorios
5
Baños
1
Superficies y Volumen
Superficie habitable
132 m2
Otro espacio interior
3 m2
Espacio de almacenamiento externo
5 m2
Volumen en metros cúbicos
512 m3
Tamaño del terreno
147 m2
Instalaciones
Mechanische ventilatie
Tv kabel
Dakraam
Aan water
Aan rustige weg
In woonwijk
Vrij uitzicht
Aan vaarwater
Baerz & Co Property Brochure

Folleto

Vídeos

11 Makelaars - Amsterdam-Waterland

Nieuwe Gouw 10-12
1121 GX Landsmeer

info@11makelaars.nl
+31 20 20 50 208

www.11makelaars.nl

Solicitud de información / Visita

Niels Eering profile image
Niels Eering
Real Estate Agent

Comprar una propiedad de lujo en Landsmeer

Landsmeer representa una vida armoniosa con servicios de primera, entornos naturales y una comunidad sofisticada. Su equilibrio de privacidad y conexión urbana atrae a un público exigente y global.