Villa d'Arte werkt intensief samen met Baerz & Co Luxury Homes International, het trefpunt waar exclusieve huizen en veeleisende kopers samenkomen. Hieronder vindt u een geselecteerd aanbod van de meest exclusieve huizen op alle hot-spots in 20 landen rond de Middellandse zee, de Alpen, Mexico en Dubai.

LEPELSTRAAT
Kerkstraat 57 - 4664 BP
Países Bajos

€1,250,000
Superficie habitable
570m2
Tamaño del terreno
771m2
Dormitorios
6

Descripción

El edificio polivalente Lepelstraat representa una oportunidad única para adquirir un monumento municipal con profundas raíces históricas, situado en los Países Bajos. El variado pasado de la propiedad, que ha albergado desde un convento hasta una escuela de niñas y una biblioteca, ha dado forma a su actual identidad como un espacio flexible donde se combina con esmero la vida y el trabajo. Con 570 m² de superficie habitable sobre una parcela de 771 m², su distribución versátil incluye despachos, salas de reuniones y zonas residenciales independientes.

En la planta baja, varias oficinas, aseos, una cocina y un amplio salón multifuncional permiten una gama de usos que va desde espacios creativos de trabajo hasta comercio minorista o restauración, todo ello facilitado por un entorno espacioso y accesible. La primera planta está concebida como un apartamento confortable, con un generoso salón con cocina abierta, tres dormitorios y un moderno baño. La buhardilla ofrece mayor versatilidad para el trabajo, actividades de ocio o alojamiento extra. En la segunda planta se ubica un apartamento independiente de concepto abierto, con ventana tipo balcón Velux y baño en suite, mientras que prestaciones como aire acondicionado y zona de bar refuerzan el confort y el sentido social del espacio.

En 2020, una renovación integral incorporó 24 paneles solares, aire acondicionado avanzado y nuevos sistemas de aislamiento, alcanzando la clase energética B. La seguridad y el acceso se garantizan mediante un sistema electrónico de cierre, alarma y red de cámaras. El jardín paisajístico incluye una pista de petanca y acceso a aparcamiento, todo completamente cerrado para mayor privacidad. El edificio multifuncional Lepelstraat ofrece una flexibilidad excepcional, ideal para combinar residencia y trabajo, viviendas multigeneracionales o usos empresariales, reflejando una armoniosa fusión de herencia histórica y modernidad.

Explora Lepelstraat con Baerz, Tu Buscador y Asesor Personal de Propiedades de Confianza

El acceso a este mercado requiere un conocimiento profundo, contactos estratégicos y negociación precisa. Asesores fiables conectan a los clientes con oportunidades fuera del mercado, interpretan el valor local y facilitan transacciones privadas para lograr el mejor resultado. Su enfoque personalizado es fundamental en un entorno de discreción y ventas a medida.

Evita los errores comunes

Los compradores internacionales a menudo pierden tiempo valioso en listados en línea duplicados, desactualizados o engañosos, especialmente porque casi el 30% de las casas de lujo nunca aparecen en el mercado público. Los agentes del vendedor representan los intereses del vendedor, no los del comprador. Incluso solicitar información sobre una propiedad puede resultar en que un agente del vendedor te registre como su “cliente” sin tu consentimiento.
Con Baerz Property Finders & Advisors, evitas por completo todos estos errores. Trabajamos únicamente en tu nombre, ofreciendo representación independiente, orientación clara y acceso a todas las propiedades disponibles, incluidas oportunidades fuera del mercado que otros nunca llegan a ver.

¿Interesado en un Asesor Personal de Propiedades?

Te mostramos todas las casas disponibles en un solo lugar. No dudes en contactarnos para saber cómo podemos satisfacer tus necesidades y proteger tus intereses exclusivamente.

Características

Paneles solares
Aire acondicionado
Transferencia de propiedad
Precio solicitado
€ 1.250.000
Estado
beschikbaar
Aceptación
in overleg
Construcción
Tipo de casa
Eengezinswoning
Tipo de edificio
vrijstaande woning
Periodo de construcción
1922
Calificación energética
B
Tipo de tejado
zadeldak
Dormitorios
6
Baños
2
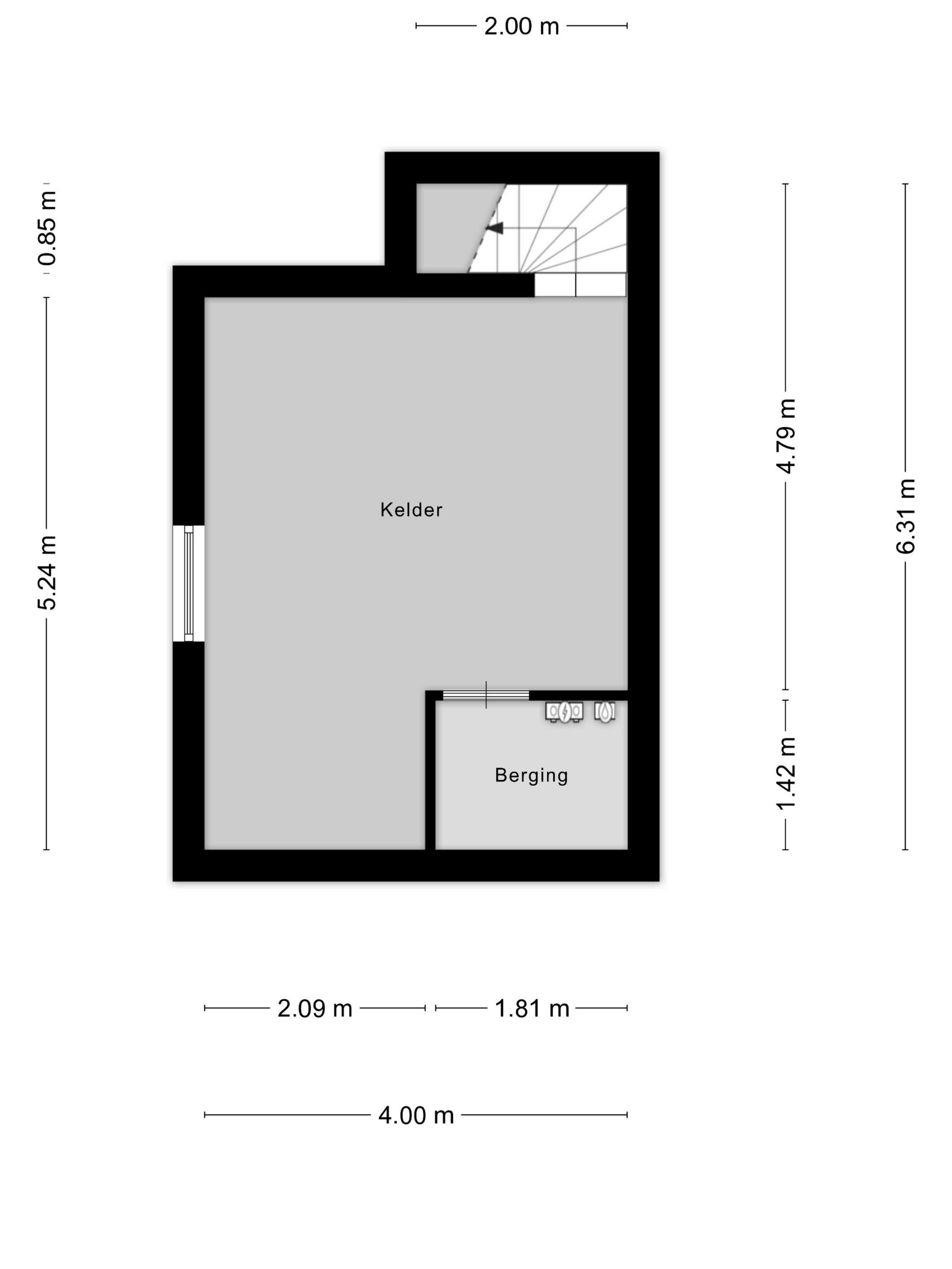
Superficies y Volumen
Superficie habitable
570 m2
Otro espacio interior
32 m2
Espacio exterior adjunto al edificio
32 m2
Volumen en metros cúbicos
2231 m3
Tamaño del terreno
771 m2
Instalaciones
Mechanische ventilatie
Airconditioning
Dakraam
Zonnepanelen
Natuurlijke ventilatie
In centrum
In woonwijk
Baerz & Co Property Brochure

Folleto

Vídeos

Helmig Makelaardij en Taxatieburo o.z. B.V.

Dorpsstraat 107
4661 HN Halsteren

info@helmigmakelaardij.nl
+31 164-685925

www.helmigmakelaardij.nl

Solicitud de información / Visita

Tristan Helmig profile image
Tristan Helmig
Makelaar / Taxateur

Comprar una propiedad de lujo en Lepelstraat

Lepelstraat seduce a quienes valoran discreción, paz y tradición, respaldados por servicios expertos y una comunidad cohesionada. Este pueblo atrae a compradores globales que buscan viviendas exclusivas y un estilo de vida holandés refinado.