Villa d'Arte werkt intensief samen met Baerz & Co Luxury Homes International, het trefpunt waar exclusieve huizen en veeleisende kopers samenkomen. Hieronder vindt u een geselecteerd aanbod van de meest exclusieve huizen op alle hot-spots in 20 landen rond de Middellandse zee, de Alpen, Mexico en Dubai.

'S-GRAVENHAGE
1e Sweelinckstraat 6 - 2517 GC
Nederland

Sjoerd Bouma profile image
Sjoerd Bouma
Real estate agent
€1.535.000 k.k.
Woonoppervlakte
289m2
Perceeloppervlakte
219m2
Slaapkamers
7

Omschrijving

Prachtig gelegen in een van de mooiste straten van het charmante Duinoord: goed onderhouden, karakteristiek drielaags herenhuis (ca. 289 m2), met zonnige beschutte achtertuin, originele details en achterom!

De woning heeft vrij zicht aan de voorzijde, en naast comfort ook originele details zoals hoge plafonds met ornamenten, suite separatie met schuifdeuren, paneeldeuren en marmeren schouwen.
Het Centrum, het strand, de winkels aan de Reinkenstraat en de Frederik Hendriklaan zijn op enkele fietsminuten afstand, waardoor je optimaal kunt genieten van het stadsleven én de rust van deze charmante buurt.
Het huis ligt nabij uitvalswegen, en tram- en bushalte zijn om de hoek.

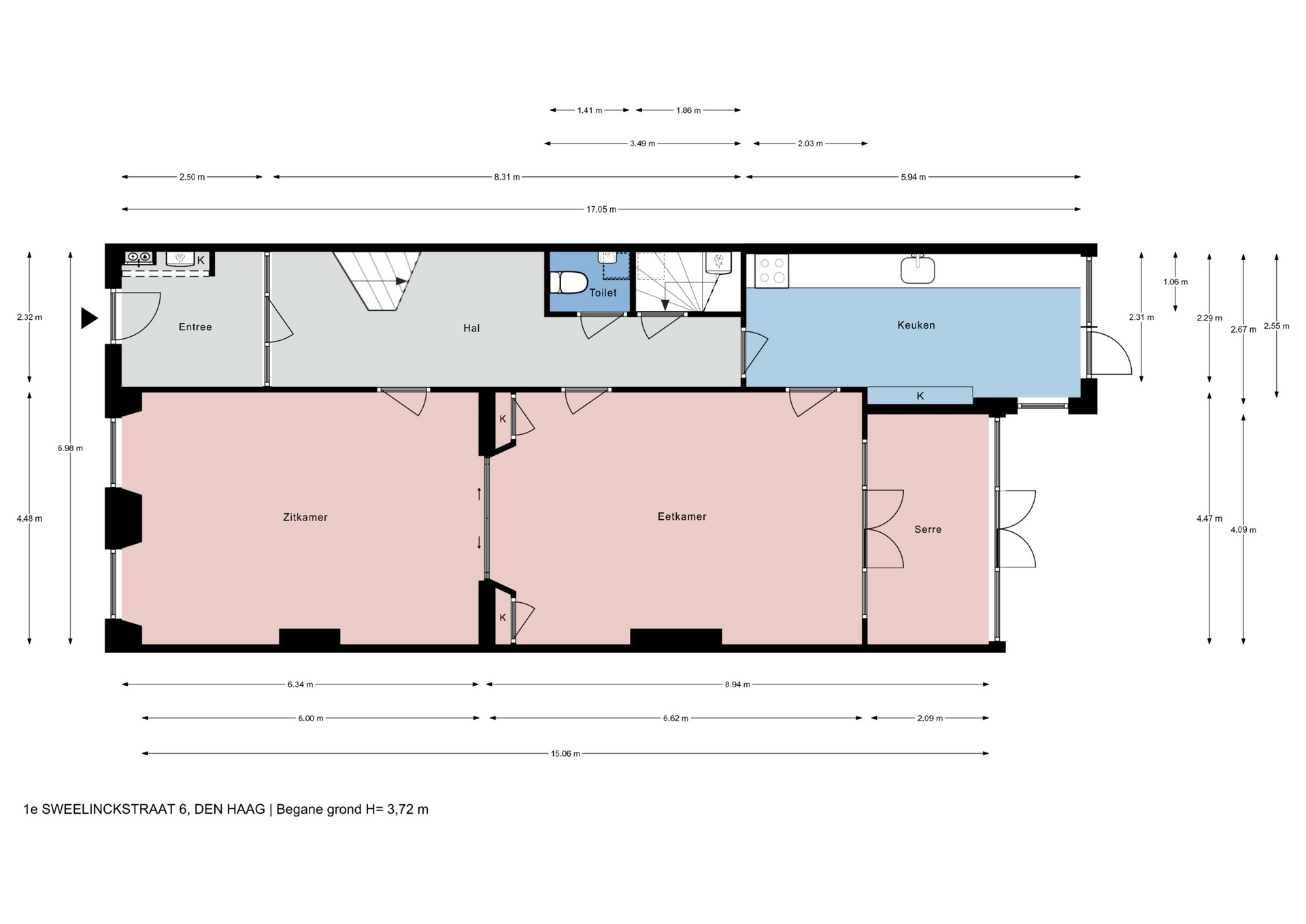
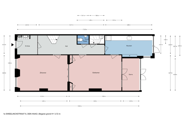
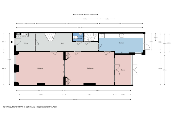
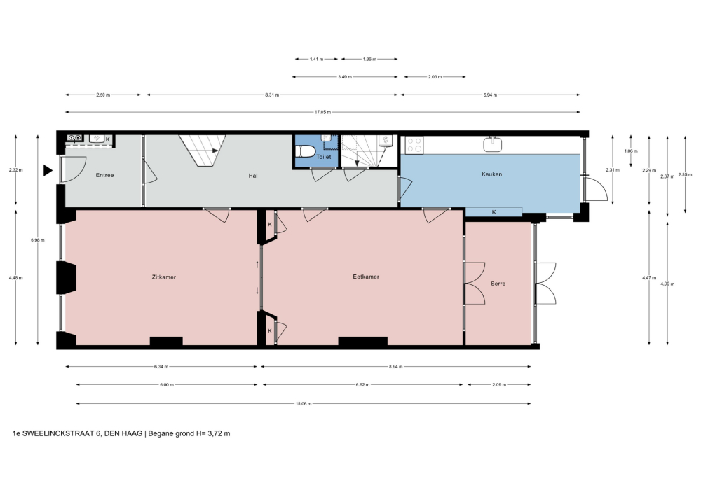
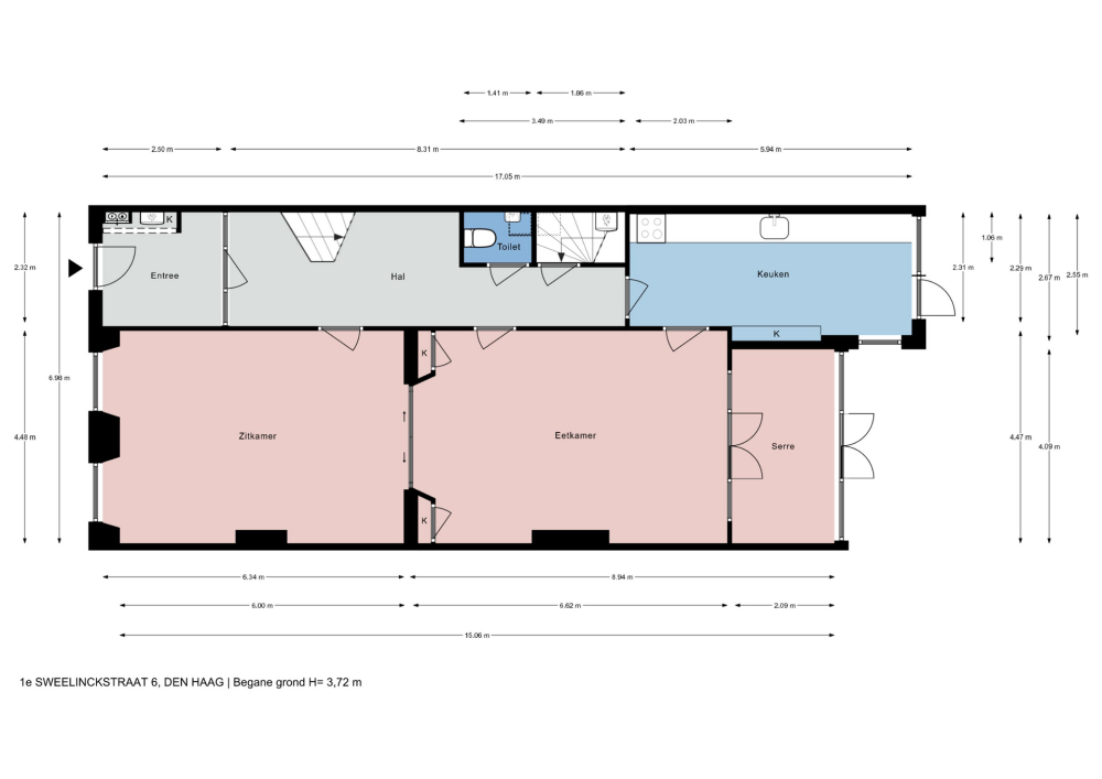
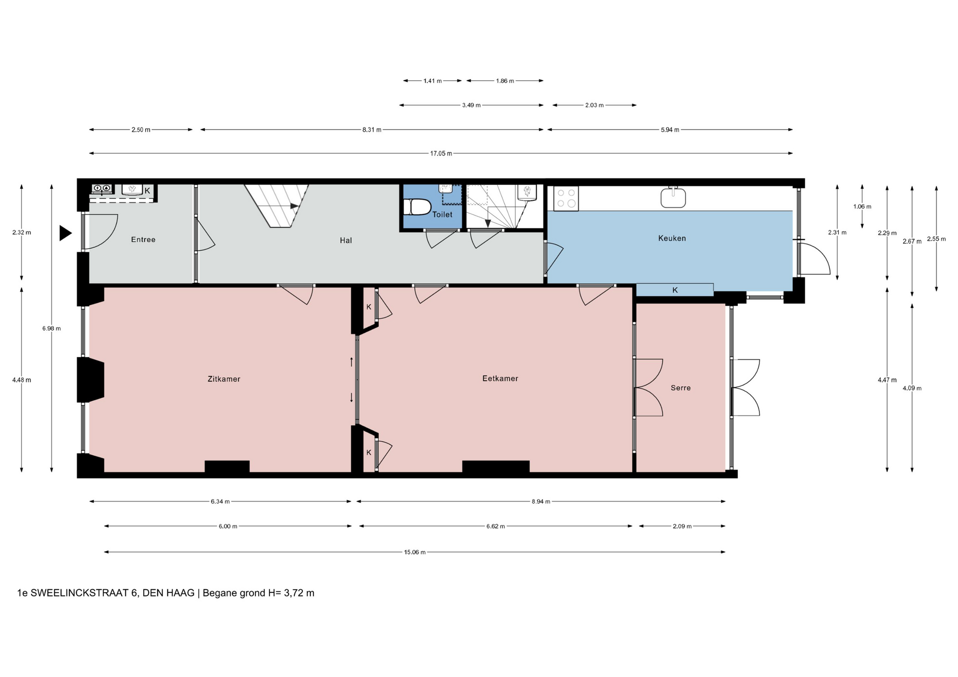
Begane grond (woonoppervlakte ca. 111 m2, plafondhoogte ca. 3,72 meter)
Indeling: entree, ruime hal met marmeren vloeren, tochtseparatie, brede gang met marmeren vloerdelen, fraai trappenhuis met spijltjes, open ruimte onder de trap, moderne wc met fonteintje. Royale brede kamers met marmeren schouwen (met in de voorkamer een houthaard), hoge geornamenteerde plafonds, suite separatie met schuifdeuren en vaste kasten en fraaie parketvloeren. De achterkamer heeft dubbele deuren naar de serrekamer en is eveneens in verbinding met de royale moderne keuken voorzien van (inbouw)apparatuur aan de ene zijde en een prachtige originele ingebouwde servieskast aan de andere zijde. Zowel de keuken als de serrekamer bieden toegang tot de ruime zonnige achtertuin met diverse schuurtjes en een achteringang (afsluitbare toegangsdeur aan de straat). Onder de keuken ligt een praktische kelderruimte van ca. 14 m2 en 1,81m hoog.

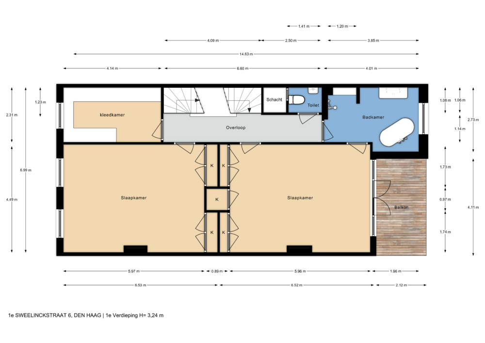
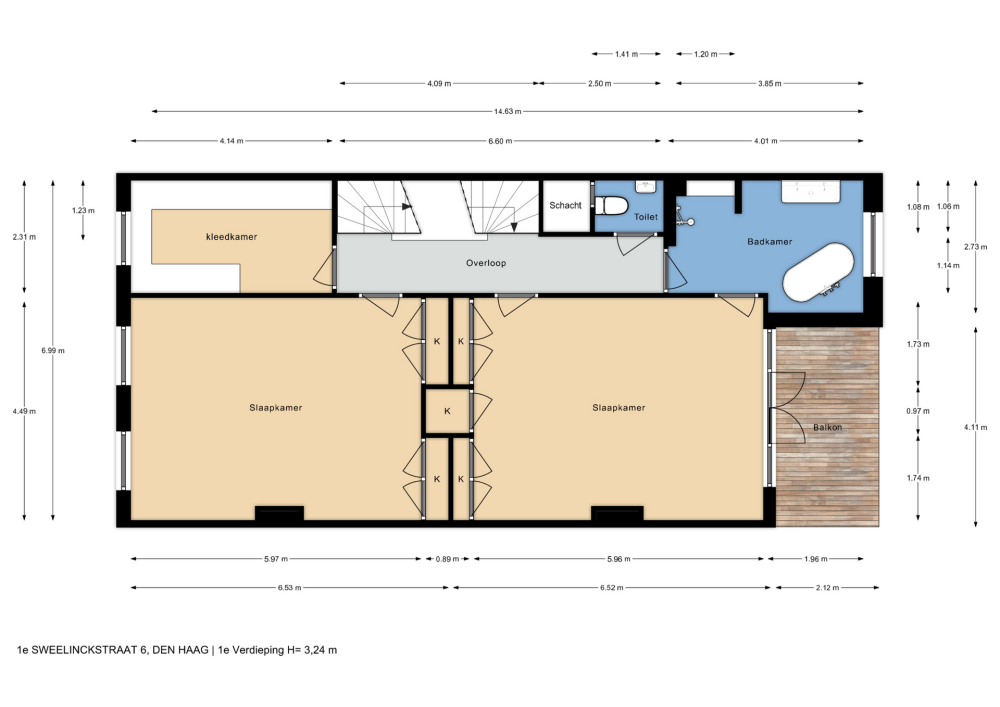
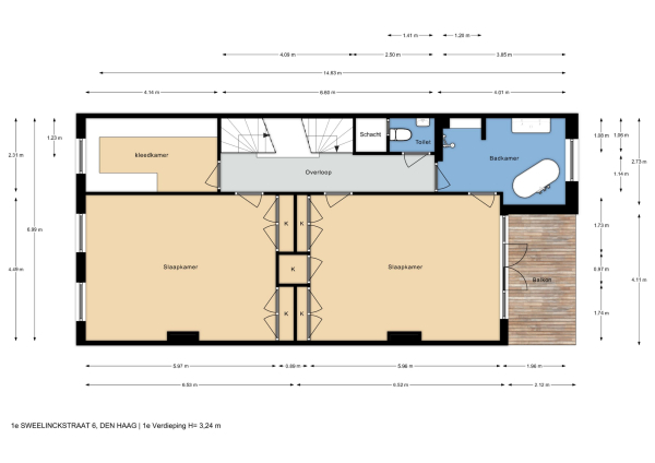
1e verdieping (woonoppervlakte ca. 90 m2, plafondhoogte ca. 3,24 meter)
De fraaie trap leidt naar de overloop met moderne wc met fonteintje, de voorkamer biedt vrij zicht en heeft een fraaie parketvloer, hoog plafond met lijstwerk, marmeren schouw en ingebouwde kasten. De voorzijkamer is thans in gebruik als inloopgarderobekamer maar kan ook als studeerkamer of extra slaapkamer fungeren. De achterkamer heeft eveneens ingebouwde kasten, een fraai plafond en marmeren schouw en biedt enerzijds toegang tot het ruime achterbalkon en anderzijds toegang tot de moderne badkamer met design ligbad, dito wastafels met ombouw en inloopdouche. De badkamer is voorzien van elektrische vloerverwarming en is ook vanaf de overloop bereikbaar.

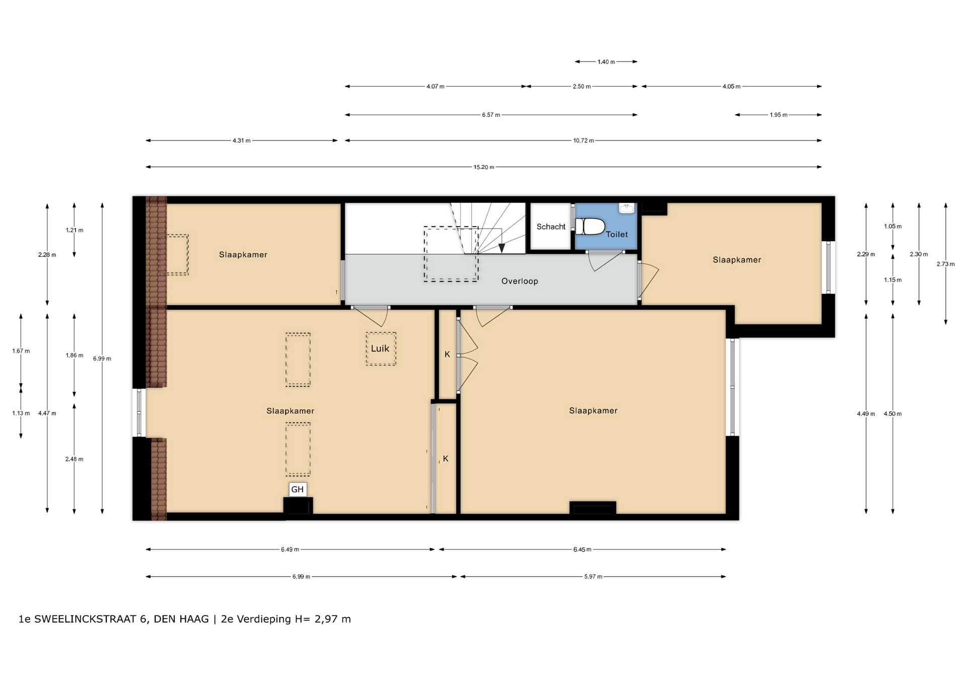
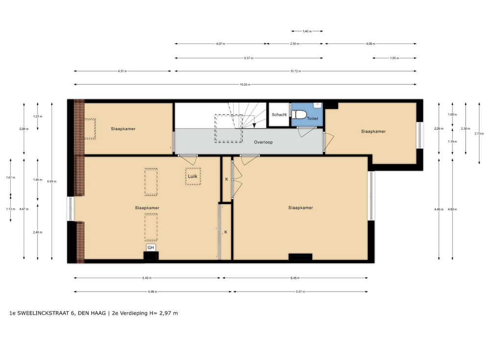
2e verdieping (woonoppervlakte ca. 88 m2, plafondhoogte 2,97 meter)
Zeer lichte overloop door het grote dakraam, wc met fonteintje, ruime voorkamer met dakkapel en inbouwkasten, hoog plafond met extra daglicht toetreding, voorzijkamer is in gebruik als laundry, ruime slaapkamer achter met ingebouwde kasten, achter zijkamer. De gehele verdieping heeft fraaie houten vloerdelen en de laundry ruimte (of achter zijkamer) biedt voldoende mogelijkheden om een extra douche en wastafel aan te brengen, zie artist impression (voor ca. €16.000 - €18.000; offerte is beschikbaar). De achterkamers bieden gedeeltelijk vrij zicht en kijken ook uit op het fraaie gebouw van het Haganum.

Nadere gegevens:
- Eigen grond, perceel 219m2 met achteringang (afsluitbare toegangsdeur aan de straat)
- Bouwjaar 1892
- Woonoppervlak ca. 289m2 verdeeld over drie woonlagen
- Dubbele beglazing door vrijwel gehele pand, vloer en (deels)dakisolatie
- Zonnepanelen, 9 stuk
- Energielabel C
- Kelder stahoogte (ca. 1,81 meter)
- Fraaie originele details door het gehele huis
- Bouwkundige keuring en quickscan asbest rapporten beschikbaar
- Ouderdom en milieu clausule worden opgenomen
- Oplevering in overleg

Kenmerken

Zonnepanelen
Overdracht
Vraagprijs
€ 1.535.000 k.k.
Status
beschikbaar
Aanvaarding
in overleg
Bouw
Soort woonhuis
Herenhuis
Soort bouw
tussenwoning
Bouwjaar
1892
Energieklasse
C
Slaapkamers
7
Badkamers
1
Oppervlakten en inhoud
Woonoppervlakte
289 m2
Overige inpandige ruimte
14 m2
Gebouwgebonden buitenruimte
9 m2
Externe bergruimte
7 m2
Inhoud
1280 m3
Perceeloppervlakte
219 m2
faciliteiten
Zonnepanelen
In centrum
In woonwijk
Vrij uitzicht
Baerz & Co Property Brochure

Brochure

Video’s

Beeuwkes Makelaardij

Van Alkemadelaan 338
2597 AS Den Haag

info@beeuwkes.nl
+31 703143000

www.beeuwkes.nl

Informatie / bezichtigingsaanvraag

Sjoerd Bouma profile image
Sjoerd Bouma
Real estate agent