Villa d'Arte werkt intensief samen met Baerz & Co Luxury Homes International, het trefpunt waar exclusieve huizen en veeleisende kopers samenkomen. Hieronder vindt u een geselecteerd aanbod van de meest exclusieve huizen op alle hot-spots in 20 landen rond de Middellandse zee, de Alpen, Mexico en Dubai.

'S-HERTOGENBOSCH
Kamperfoeliestraat 23 - 5213 HP
Nederland

€1.950.000 k.k.
Woonoppervlakte
320m2
Perceeloppervlakte
1336m2
Slaapkamers
8

Omschrijving

Vrijstaande villa in het Hinthamerpark.

Deze woning is gebouwd in de architectuur van “De Bossche School”. Door deze architectuur, maar ook door de omvang van het pand en het perceel, laat het zich niet vergelijken met andere woningen in de wijk. De architectuur garandeert de bewoner ruimtes met de juiste verhoudingen en mooie doorkijken. Er is een voorhuis en een achterhuis welke verbonden zijn door een hal en trappenhuis. Niet alleen het aantal slaapkamer, maar ook de grote leefruimtes, zorgen ervoor dat je hier als gezin heel royaal en comfortabel leeft. De grote tuin rondom doet dit ook. Er zijn diverse terrassen, een speelveld met volwassen bomen en een bloementuin aan het atelier. Dít is het huis waarvan de buurt zich afvroeg wanneer het te koop zou komen. Nu is dus uw kans.

Download de brochure hier op Funda of vraag een bezichtiging aan. We zijn u graag van dienst.

Kenmerken

Overdracht
Vraagprijs
€ 1.950.000 k.k.
Status
beschikbaar
Aanvaarding
in overleg
Bouw
Soort woonhuis
Villa
Soort bouw
vrijstaande woning
Bouwjaar
1955
Soort dak
dwarskap
Slaapkamers
8
Badkamers
2
Oppervlakten en inhoud
Woonoppervlakte
320 m2
Overige inpandige ruimte
18 m2
Externe bergruimte
39 m2
Inhoud
1253 m3
Perceeloppervlakte
1336 m2
faciliteiten
Mechanische ventilatie
Natuurlijke ventilatie
Aan rustige weg
In woonwijk
Vrij uitzicht
Baerz & Co Property Brochure

Brochure

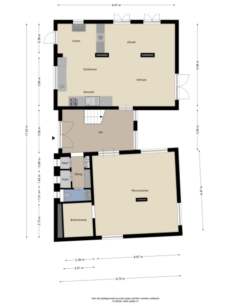
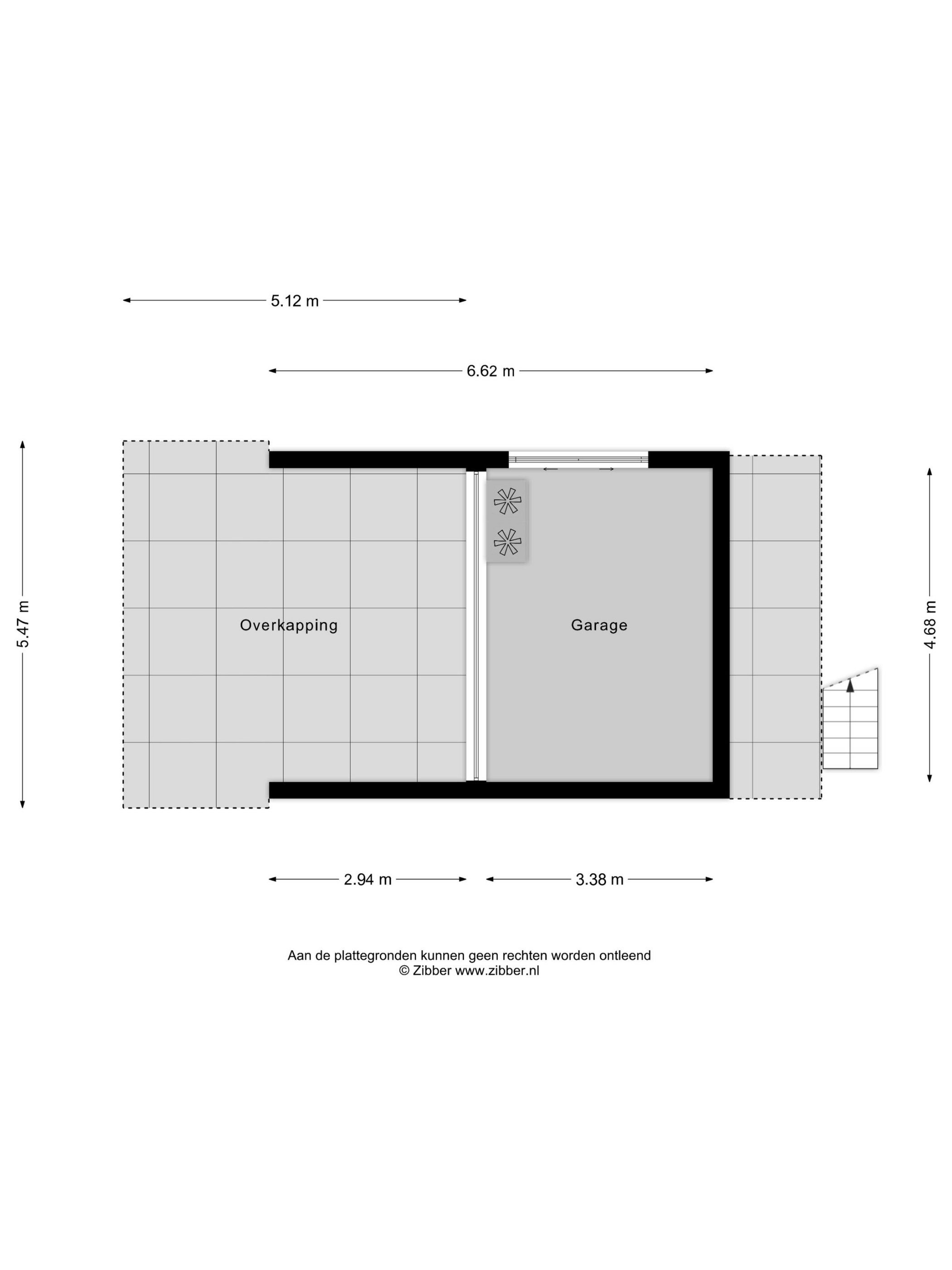
Plattegronden

De Huyzerij Makelaardij

Kruisstraat 2
5211 DV 's-Hertogenbosch

info@dehuyzerij.nl
+31 736122225

www.dehuyzerij.nl

Informatie / bezichtigingsaanvraag

Eric Tiebosch profile image
Eric Tiebosch
Owner / Real Estate Agent