Villa d'Arte werkt intensief samen met Baerz & Co Luxury Homes International, het trefpunt waar exclusieve huizen en veeleisende kopers samenkomen. Hieronder vindt u een geselecteerd aanbod van de meest exclusieve huizen op alle hot-spots in 20 landen rond de Middellandse zee, de Alpen, Mexico en Dubai.

'S-HERTOGENBOSCH
Sint Janskerkhof 19 - 5211 LA
Nederland

€825.000 k.k.
Woonoppervlakte
125m2
Perceeloppervlakte
N/A
Slaapkamers
3

Omschrijving

Wonen op een van de meest bijzondere plekken van ’s-Hertogenbosch

Aan het idyllische Sint Janskerkhof, pal naast de Sint-Janskathedraal, ligt deze ruime en karaktervolle bovenwoning van ca. 125 m² met dakterras. Een unieke combinatie van rust, historie en stadsleven, midden in de binnenstad maar toch verrassend stil.

Monumentale bomen, kinderkopjes in de straat en vrijwel alleen bestemmingsverkeer zorgen voor een serene sfeer, terwijl de Parade, de Markt, het centrum en het Bossche Broek allemaal op loopafstand liggen.

Indeling
Begane grond
Eigen entree met exclusieve hal, voorzien van fraaie Winckelmans-tegels en ruimte voor garderobe én fiets.

Woonvloer
De woonkamer ligt op de hoek en heeft daardoor een mooi uitzicht op de Sint-Jan én het pleintje ernaast. De semi-open keuken is verbonden zonder dat je het gevoel hebt in de kamer te staan koken. Daarnaast bevindt zich op deze verdieping, naast het dakterras, ook een extra kamer, ideaal als werk- of logeerkamer.

Tweede verdieping
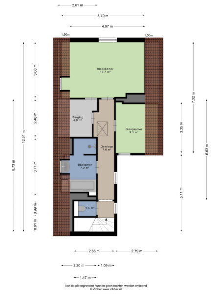
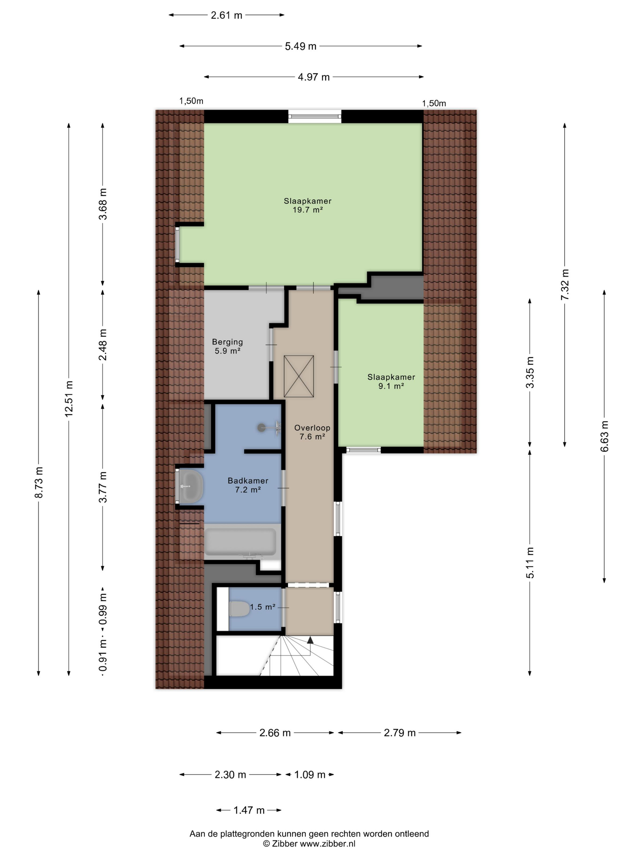
Twee slaapkamers, waarvan aan de hoofdslaapkamer een inloopkast ligt. De badkamer is in 2011 vernieuwd en voorzien van een ligbad, royale inloopdouche en wastafel – uiteraard met uitzicht op de Sint-Jan.
Ook het tweede toilet is hier apart van de badkamer.

Parkeren is mogelijk met vergunning of op een steenworp afstand in de parkeergarage Sint-Jan.

Een woning als deze komt zelden beschikbaar: royaal, sfeervol en gelegen op een heel bijzonder plekje.

Kenmerken

Overdracht
Vraagprijs
€ 825.000 k.k.
Status
beschikbaar
Aanvaarding
in overleg
Bouw
Soort woonhuis
Bovenwoning
Soort bouw
appartement
Bouwjaar
1957
Energieklasse
C
Soort dak
dwarskap
Slaapkamers
3
Badkamers
1
Oppervlakten en inhoud
Woonoppervlakte
125 m2
Overige inpandige ruimte
2 m2
Gebouwgebonden buitenruimte
7 m2
Inhoud
419 m3
faciliteiten
Dakraam
Aan rustige weg
In centrum
Vrij uitzicht
Beschutte ligging
Baerz & Co Property Brochure

Brochure

Plattegronden

De Huyzerij Makelaardij

Kruisstraat 2
5211 DV 's-Hertogenbosch

info@dehuyzerij.nl
+31 736122225

www.dehuyzerij.nl

Informatie / bezichtigingsaanvraag

Belinda van Os profile image
Belinda van Os
Real Estate Agent