Villa d'Arte werkt intensief samen met Baerz & Co Luxury Homes International, het trefpunt waar exclusieve huizen en veeleisende kopers samenkomen. Hieronder vindt u een geselecteerd aanbod van de meest exclusieve huizen op alle hot-spots in 20 landen rond de Middellandse zee, de Alpen, Mexico en Dubai.

AALSMEER
Legmeerdijk 342 - 1431 GC
Nederland

John Korver profile image
John Korver
Real estate agent
€1.348.000 k.k.
Woonoppervlakte
396m2
Perceeloppervlakte
1755m2
Slaapkamers
7

Omschrijving

Vrijstaand wonen met karakter, ruimte en mogelijkheden, aan de rand van Aalsmeer

Op een royaal perceel van 1.755 m², aan de rand van de bebouwde kom van Aalsmeer, staat deze unieke vrijstaande woning. De combinatie van charme, comfort en veelzijdigheid zorgt voor maximale privacy, een fraai aangelegde tuin en een groene, inspirerende omgeving.

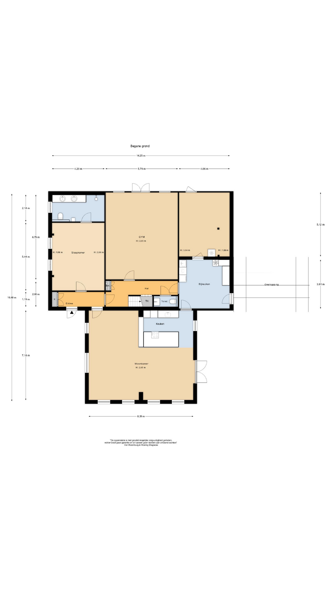
De begane grond is recent gemoderniseerd: de badkamer werd vernieuwd in 2024 en de keuken in 2025. De ruime woonkamer met grote raampartijen en openslaande deuren naar de tuin vormt het hart van de woning, terwijl de moderne keuken met kookeiland, hoogwaardige apparatuur en bar zone naadloos aansluit. Verder is er een slaapkamer met badkamer en suite, een multifunctionele ruimte met voorbereidingen voor een extra slaapkamer of badkamer, en een bijkeuken met toegang tot de veranda en een extra berging.

Op de eerste verdieping bevinden zich vier kamers en een separate toiletruimte, met de mogelijkheid een tweede badkamer te realiseren. Via een vlizotrap is de ruime bergzolder bereikbaar.

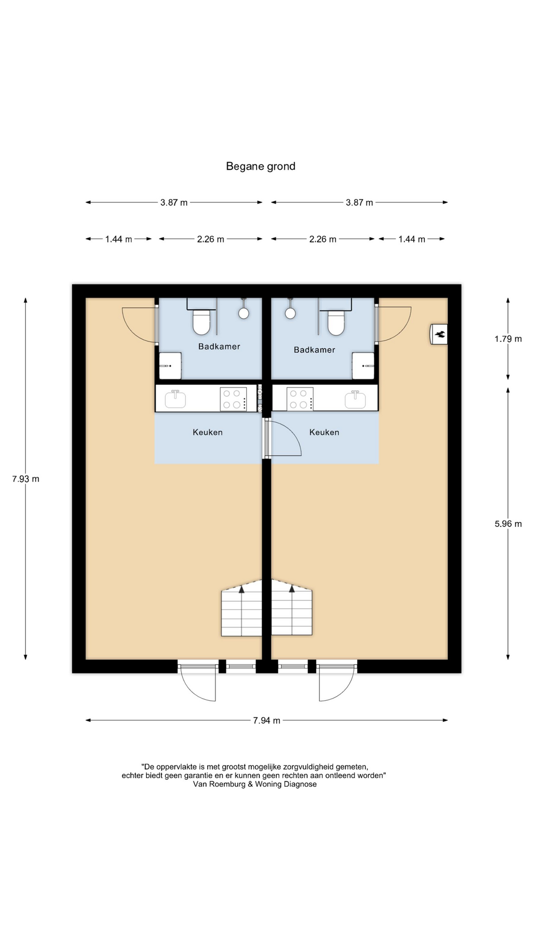
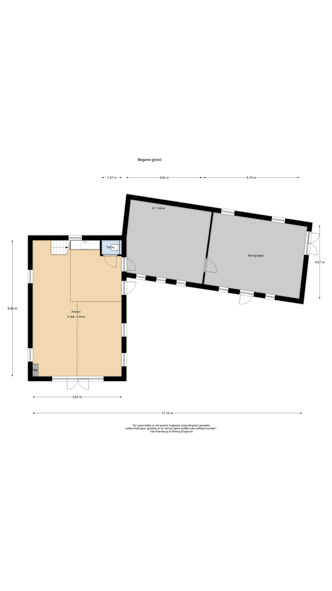
De voormalige hooischuur herbergt twee zelfstandige gastenverblijven, elk met eigen entree, woonkamer, keuken, badkamer en slaapverdieping, die via een binnendeur gekoppeld kunnen worden maar ook volledig zelfstandig functioneren. Verder is er een vrijstaand atelier met aangebouwde werkplaats, volledig verwarmd, met keukenblok, toilet en entresol, ideaal voor creatief werk, ambacht, opslag of eventueel extra woonruimte.

Het erf wordt ontsloten via een elektrisch toegangshek en biedt parkeergelegenheid voor meerdere auto’s. Voorzieningen zoals 16 zonnepanelen, sfeervolle gevelverlichting, een veranda met jacuzzi en een monumentale kastanjeboom maken het geheel compleet.

De locatie biedt een perfecte balans tussen rust en bereikbaarheid, met directe toegang tot de N201, A4 en A9. Schiphol is in 10 minuten bereikbaar, en steden als Amsterdam, Haarlem en Utrecht liggen eveneens binnen handbereik. Met een woonoppervlakte van 259 m², twee gastenverblijven van elk 82 m² en een atelier van 55 m² plus 51 m² werkruimte biedt deze woning een unieke combinatie van vrijstaand wonen, multifunctionele bijgebouwen en een groene, privéomgeving.

DE PLUSPUNTEN OP EEN RIJ
+ Vrijstaand wonen op een royaal perceel van 1.755 m², aan de rand van Aalsmeer
+ Volledig gemoderniseerde begane grond met luxe badkamer (2024) en moderne keuken (2025)
+ Woonoppervlakte van maar liefst 259 m² in de woning
+ Slaapkamer en luxe badkamer en suite op de begane grond
+ Vier (slaap-)kamers op de verdieping met mogelijkheid tot extra badkamer
+ Eerste verdieping volledig geïsoleerd en voorzien van nieuwe kozijnen.
+ Ruime multifunctionele kamer op de begane grond met voorbereidingen voor extra badkamer/slaapkamer
+ Tuin rondom met royaal terras, veel privacy en een sfeervolle veranda met elektra en verlichting
+ Parkeergelegenheid op eigen terrein voor meerdere auto’s
+ Elektrisch toegangshek voor optimale privacy en veiligheid
+ Twee zelfstandige woonunits in de voormalige hooischuur (totaal 82 m²)
+ Vrijstaand atelier met entresol, keukenblok, toiletruimte en veel daglicht (55 m²)
+ Werkplaats/opslag van 51 m², ideaal voor ondernemers, hobbyisten of opslag
+ 16 zonnepanelen op het dak, energiezuinig en toekomstgericht
+ Energielabel B
+ Gelegen aan de rand van Aalsmeer, met snelle verbinding naar N201, A4, A9 en Schiphol
+ Binnen 10 minuten op Schiphol, en dichtbij Amsterdam, Haarlem en Utrecht

Of je nu op zoek bent naar een fijne gezinswoning met veel buitenruimte, een woon-werkcombinatie of mantelzorgoplossing, deze plek biedt het allemaal.
Een zeldzaam compleet en uniek geheel op een toplocatie in de Randstad. Hier woon je écht buiten, zonder concessies te doen aan bereikbaarheid of comfort!

=================================================================

ENGLISH TRANSLATION

Detached Living with Character, Space and Endless Possibilities, on the Edge of Aalsmeer

Set on a generous plot of 1,755 m² on the edge of the built-up area of Aalsmeer, this unique detached property offers an exceptional combination of charm, comfort and versatility. The result is maximum privacy, a beautifully landscaped garden and a green, inspiring living environment.

The ground floor has been recently modernised, with the bathroom renewed in 2024 and the kitchen updated in 2025. The spacious living room, featuring large windows and French doors opening onto the garden, forms the heart of the home. The modern kitchen with cooking island, high-quality appliances and bar area connects seamlessly to the living space. In addition, there is a bedroom with en-suite bathroom, a multifunctional room prepared for an additional bedroom or bathroom, and a utility room with access to the veranda and an additional storage area.

The first floor comprises four rooms and a separate toilet, with the option to create a second bathroom. A pull-down ladder provides access to the spacious attic storage.

The former hay barn accommodates two independent guest residences, each with its own entrance, living room, kitchen, bathroom and sleeping loft. These units can be connected via an internal door but also function completely independently. In addition, there is a detached, fully heated studio with adjoining workshop, featuring a kitchenette, toilet and mezzanine — ideal for creative work, craftsmanship, storage or potential additional living space.

The property is accessed through an electrically operated entrance gate and offers ample on-site parking for multiple vehicles. Features such as 16 solar panels, atmospheric exterior lighting, a veranda with jacuzzi and a monumental chestnut tree complete the picture.

The location offers the perfect balance between tranquillity and accessibility, with direct connections to the N201, A4 and A9. Schiphol Airport can be reached within 10 minutes, while cities such as Amsterdam, Haarlem and Utrecht are also within easy reach. With a living area of 259 m² in the main residence, two guest accommodations of 82 m² each, and a studio of 55 m² plus 51 m² of workshop space, this property offers a rare combination of detached living, multifunctional outbuildings and a green, private setting.

Key Features

+ Detached living on a generous 1,755 m² plot on the edge of Aalsmeer
+ Fully modernised ground floor with luxury bathroom (2024) and modern kitchen (2025)
+ Main residence with an impressive living area of 259 m²
+ Ground-floor bedroom with luxury en-suite bathroom
+ Four (bed)rooms on the first floor with potential for an additional bathroom
+ First floor fully insulated and fitted with new window frames
+ Spacious multifunctional room on the ground floor, prepared for an extra bathroom or bedroom
+ Surrounding garden with generous terrace, excellent privacy and an attractive veranda with electricity and lighting
+ On-site parking for multiple vehicles
+ Electrically operated entrance gate for optimal privacy and security
+ Two independent residential units in the former hay barn (total of 82 m²)
+ Detached studio with mezzanine, kitchenette, toilet facilities and abundant natural light (55 m²)
+ Workshop/storage space of 51 m², ideal for entrepreneurs, hobbyists or storage
+ 16 solar panels, energy-efficient and future-proof
+ Energy label B
+ Located on the edge of Aalsmeer with fast access to the N201, A4, A9 and Schiphol
+ Schiphol Airport within 10 minutes; close to Amsterdam, Haarlem and Utrecht

Whether you are looking for a comfortable family home with ample outdoor space, a live-work combination or a multi-generational living solution, this exceptional property offers it all.
A rare and remarkably complete residence in a prime Randstad location — truly countryside living without compromising on accessibility or comfort.

Kenmerken

Zonnepanelen
Air conditioning
Overdracht
Vraagprijs
€ 1.348.000 k.k.
Status
beschikbaar
Aanvaarding
in overleg
Bouw
Soort woonhuis
Landhuis
Soort bouw
vrijstaande woning
Bouwjaar
1928
Energieklasse
B
Soort dak
zadeldak
Slaapkamers
7
Badkamers
3
Oppervlakten en inhoud
Woonoppervlakte
396 m2
Overige inpandige ruimte
0 m2
Externe bergruimte
51 m2
Inhoud
1409 m3
Perceeloppervlakte
1755 m2
faciliteiten
Mechanische ventilatie
Tv kabel
Airconditioning
Dakraam
Zonnepanelen
Beschutte ligging
Baerz & Co Property Brochure

Brochure

Video’s

Plattegronden

Korver makelaars

Stationsweg 12
3641RG Mijdrecht

welkom@korvermakelaars.nl
+31 297 25 04 21

www.korvermakelaars.nl

Informatie / bezichtigingsaanvraag

John Korver profile image
John Korver
Real estate agent

Een luxe woning kopen in Aalsmeer

Aalsmeer combineert een hechte gemeenschap, leven aan het water en elegant vastgoed in een discrete omgeving. De uitstekende verbindingen, verfijnde voorzieningen en aandacht voor service spreken een internationaal en veeleisend publiek aan.