Villa d'Arte werkt intensief samen met Baerz & Co Luxury Homes International, het trefpunt waar exclusieve huizen en veeleisende kopers samenkomen. Hieronder vindt u een geselecteerd aanbod van de meest exclusieve huizen op alle hot-spots in 20 landen rond de Middellandse zee, de Alpen, Mexico en Dubai.

AMSTELVEEN
Olympiadelaan 16 - 1183 WN
Nederland

Sander Bovenkerk profile image
Sander Bovenkerk
Real estate agent
€3.000.000 k.k.
Woonoppervlakte
643m2
Perceeloppervlakte
1069m2
Slaapkamers
4

Omschrijving

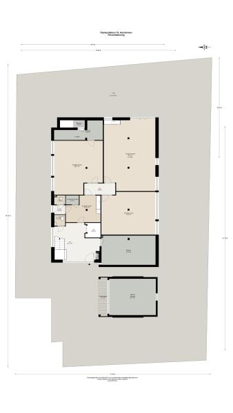
Olympiadelaan 16, 1183 WN Amstelveen

Aan een van de mooiste groene randen van Amstelveen, direct grenzend aan de uitgestrekte Middelpolder, staat deze ruime vrijstaande villa van ca. 643 m² woonoppervlakte.

Met een royale tuin van ca. 707 m², meerdere terrassen én weids uitzicht over het natuurgebied is dit een droomhuis voor de echte levensgenieter. De villa beschikt over parkeergelegenheid op eigen terrein en een vrijstaande garage voor twee auto’s. Dankzij de vele verblijfsruimtes en de bijzondere maatvoering leent het huis zich bovendien uitstekend voor de combinatie van wonen en werken, zonder concessies te doen aan privacy of wooncomfort.

Een uniek object op een uitzonderlijke locatie, waar rust, ruimte en natuur samenkomen op slechts enkele minuten van Amsterdam.

Indeling

Begane grond
Via de entree aan de voor- of zijkant bereikt u een royale ontvangsthal met garderobe en toegang tot alle ruimtes op deze verdieping. Dankzij de aanwezigheid van een lift is de woning uitstekend toegankelijk voor mindervaliden en ideaal voor levensloopbestendig wonen.

De begane grond omvat drie ruime verblijfsruimtes, ieder met grote raampartijen en een directe blik op de fraai aangelegde tuin rondom de woning. De kamers zijn volledig naar eigen inzicht te gebruiken, bijvoorbeeld als leefruimte, speelkamer, atelier, lounge of slaapvertrek. Centraal op deze verdieping bevindt zich een ruime pantry met aansluitingen die de mogelijkheid bieden om een volwaardige keuken te realiseren, passend bij iedere woonwens.

Daarnaast beschikt de begane grond over twee royale bergingen en twee separate toiletruimtes, beide voorzien van fontein.

Eerste verdieping
De eerste verdieping wordt ontsloten via een brede overloop en biedt drie royale verblijfsruimtes. Aan de tuinzijde bevindt zich een bijzonder grote kamer die momenteel in gebruik is als woonkamer, met aansluitend een lichte keukenruimte. Vanuit deze leefverdieping stapt u zo het ruime balkon op, dat ook vanaf de tuin bereikbaar is. Vanaf hier is het uitzicht over de Middelpolder werkelijk indrukwekkend.

Verder bevindt zich op deze verdieping een ruime slaapkamer met een en-suite badkamer, voorzien van ligbad, douche, toilet en dubbele wastafel. Daarnaast zijn er twee separate toiletruimtes en een handige berging aanwezig.

Tweede verdieping
De tweede verdieping biedt maar liefst vier grote kamers, flexibel te benutten als slaapkamers, werkruimtes, hobbykamers of gastenverblijven. Drie van deze kamers beschikken over een eigen en-suite badkamer, wat zorgt voor optimale privacy en comfort op deze woonlaag.

Daarnaast is er een afzonderlijke wasruimte met aansluitingen voor wasmachine en droger, twee separate toiletruimtes en twee balkons met uitzicht op de groene omgeving.

Buitenruimte
De villa beschikt over diverse terrassen op meerdere niveaus, waaronder twee uitzonderlijk ruime dakterrassen met vrij uitzicht over de Middelpolder. De tuin rondom de woning is volgroeid, zorgvuldig aangelegd en biedt optimale privacy door de unieke ligging aan de rand van het open landschap. Tot slot beschikt de woning over een vrije garage met ruimte voor twee auto's.

Locatie en bereikbaarheid
Olympiadelaan 16 ligt in een rustige, autoluwe straat in de groene en geliefde wijk, Kostverloren, op een steenworp afstand van het bijzondere natuurgebied Middelpolder. Dit uitgestrekte landschap loopt helemaal door tot aan de Amstel en verder richting Ouderkerk; een idyllische omgeving waar u kunt wandelen, hardlopen, fietsen of simpelweg genieten van het open, bijna landelijk aandoende uitzicht. Het is een plek waar natuur en stad elkaar op een zeldzaam harmonieuze manier ontmoeten.

De woning ligt bovendien centraal ten opzichte van alle dagelijkse voorzieningen. Voor boodschappen en speciaalzaken bevinden het Kostverlorenhof en het Bankrashof zich op loopafstand. Het luxe winkelcentrum Stadshart Amstelveen bereikt u binnen enkele minuten per fiets, terwijl het Gelderlandplein in Amsterdam-Zuid slechts tien minuten fietsen is. Ook diverse (internationale) scholen, kinderopvang, sportfaciliteiten en recreatiemogelijkheden liggen in de directe omgeving, wat deze locatie bijzonder aantrekkelijk maakt voor gezinnen en expats.

Bereikbaarheid
De bereikbaarheid is uitstekend. Op loopafstand vindt u tramhalte lijn 25, met een directe verbinding naar Amsterdam-Zuid, Station RAI en Amsterdam Centraal. Ook meerdere buslijnen richting Amsterdam, Schiphol, Uithoorn en Amstelveen bevinden zich nabij. Met de auto bereikt u binnen enkele minuten de uitvalswegen A10-Zuid, A9, A4 en A2. Hierdoor zijn Amsterdam, Schiphol, Den Haag, Utrecht en Haarlem snel en eenvoudig bereikbaar.

OMSCHRIJVING REGISTERGOED
1. het woonhuis met ondergrond en tuin, gelegen te 1183 WN Amstelveen, Olympiadelaan 16, kadastraal bekend gemeente Amstelveen, sectie I nummer 6390, groot tien are en negenenzestig centiare;
2. de onverdeelde helft van het mandelige perceel grond, gelegen te Amstelveen, Olympiadelaan, kadastraal bekend gemeente Amstelveen, sectie I nummer 6389, groot een are en zesenvijftig centiare,

Bijzonderheden
- Woonoppervlakte van ca. 643 m² (gemeten conform NEN2580 meting);
- Externe garage van ca. 33 m²;
- Omliggende tuin van ca. 707 m²;
- Bouwjaar 2001;
- 26 zonnepanelen;
- Energielabel A;
- Vrijstaande vila op eigen grond;
- Fraaie aangelegde en zonnige tuin en dakterras;
- Parkeren voor de deur, op ruime oprit of in de garage;
- Oplevering in overleg.

Deze informatie is door ons met de nodige zorgvuldigheid samengesteld. Onzerzijds wordt echter geen enkele aansprakelijkheid aanvaard voor enige onvolledigheid, onjuistheid of anderszins, dan wel de gevolgen daarvan. Alle opgegeven maten en oppervlakten zijn indicatief. Koper heeft zijn eigen onderzoek plicht naar alle zaken die voor hem of haar van belang zijn. Met betrekking tot deze woning is de makelaar adviseur van verkoper. Wij adviseren u een deskundige (NVM-)makelaar in te schakelen die u begeleidt bij het aankoopproces. Indien u specifieke wensen heeft omtrent de woning, adviseren wij u deze tijdig kenbaar te maken aan uw aankopend makelaar en hiernaar zelfstandig onderzoek te (laten) doen. Indien u geen deskundige vertegenwoordiger inschakelt, acht u zich volgens de wet deskundige genoeg om alle zaken die van belang zijn te kunnen overzien. Van toepassing zijn de NVM voorwaarden.

Kenmerken

Zonnepanelen
Alarm system
Overdracht
Vraagprijs
€ 3.000.000 k.k.
Status
beschikbaar
Aanvaarding
in overleg
Bouw
Soort woonhuis
Villa
Soort bouw
vrijstaande woning
Bouwjaar
2001
Energieklasse
A
Soort dak
plat dak
Slaapkamers
4
Badkamers
6
Oppervlakten en inhoud
Woonoppervlakte
643 m2
Overige inpandige ruimte
0 m2
Gebouwgebonden buitenruimte
103 m2
Externe bergruimte
33 m2
Inhoud
2201 m3
Perceeloppervlakte
1069 m2
faciliteiten
Mechanische ventilatie
Alarminstallatie
Lift
Schuifpui
Zonnepanelen
Natuurlijke ventilatie
Baerz & Co Property Brochure

Brochure

Video’s

Heeren Makelaars

Stadionweg 75
1077 SE Amsterdam

info@heerenmakelaars.nl
+31 204702255

www.heerenmakelaars.nl

Informatie / bezichtigingsaanvraag

Sander Bovenkerk profile image
Sander Bovenkerk
Real estate agent

Een luxe woning kopen in Amstelveen

Amstelveen biedt verfijnde woningen, een internationale ambiance en uitzonderlijke connectiviteit. De combinatie van groene omgeving, internationale voorzieningen en gemeenschapszin spreekt wereldwijd gezinnen en kopers aan die privacy én een levendige stedelijke verbinding zoeken.