Villa d'Arte werkt intensief samen met Baerz & Co Luxury Homes International, het trefpunt waar exclusieve huizen en veeleisende kopers samenkomen. Hieronder vindt u een geselecteerd aanbod van de meest exclusieve huizen op alle hot-spots in 20 landen rond de Middellandse zee, de Alpen, Mexico en Dubai.

AMSTELVEEN
Texelstraat 132 - 1181 ES
Nederland

Sander Bovenkerk profile image
Sander Bovenkerk
Real estate agent
€1.995.000 k.k.
Woonoppervlakte
226m2
Perceeloppervlakte
N/A
Slaapkamers
4

Omschrijving

Texelstraat 132, 1181 ES Amstelveen

Gelegen aan de Texelstraat 132 in Amstelveen, in het luxe complex Forest Hill Luxury Apartments, bevindt zich dit stijlvolle en royale hoekappartement van ca. 226 m² met twee zonnige terrassen van in totaal circa 31 m². De woning ligt op de tweede verdieping en combineert luxe, comfort en ruimte op een unieke locatie aan de rand van het Amsterdamse Bos en nabij het Stadshart Amstelveen. De indrukwekkende woonkamer van ca. 80 m² beschikt over een moderne Siematic-keuken. Grote schuifdeuren verbinden de leefruimte met de terrassen en zorgen voor een prachtig buiten-binnengevoel. Verder biedt het appartement vier ruime slaapkamers, twee luxe badkamers en is dankzij de hoekligging bijzonder licht. Er zijn meerdere parkeerplaatsen/boxen te koop in de ondergelegen parkeergarage. Een uitzonderlijk appartement voor wie groots en comfortabel wil wonen op een toplocatie in Amstelveen.

FOREST HILL LUXURY APARTMENTS in Amstelveen biedt een unieke kans om per direct te wonen in een volledig nieuw en hoogwaardig afgewerkt appartement. De 25 exclusieve woningen combineren luxe, comfort en elegantie met een rustige ligging nabij alle stedelijke voorzieningen. De ruime appartementen beschikken over grote raampartijen, een Siematic keuken met Siemens apparatuur en luxe sanitair. Bewoners genieten van moderne gemakken zoals een ondergrondse parkeergarage met laadpunten en een lift naar de woonverdiepingen. Geïnspireerd door de Japanse natuurtherapie Shirin Yoku, ademt het complex rust en verbinding met de natuur. Dankzij de centrale ligging tussen Stadshart Amstelveen, het Gelderlandplein en het Amsterdamse Bos ervaart u het beste van twee werelden: serene woonkwaliteit met alle stedelijke luxe binnen handbereik.

Locatie en bereikbaarheid
FOREST HILL LUXURY APARTMENTS bevindt zich in de populaire en groene wijk Randwijck in Amstelveen — een van de meest gewilde woonomgevingen in de regio. Hier woont u rustig en omringd door natuur, met alle stedelijke gemakken binnen handbereik. In de directe omgeving vindt u diverse scholen, waaronder de Amity International School en de Brede School Roelof Venema, evenals meerdere kinderdagverblijven, supermarkten en het winkelcentrum Kostverlorenhof voor de dagelijkse boodschappen.

Wie op zoek is naar wat meer luxe, heeft keuze te over: het Stadshart Amstelveen en het Gelderlandplein in Amsterdam liggen beide op slechts enkele minuten afstand. Deze winkelcentra staan bekend om hun brede aanbod aan kwaliteitswinkels, speciaalzaken, traiteurs en gezellige horeca — van de Bijenkorf tot een Starbucks en Rituals-shop. En wilt u een dagje cultuur snuiven, dan is het Cobra Museum een bezoek meer dan waard. Daarnaast ligt het uitgestrekte Amsterdamse Bos om de hoek, met talloze wandel- en fietsroutes, sportfaciliteiten, theater, festivals en sfeervolle eetgelegenheden. Voor wie wil ontspannen, biedt Spa & Wellness Zuiver aan de Bosbaan een oase van rust, terwijl u bij restaurant Loetje aan de Amstel geniet van goed eten en het uitzicht op het water.

De ligging van de woning is bijzonder centraal en uitstekend bereikbaar. Met de auto bent u binnen enkele minuten op de A9, A10 en A2 richting Amsterdam, Schiphol of de rest van de Randstad. Ook met het openbaar vervoer is de bereikbaarheid optimaal: bus- en tramlijnen richting Amsterdam-Zuid, de Zuidas en Amstelveen Stadshart stoppen in de directe nabijheid. Fietsers bereiken binnen korte tijd zowel de Zuidas als het centrum van Amstelveen, waardoor woon-werkverkeer snel en efficiënt verloopt. En na een drukke dag is het heerlijk thuiskomen in deze rustige, groene omgeving waar stadse voorzieningen en natuur moeiteloos samenkomen.

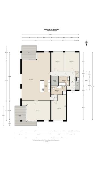
Indeling

U bereikt het appartement comfortabel met de lift, waarna u via de nette centrale hal binnenkomt in deze prachtig afgewerkte woning. De entree leidt naar een brede gang die uitkomt bij dubbele deuren naar de royale woonkamer, waar direct het gevoel van licht, ruimte en verfijning overheerst. De open keuken met royaal kookeiland vormt het kloppend hart van het appartement en is uitgevoerd met maatwerk houten kasten, een natuurstenen werkblad en hoogwaardige inbouwapparatuur met geïntegreerde afzuiging. Dankzij het stijlvolle bargedeelte is dit een heerlijke plek om samen te koken, te borrelen en te genieten van het huiselijke comfort.

Via grote schuifdeuren stapt u zo het zonnige hoekterras op, waar u aan twee zijden uitzicht heeft en volop profiteert van de zon. Het appartement beschikt over vier ruime slaapkamers, waaronder een comfortabele master bedroom met toegang tot een tweede terras. De twee luxe badkamers zijn voorzien van een inloopdouche, modern wastafelmeubel, toilet en één met ligbad. Een praktische inpandige berging/wasruimte maakt het geheel compleet. Dankzij de hoekligging geniet de woning van een uitzonderlijke lichtinval en een serene, ruimtelijke sfeer.

Tot slot heeft u de mogelijkheid om in de onderbouw een (of meerdere) parkeerplaats(en) te kopen:
- Vraagprijs parkeerplaats: € 62.500,- k.k. per pp
- Vraagprijs parkeerplaats box: € 82.500,- k.k. per pp

Bijzonderheden:
- Appartementsrecht 226 m² (NEN-2580 rapport aanwezig)
- Vier slaapkamers
- Royale living van ca.80m²
- Twee inpandige bergingen
- Twee riante terrassen
- Vlakbij het Amsterdamse Bos
- A++ energielabel
- Vloerverwarming
- HR++ glas
- Parkeerplaats(en) te koop voor: € 62.500,- k.k. of een box voor: € 82.500,- k.k.
- Servicekosten VvE € 396,84 per maand
- Oplevering per direct

Deze informatie is door ons met de nodige zorgvuldigheid samengesteld. Onzerzijds wordt echter geen enkele aansprakelijkheid aanvaard voor enige onvolledigheid, onjuistheid of anderszins, dan wel de gevolgen daarvan. Alle opgegeven maten en oppervlakten zijn indicatief. Koper heeft zijn eigen onderzoek plicht naar alle zaken die voor hem of haar van belang zijn. Met betrekking tot deze woning is de makelaar adviseur van verkoper. Wij adviseren u een deskundige (NVM-)makelaar in te schakelen die u begeleidt bij het aankoopproces. Indien u specifieke wensen heeft omtrent de woning, adviseren wij u deze tijdig kenbaar te maken aan uw aankopend makelaar en hiernaar zelfstandig onderzoek te (laten) doen. Indien u geen deskundige vertegenwoordiger inschakelt, acht u zich volgens de wet deskundige genoeg om alle zaken die van belang zijn te kunnen overzien.

Kenmerken

Zonnepanelen
Overdracht
Vraagprijs
€ 1.995.000 k.k.
Status
beschikbaar
Aanvaarding
direct
Bouw
Soort woonhuis
Tussenverdieping
Soort bouw
appartement
Bouwjaar
2022
Slaapkamers
4
Badkamers
2
Oppervlakten en inhoud
Woonoppervlakte
226 m2
Overige inpandige ruimte
0 m2
Gebouwgebonden buitenruimte
31 m2
Externe bergruimte
5 m2
Inhoud
715 m3
faciliteiten
Mechanische ventilatie
Tv kabel
Schuifpui
Glasvezel kabel
Zonnepanelen
Aan bosrand
Aan rustige weg
In woonwijk
Baerz & Co Property Brochure

Brochure

Video’s

Plattegronden

Heeren Makelaars

Stadionweg 75
1077 SE Amsterdam

info@heerenmakelaars.nl
+31 204702255

www.heerenmakelaars.nl

Informatie / bezichtigingsaanvraag

Sander Bovenkerk profile image
Sander Bovenkerk
Real estate agent

Een luxe woning kopen in Amstelveen

Amstelveen biedt verfijnde woningen, een internationale ambiance en uitzonderlijke connectiviteit. De combinatie van groene omgeving, internationale voorzieningen en gemeenschapszin spreekt wereldwijd gezinnen en kopers aan die privacy én een levendige stedelijke verbinding zoeken.