Villa d'Arte werkt intensief samen met Baerz & Co Luxury Homes International, het trefpunt waar exclusieve huizen en veeleisende kopers samenkomen. Hieronder vindt u een geselecteerd aanbod van de meest exclusieve huizen op alle hot-spots in 20 landen rond de Middellandse zee, de Alpen, Mexico en Dubai.

AMSTERDAM
Alexander Boersstraat 29 H - 1071 KV
Nederland

Sander Bovenkerk profile image
Sander Bovenkerk
Real estate agent
€2.150.000 k.k.
Woonoppervlakte
228m2
Perceeloppervlakte
243m2
Slaapkamers
5

Omschrijving

Alexander Boersstraat 29, 1071 KV Amsterdam

Een uitzonderlijke object (ca. 228 m²) waar karakter, klassieke details en elegantie samenkomen. Achter de klassieke gevel ontvouwt zich een uniek verblijf dat niet alleen ruimte en luxe biedt, maar ook een unieke sfeer waarin iedere verdieping opnieuw verrast. Hier ervaart u het beste van twee werelden: wonen in het hart van het geliefde Museumkwartier, met alle voorzieningen binnen handbereik, terwijl u binnenshuis geniet van rust, warmte en een doordacht vormgegeven interieur. De verschillende verdiepingen laten zich stukje bij beetje ontdekken, met als hoogtepunt het royale dakterras (ca. 47 m²) waar u hoog boven de stad in alle rust kunt genieten.

Locatie en omgeving
De Alexander Boersstraat is een rustige, statige straat midden in het prestigieuze Museumkwartier, een van de meest geliefde en karaktervolle wijken van Amsterdam-Zuid. Hier woont u om de hoek van op een paar minuten lopen van het Museumplein, waar het Concertgebouw, het Rijksmuseum, het Van Gogh Museum en het Stedelijk Museum samenkomen. Een omgeving die cultuur, klasse en rust op uitzonderlijke wijze weet te verenigen.

De buurt biedt een breed scala aan hoogwaardige voorzieningen: van ambachtelijke traiteurs en speciaalzaken tot verfijnde horeca in de Cornelis Schuytstraat, P.C. Hooftstraat en Willemsparkweg. Denk aan een koffie bij CoffeeDistrict, een lunch bij Café George of een borrel bij Brasserie De Joffers. Hier vindt u alles binnen handbereik voor gezelligheid in stijl. Elke zaterdag vormt de boerenmarkt op het nabijgelegen Jacob Obrechtplein een geliefd buurtmoment voor bewoners. Ondanks de centrale ligging heerst in deze buurt een rustige, vriendelijke sfeer zoals een klein dorp middenin de stad.

Het Vondelpark ligt praktisch naast de deur en biedt volop ruimte voor ontspanning, hardlopen of een wandeling door het groen. Ook voor gezinnen is dit een ideale plek, met diverse scholen, kinderopvang, sportfaciliteiten en het wellnesscentrum van het Conservatorium Hotel op korte afstand.

Kortom: de buurt voelt vriendelijk, veilig en intiem, bijna dorps, maar dan met alle gemakken en elegantie van Amsterdam op topniveau.

Bereikbaarheid
Het object is uitstekend bereikbaar met de fiets, auto en het openbaar vervoer. Vanaf het Museumplein, de Van Baerlestraat en het Concertgebouw vertrekken meerdere tram- en buslijnen (waaronder tram 2, 3, 5 en 12) met snelle verbindingen naar o.a. Station Zuid, het Centraal Station, Amstelstation en Amstelveen. Bus 397 biedt daarnaast een directe route naar Schiphol.

Met de auto bereikt u via afslag S108 of S109 binnen enkele minuten de Ring A10, richting Utrecht, Den Haag of de luchthaven. Station Zuid ligt op circa 10 minuten fietsen, net als de Zuidas.

Parkeren
Parkeren is mogelijk via het gemeentelijke vergunningsysteem (vergunningsgebied Zuid 8.1 – Museumkwartier). De actuele wachttijd voor een vergunning kan worden opgevraagd bij de gemeente Amsterdam.

Indeling
De entree bevindt zich op de begane grond. Bij binnenkomst staat u meteen in een prachtig vormgegeven hal waar het karakter en de verfijnde stijl van de woning direct zichtbaar worden. De hoge plafonds, warme kleuren, zorgvuldige verlichting, plafondornamenten en klassieke details creëren een welkom dat u bijna doet vergeten dat u zich midden in de stad bevindt.

Het pand beslaat vier woonlagen, inclusief het souterrain, en strekt zich uit over het volledige pand. De verschillende hoogtes en niveaus geven het huis een speels en dynamisch karakter. U woont hier in het hart van het Museumkwartier, maar achter de voordeur ervaart u een uitzonderlijke rust en privacy.

Bel-etage / begane grond
De entreehal is voorzien van een stijlvolle inbouwkast en een fraaie klassieke trap die direct de aandacht trekt. Deze open ruimte leent zich uitstekend als lounge, ontvangst of garderobe. Een half niveau hoger bevindt zich een sfeervolle kamer die perfect in te richten is als salon, waar u onder andere een klassieke schouw aantreft. Aangrenzend ligt nog een separate kamer die ideaal is als studie of bibliotheek.

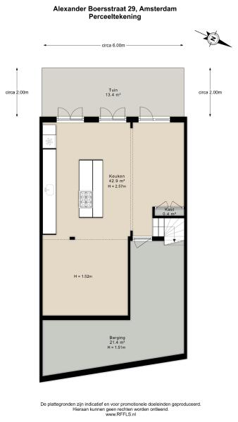
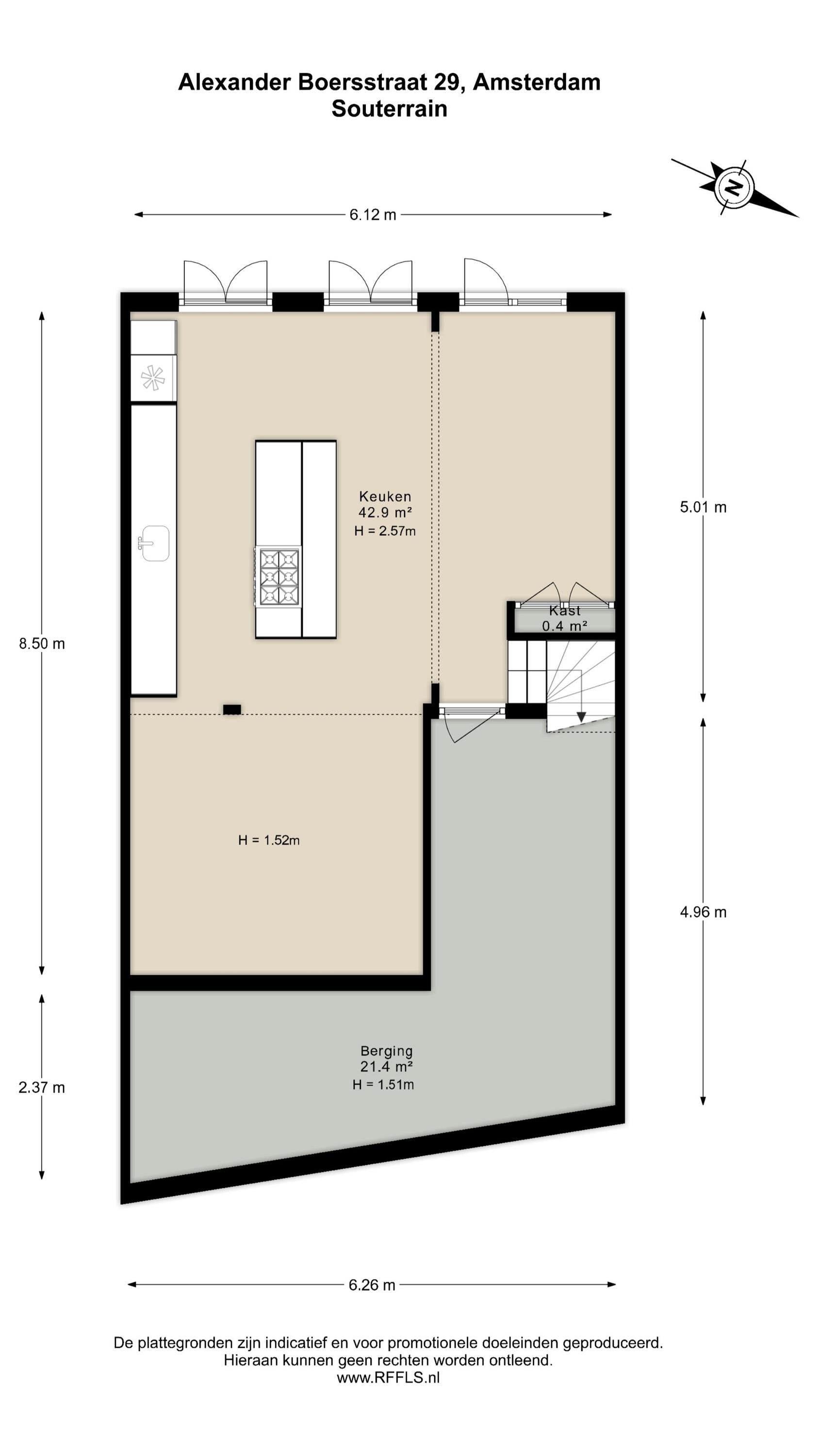
Souterrain
Een trap vanaf de bel-etage leidt naar het souterrain. Hier bevindt zich de royale woonkeuken met hoog plafond en toegang tot de patio. De keuken is ingericht met een royaal kookeiland met plek voor barkrukken en voorzien van alle gewenste apparatuur: een vaatwasser, koelkast, vriezer, wijnklimaatkast, oven en een vierpits gasfornuis.

In het eetgedeelte is volop ruimte voor een grote eettafel. De zichtbare houten balken geven deze verdieping zijn warme, authentieke uitstraling. Via openslaande deuren bereikt u de patio een heerlijke plek voor een rustig ontbijt of een kop koffie in de ochtendzon.

Op deze verdieping bevindt zich tevens een zeer ruime berging, ideaal als extra opslag ruimte.

Eerste verdieping
Op de eerste verdieping bevinden zich twee ruime en sfeervolle slaapkamers en een royale badkamer. De slaapkamer aan de achterzijde straalt rust uit dankzij de hoge plafonds, de visgraatvloer, warme kleuren en een klassieke schouw. Aangrenzend ligt een prachtige inloopkast met op maat gemaakte kasten, open schappen en geïntegreerde verlichting. Een bijzonder comfortabele en luxe plek om de dag te beginnen.

De slaapkamer aan de voorzijde is eveneens ruim en licht, met drie grote ramen en openslaande deuren naar een charmant Frans balkon. Ook hier zorgen de klassieke details en de visgraatvloer voor een elegante uitstraling.

De badkamer op deze verdieping is donker en stijlvol, compleet uitgerust met een dubbel wastafelmeubel, ligbad, dubbele douche en toilet. De combinatie van natuursteen en mozaïektegels creëert een warme, ontspannen sfeer.

Tweede verdieping
De tweede verdieping is volledig ingericht als slaapverdieping en biedt drie goed bemeten slaapkamers. De slaapkamer aan de voorzijde beschikt over klassieke details en een charmante schouw, net als de overige slaapkamers. De badkamer op deze verdieping is voorzien van een ligbad, douche, wastafelmeubel en toilet. Aan de achterzijde bevindt zich bovendien nog een extra kamer, perfect als kleedkamer, berging, logeer- of hobbyruimte. Deze badkamer is praktisch en comfortabel ingericht met een ligbad, een douche in badopstelling, een wastafelmeubel en radiator in neutrale tinten.

De tweede ruime slaapkamer bevindt zich aan de achterzijde. Hier is voldoende ruimte voor een ruim tweepersoonsbed en een extra studeer- of werkplek. De derde kamer op deze verdieping leent zich uitstekend als kinderkamer, thuiskantoor, inloopkast, logeerkamer of sportruimte. Bovendien is er ook nog een separaat toilet op deze verdieping.

Dakterras
Via een automatisch bedienbaar luik bereikt u het royale dakterras op de vierde verdieping. Dit heerlijke terras biedt de hele dag zon en een zeldzame mate van privacy, een ideale plek om te ontspannen of lange zomeravonden door te brengen.

Bijzonderheden
- Woonoppervlakte van ca. 228 m² (gemeten conform NEN 2580 meting)
- Ruim dakterras van ca. 47 m²
- Vijf slaapkamers en twee badkamers;
- Gelegen op eigen grond;
- Object bestaande uit een bedrijfsruimte op de begane grond en twee zelfstandige woonruimtes daarboven;
- Grote berging;
- Meerdere parkeerplekken aan te vragen via het vergunningenstelsel;
- Oplevering in overleg.

Deze informatie is door ons met de nodige zorgvuldigheid samengesteld. Onzerzijds wordt echter geen enkele aansprakelijkheid aanvaard voor enige onvolledigheid, onjuistheid of anderszins, dan wel de gevolgen daarvan. Alle opgegeven maten en oppervlakten zijn indicatief. Koper heeft zijn eigen onderzoek plicht naar alle zaken die voor hem of haar van belang zijn. Met betrekking tot deze woning is de makelaar adviseur van verkoper. Wij adviseren u een deskundige (NVM-)makelaar in te schakelen die u begeleidt bij het aankoopproces. Indien u specifieke wensen heeft omtrent de woning, adviseren wij u deze tijdig kenbaar te maken aan uw aankopend makelaar en hiernaar zelfstandig onderzoek te (laten) doen. Indien u geen deskundige vertegenwoordiger inschakelt, acht u zich volgens de wet deskundige genoeg om alle zaken die van belang zijn te kunnen overzien. Van toepassing zijn de NVM voorwaarden.

Kenmerken

Overdracht
Vraagprijs
€ 2.150.000 k.k.
Status
beschikbaar
Aanvaarding
in overleg
Bouw
Soort woonhuis
Herenhuis
Soort bouw
tussenwoning
Bouwjaar
1895
Energieklasse
D
Soort dak
plat dak
Slaapkamers
5
Badkamers
2
Oppervlakten en inhoud
Woonoppervlakte
228 m2
Overige inpandige ruimte
34 m2
Gebouwgebonden buitenruimte
48 m2
Inhoud
944 m3
Perceeloppervlakte
243 m2
faciliteiten
Frans balkon
Natuurlijke ventilatie
Aan park
Aan rustige weg
In centrum
Baerz & Co Property Brochure

Brochure

Video’s

Heeren Makelaars

Stadionweg 75
1077 SE Amsterdam

info@heerenmakelaars.nl
+31 204702255

www.heerenmakelaars.nl

Informatie / bezichtigingsaanvraag

Sander Bovenkerk profile image
Sander Bovenkerk
Real estate agent

Een luxe woning kopen in Amsterdam

Amsterdam biedt een kosmopolitische levensstijl, gekenmerkt door erfgoed, verbondenheid en discrete luxe. Bewoners profiteren van een sterke internationale gemeenschap, hoogwaardige dienstverlening en een bruisende cultuur. De blijvende aantrekkingskracht van de stad schuilt in de combinatie van geschiedenis, verfijning en een vooruitstrevende geest.