Villa d'Arte werkt intensief samen met Baerz & Co Luxury Homes International, het trefpunt waar exclusieve huizen en veeleisende kopers samenkomen. Hieronder vindt u een geselecteerd aanbod van de meest exclusieve huizen op alle hot-spots in 20 landen rond de Middellandse zee, de Alpen, Mexico en Dubai.

AMSTERDAM
Larikslaan 33 - 1087 SC
Nederland

Stefano B. Djoemena profile image
Stefano B. Djoemena
Beëdigd register makelaar o.z.
€3.550.000 k.k.
Woonoppervlakte
353m2
Perceeloppervlakte
455m2
Slaapkamers
6

Omschrijving

Adembenemende Vrijstaande Villa op Rieteiland Oost, Amsterdam.
Varen, zwemmen en recreëren direct vanuit uw tuin!

Stap binnen in deze indrukwekkende vrijstaande villa uit 2018, gelegen op het serene Rieteiland Oost in Amsterdam. Met een royale oppervlakte van 380 m2, inclusief garage en een eigen aanlegsteiger aan breed vaarwater, biedt deze woning alles wat u zich maar kunt wensen. Erfpacht is afgekocht tot 2058.
Deze droomvilla overstijgt alle verwachtingen met panoramische uitzichten vanaf elke verdieping over het water, een sensationeel dakterras, 7 (slaap)kamers, 3 luxe badkamers, een inpandige garage en parkeergelegenheid voor maar liefst 4 of 5 auto’s, op eigen terrein.
Hier geniet u van ongekende privacy, rust en ruimte, op korte afstand van het centrum van Amsterdam.
De architectuur en het interieur zijn tot in detail op elkaar afgestemd, en in overleg is het mogelijk om de woning inclusief meubels te kopen.

Indeling van de Villa

BEGANE GROND
Vanuit de royale hal met hoge plafonds betreedt u de riante living met grote glaspartijen die direct een prachtig uitzicht bieden. De ruimte heeft een indrukwekkende vrije hoogte en een sfeervolle haard. Diverse schuifpuien leiden naar de zorgvuldig aangelegde tuin met een eigen steiger aan het vaarwater. De tuin beschikt over een groot hardhouten terras, gazon en groene borders.
De luxe keuken is een droom voor elke chef-kok, uitgerust met alle moderne apparaten zoals een Quooker, een Bora inductiekookplaat met geïntegreerd afzuigsysteem vaatwasser, extra grote koelkast en vriezer, oven met stoomfunctie en een combi-oven. De koffiebar scheidt de keuken van de study. Voor uw geliefde viervoeter is er een buitenkennel bereikbaar vanuit binnen.

EERSTE ETAGE
Vanaf de overloop zijn alle vertrekken bereikbaar. Deze etage is voorzien van een moderne gietvloer. De master suite aan de achterzijde biedt een adembenemend uitzicht over het water, een kastenkamer en een badkamer en suite. De badkamer is voorzien van een douche, een Aquaclean Geberit toilet, dubbel wastafelmeubel en een vrijstaand ligbad met hetzelfde uitzicht. Vanuit de badkamer is er direct toegang tot de royale kastenkamer.
De riante slaapkamer aan de voorzijde kan eenvoudig in twee slaapkamers worden verdeeld en biedt een mooie doorkijk naar de entree. Deze kamer is voorzien van elektrische screens.
De tussengelegen slaapkamer is momenteel ingericht als wasruimte maar uiteraard ook zeer geschikt als slaapkamer. De tweede badkamer op deze etage is voorzien van een inloopdouche, een toilet en wastafelmeubel.

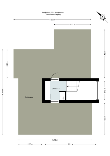
DAKTERRAS
De tweede etage biedt toegang tot het zonnige dakterras met ongeëvenaarde privacy. Op de overloop is een kitchenette geplaatst met een koelkast en gootsteen.

SOUTERRAIN
Op deze volwaardige etage met daglicht bevinden zich een homecinema, gastenkamer, kamer met tafeltennistafel, de technische ruimte, bergruimte en de derde badkamer. De badkamer is voorzien van een toilet, een wastafel en een inloopdouche.

LIGGING
Rieteiland Oost biedt een unieke combinatie van natuurlijke schoonheid en stedelijke bereikbaarheid. Nergens anders zo dicht bij het stadscentrum van Amsterdam zijn er percelen voor zelfgebouwde woningen die zoveel ruimte en vrijheid, rust en privacy, water en duinlandschap bieden – een zeldzaamheid in Amsterdam.
Het eiland grenst aan het Diemerpark waar u o.a. een eigen strand en sportclubs voor voetbal en hockey vindt. Op het eiland zelf zijn er faciliteiten om te spelen in de speeltuin, te tennissen en te kanoën.
Ligging aan een van de uitlopers van het Amsterdamse Buiten IJ. Je vaart hier zonder door een sluis te hoeven het ruime water op van het Markermeer. Met je boot naar Volendam om vis te halen, dagje Marker Wadden, de randmeren op en lunchen op de Vecht. Uiteraard ook Amsterdam in, met een boot blijf je varen.
Rieteiland Oost is rustig met alleen bestemmingsverkeer. IJburg ligt vlak bij de A10 en A1, en met tramlijn 26 (halte vlakbij de woning) bent u in ongeveer vijftien minuten op het Centraal Station.
IJburg biedt diverse basisscholen, het IJburg College (VWO, HAVO en VMBO), gezondheidscentra en kinderopvang. Het winkelcentrum, met ambachtelijke winkels, een grote Albert Heijn, Hema, gezellige restaurants, trendy cafés, theater en het stadsstrand Blijburg, ligt op korte afstand van de woning. De scholen in Amsterdam-Zuid zijn per e-bike binnen 20 minuten te bereiken.
Deze villa is niet alleen een thuis; het is een levensstijl.

HIGHLIGHTS
- Vrij uitzicht over het water met eigen aanlegsteiger
- Veel privacy en exclusiviteit op alle vlakken
- Hoogwaardig, luxe afgewerkte woning
- Zes slaapkamers met de mogelijkheid tot het creëren van een 7e slaapkamer
- Parkeergelegenheid voor 4 tot 5 auto’s op eigen terrein
- Oppervlakte van het huis volgens NEN 2580 bedraagt 380m² (inclusief de inpandige garage van 26m²)
- Hoge plafonds
- Riante living met grote glaspartijen en fantastisch uitzicht over het water
- Sfeervolle haard;
- Kennel voor een kleine hond, bereikbaar vanuit het huis
- Elektrische screens aan de zuidzijde
- Energielabel A+
- Erfpacht is afgekocht tot 2058
- Oplevering in overleg
- Deze woning heeft een eigen woningwebsite: larikslaan33.nl
- Notaris keuze aan koper, binnen regio Amsterdam/Amstelveen

Deze villa moet je voelen en ervaren. Geïnteresseerden leiden wij graag rond in deze unieke woning!

Deze informatie is door ons met de nodige zorgvuldigheid samengesteld. Onzerzijds wordt echter geen enkele aansprakelijkheid aanvaard voor enige onvolledigheid, onjuistheid of anderszins, dan wel de gevolgen daarvan. Alle opgegeven maten en oppervlakten zijn indicatief. Van toepassing zijn de NVM voorwaarden.

Kenmerken

Alarm system
Overdracht
Vraagprijs
€ 3.550.000 k.k.
Status
beschikbaar
Aanvaarding
in overleg
Bouw
Soort woonhuis
Villa
Soort bouw
vrijstaande woning
Bouwjaar
2018
Energieklasse
A+
Soort dak
plat dak
Slaapkamers
6
Badkamers
3
Oppervlakten en inhoud
Woonoppervlakte
353 m2
Overige inpandige ruimte
26 m2
Gebouwgebonden buitenruimte
90 m2
Inhoud
1364 m3
Perceeloppervlakte
455 m2
faciliteiten
Mechanische ventilatie
Alarminstallatie
Buitenzonwering
Rookkanaal
Schuifpui
Aan water
Aan rustige weg
Vrij uitzicht
Aan vaarwater
 

Video’s

Plattegronden

Lunshof Makelaardij Amsterdam

Keizersgracht 555
1017 DR Amsterdam

info@lunshof.nl
+31 575 55 05

www.lunshof.nl

Informatie / bezichtigingsaanvraag

Stefano B. Djoemena profile image
Stefano B. Djoemena
Beëdigd register makelaar o.z.

Een luxe woning kopen in Amsterdam

Amsterdam biedt een kosmopolitische levensstijl, gekenmerkt door erfgoed, verbondenheid en discrete luxe. Bewoners profiteren van een sterke internationale gemeenschap, hoogwaardige dienstverlening en een bruisende cultuur. De blijvende aantrekkingskracht van de stad schuilt in de combinatie van geschiedenis, verfijning en een vooruitstrevende geest.