Villa d'Arte werkt intensief samen met Baerz & Co Luxury Homes International, het trefpunt waar exclusieve huizen en veeleisende kopers samenkomen. Hieronder vindt u een geselecteerd aanbod van de meest exclusieve huizen op alle hot-spots in 20 landen rond de Middellandse zee, de Alpen, Mexico en Dubai.

AMSTERDAM
Schiemanstraat 10 - 1013 MJ
Nederland

Stefano B. Djoemena profile image
Stefano B. Djoemena
Beëdigd register makelaar o.z.
€949.000 k.k.
Woonoppervlakte
102m2
Perceeloppervlakte
80m2
Slaapkamers
2

Omschrijving

Royale nieuwbouw benedenwoning op eigen grond (géén erfpacht) met uitzicht over het Westerkanaal en energielabel A+++
Aan de Schiemanstraat 10 verrijst een karaktervol herenhuis, volledig nieuw opgebouwd in de stijl van een New Yorks pakhuis. Stoer en klassiek tegelijk, met lange slanke bakstenen van 40 cm, symmetrische raampartijen en hoogwaardige aluminium kozijnen in RAL 6006.

Binnen wordt het comfort van nu gecombineerd met duurzaamheid: energielabel A+++, volledig all-electric en gasloos, en overal triple glas in ultradunne profielen.

De benedenwoning beschikt over een eigen entree, een indrukwekkende bel-etage en een volwaardig souterrain. Samen circa 102 m² woonoppervlakte (NEN gemeten 101,7 m²). De combinatie van hoge plafonds, het water aan de voorzijde en de rustige ligging geeft de woning een bijzonder gevoel van ruimte en vrijheid, midden in de stad.

Hoogwaardige basis, vrijheid in afwerking
De woning wordt opgeleverd met een complete en hoogwaardige basis, inclusief sanitair, deuren en alle technische installaties. De woning is persoonlijk af te werken: de keuken- en vloerkeuze zijn vrij, evenals de wandafwerking. Hierdoor ontstaat een hoogwaardige basis met ruimte voor persoonlijke invulling. Ter inspiratie ontvangt de koper twee uur kosteloos interieuradvies van Co van der Horst.

Duurzaam, stil en toekomstbestendig
De woning is volledig all-electric en voorzien van een toekomstbestendige installatie, waaronder:
- luchtwarmtepomp;
- vloerverwarming én -koeling;
- mechanische ventilatie;

De hoogwaardige geluids- en warmte-isolatie en het triple glas zorgen voor een stille woning met een comfortabel binnenklimaat en lage energielasten. Zonnepanelen zijn optioneel en afhankelijk van vergunningsverlening.

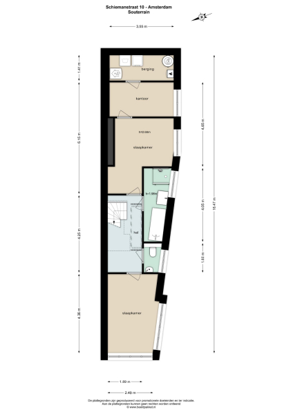
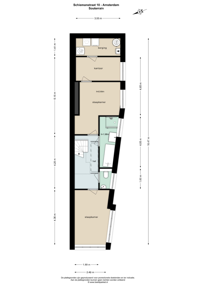
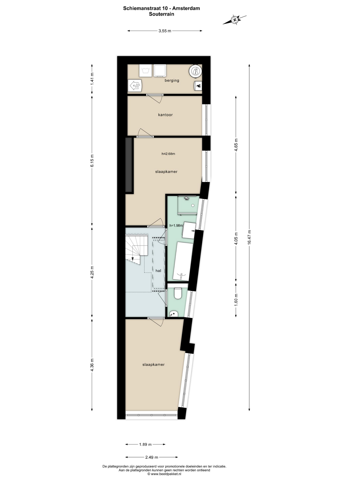
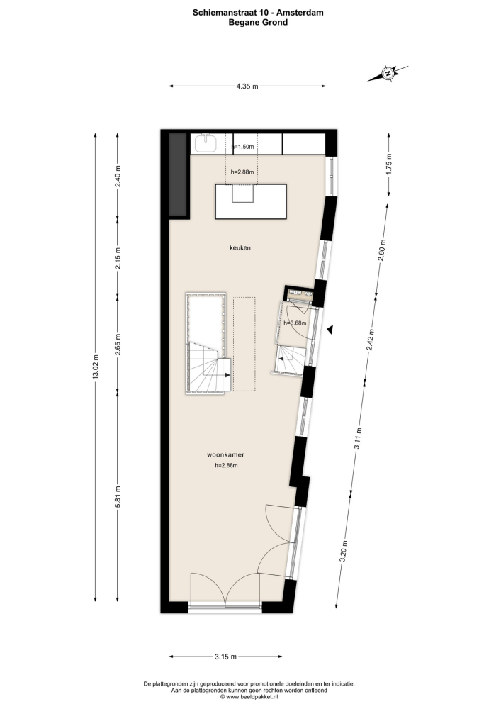
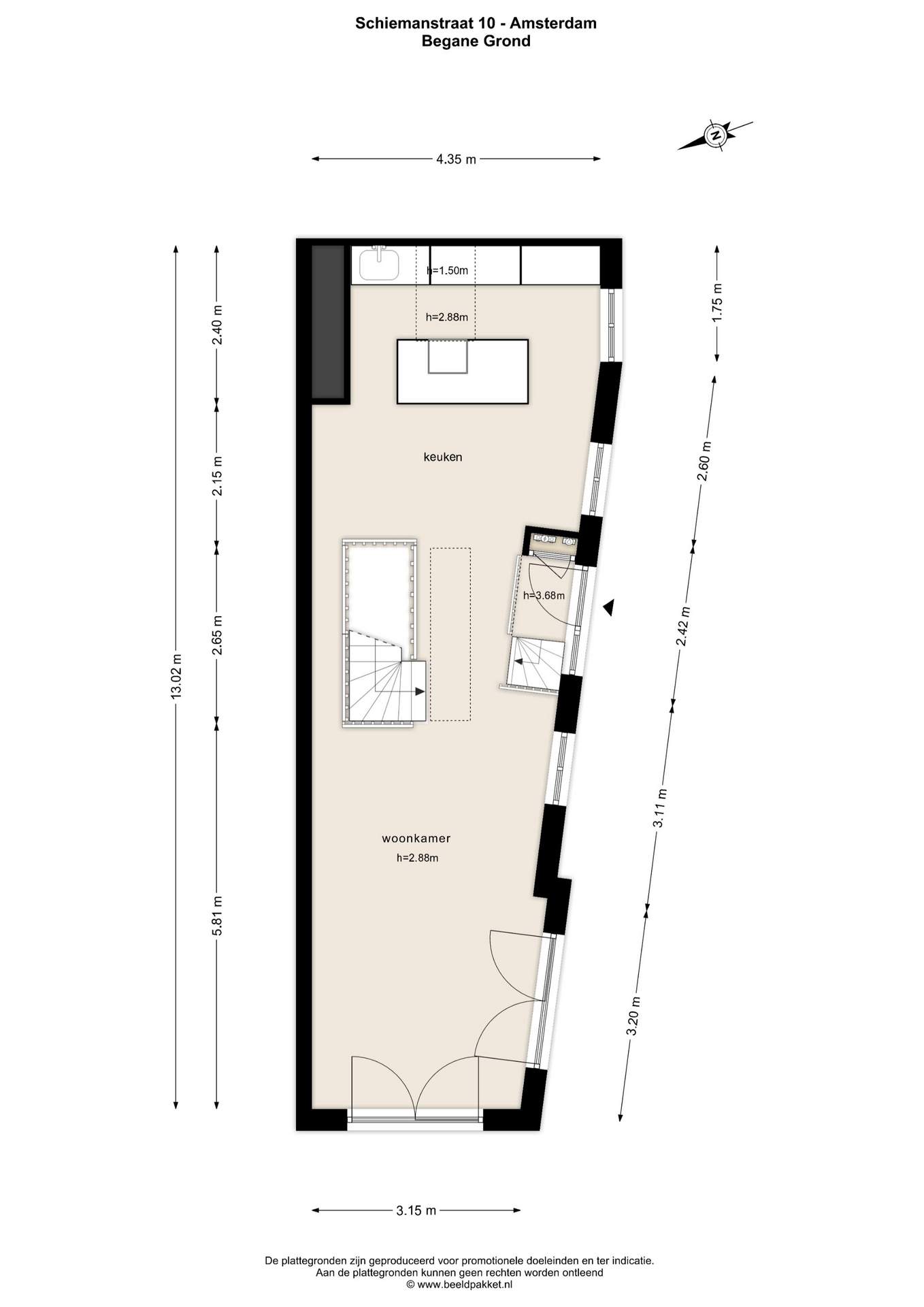
Indeling

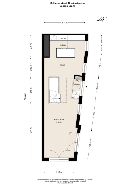
Begane grond
Met een plafondhoogte van bijna 2,90 meter voelt de bel-etage uitzonderlijk ruim en licht – een zeldzaamheid in de binnenstad. Grote raampartijen en twee brede harmonicapuien aan de waterzijde zorgen voor een directe verbinding tussen binnen en buiten. Deze verdieping leent zich perfect voor een royale woonkamer met open keuken.

Souterrain
Het souterrain heeft een plafondhoogte van circa 2,68 meter en is een volwaardige woonlaag. Hier bevinden zich twee slaapkamers, een aparte toiletruimte, een ruime badkamer, een werkruimte en een berging met aansluitingen voor wasmachine, droger en de technische installaties.

Daglicht komt binnen via koekoeken aan de voorzijde. Daarnaast zorgt het beloopbare glas tussen de begane grond en het souterrain voor extra lichttoetreding en een bijzondere visuele verbinding tussen de woonlagen.

Omgeving
Gelegen aan een rustige kade aan het Westerkanaal, in de historische binnenstad van Amsterdam. Op enkele minuten loopafstand bevinden zich het Haarlemmerplein, de Haarlemmerstraat en het Westerpark – stuk voor stuk geliefde plekken vanwege hun mix van cultuur, horeca, markten en winkels.

Station Amsterdam Centraal, de ring A10 en het openbaar vervoer zijn snel bereikbaar.

Bijzonderheden
- Volledig nieuwbouw op eigen grond (géén erfpacht)
- Woonoppervlakte ca. 102 m² (NEN: 101,7 m²)
- Eigen entree
- Uitzicht over het Westerkanaal
- Energielabel A+++
- All-electric en gasloos
- Ultradunne aluminium kozijnen met triple glas
- Luchtwarmtepomp met vloerverwarming én -koeling
- Hoogwaardige geluids- en warmte-isolatie
- Souterrain met daglicht via koekoeken
- Beloopbaar glas tussen begane grond en souterrain
- Complete basisafwerking
- Keuken- en vloerkeuze vrij
- Persoonlijk af te werken naar eigen smaak
- Begane grond ca. 2,90 m plafondhoogte
- Souterrain ca. 2,68 m plafondhoogte
- Zonnepanelen optioneel (vergunningsafhankelijk)
- Slechts twee woningen in het pand
- 2 uur professioneel interieuradvies via Co van der Horst
- Notariskeuze aan koper (mits binnen regio Amsterdam en gebruik model Ring Amsterdam)

Een unieke kans voor wie nieuwbouwcomfort zoekt op eigen grond, met karakter, licht en uitzicht – op een toplocatie in Amsterdam.

Deze informatie is door ons met de nodige zorgvuldigheid samengesteld. Onzerzijds wordt echter geen enkele aansprakelijkheid aanvaard voor enige onvolledigheid, onjuistheid of anderszins, dan wel de gevolgen daarvan. Alle opgegeven maten en oppervlakten zijn indicatief. Van toepassing zijn de NVM voorwaarden.

Kenmerken

Zonnepanelen
Overdracht
Vraagprijs
€ 949.000 k.k.
Status
beschikbaar
Aanvaarding
in overleg
Bouw
Soort woonhuis
Dubbel benedenhuis
Soort bouw
appartement
Bouwjaar
2025
Energieklasse
A+++
Soort dak
samengesteld dak
Slaapkamers
2
Badkamers
1
Oppervlakten en inhoud
Woonoppervlakte
102 m2
Overige inpandige ruimte
0 m2
Inhoud
388 m3
Perceeloppervlakte
80 m2
faciliteiten
Mechanische ventilatie
Frans balkon
Zonnepanelen
Aan water
Aan rustige weg
In centrum
Vrij uitzicht
Aan vaarwater
 

Video’s

Lunshof Makelaardij Amsterdam

Keizersgracht 555
1017 DR Amsterdam

info@lunshof.nl
+31 575 55 05

www.lunshof.nl

Informatie / bezichtigingsaanvraag

Stefano B. Djoemena profile image
Stefano B. Djoemena
Beëdigd register makelaar o.z.

Een luxe woning kopen in Amsterdam

Amsterdam biedt een kosmopolitische levensstijl, gekenmerkt door erfgoed, verbondenheid en discrete luxe. Bewoners profiteren van een sterke internationale gemeenschap, hoogwaardige dienstverlening en een bruisende cultuur. De blijvende aantrekkingskracht van de stad schuilt in de combinatie van geschiedenis, verfijning en een vooruitstrevende geest.