Villa d'Arte werkt intensief samen met Baerz & Co Luxury Homes International, het trefpunt waar exclusieve huizen en veeleisende kopers samenkomen. Hieronder vindt u een geselecteerd aanbod van de meest exclusieve huizen op alle hot-spots in 20 landen rond de Middellandse zee, de Alpen, Mexico en Dubai.

AMSTERDAM
Valeriusstraat 170 H - 1075 GH
Nederland

Eran Hausel profile image
Eran Hausel
Real estate agent
€2.500.000 k.k.
Woonoppervlakte
190m2
Perceeloppervlakte
272m2
Slaapkamers
4

Omschrijving

Valeriusstraat 170 H, 1075 GH AMSTERDAM

Op een van de meest gewilde plekken van Amsterdam-Zuid staat deze ruime en stijlvol afgewerkte woning op eigen grond van ca. 190 m², verdeeld over drie woonlagen en voorzien van een royale achtertuin, twee balkons en een praktische kelder. Dankzij de lichte living, moderne keuken, vier goed bemeten slaapkamers en twee luxe badkamers biedt dit huis het perfecte wooncomfort voor gezinnen en liefhebbers van ruimte op een toplocatie in Amsterdam-Zuid.

Ligging & Bereikbaarheid:
De woning is gelegen in het zeer gewilde stadsdeel (Oud-)Zuid, nabij de ‘Cornelis Schuyt’ met zijn diverse exclusieve winkels, nabij de Jacob Obrechtstraat en het prachtige Vondelpark. Alle voorzieningen zoals goed aangeschreven scholen en openbaar vervoer (diverse tramlijnen en busverbindingen) bevinden zich op loopafstand. Tevens zijn er tal van terrassen en restaurants nabij gelegen, speelveldje op het Valeriusplein, evenals het winkelaanbod van de Van Baerlestraat, Beethovenstraat en P.C. Hooftstraat enerzijds en het Concertgebouw, het Rijksmuseum en het Museumplein anderzijds. Bovendien is het appartement gunstig gelegen ten opzichte van meerdere uitvalswegen, luchthaven Schiphol bevindt zich op 15 minuten rijafstand. Parkeren geschiedt middels vergunning systeem en betaald parkeren is voor de deur mogelijk.

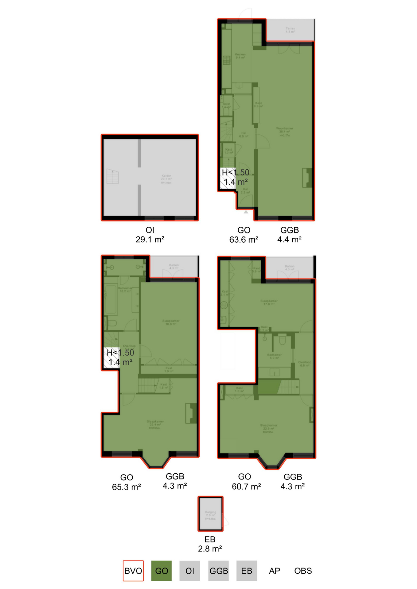
Indeling
Begane grond
Middels de eigen entree bereikt u het tochtportaal en de hal, welke toegang biedt tot de vertrekken op de begane grond. Hier bevindt zich een separaat toilet met fontein en een praktische bergkast met toegang naar de kelder, bestaande uit twee goed bruikbare ruimtes, ideaal als opslag, hobbyruimte of wijnkelder. De royale woonkamer strekt zich uit over de volledige lengte van de woning en wordt betreden middels een stijlvolle stalen look deure. Dankzij het hoge plafond en grote raampartijen is de living bijzonder licht, met aan de voorzijde ruimte voor een comfortabele zithoek met gashaard en aan de achterzijde plek voor een ruime eettafel. De moderne keuken is gelegen aan de achterzijde en is uitgerust met een inductiekookplaat met ingebouwde afzuiging, ijskast, vriezer, oven, combi-oven, vaatwasser en een spoelbak met Quooker-kraan. Zowel vanuit de keuken als vanuit de eetkamer bereikt u middels openslaande deuren het terras. Vanaf het terras leidt een trap naar de royale achtertuin: een heerlijke plek met volop ruimte voor loungesets, een eettafel en een veilige speelplek voor kinderen.

Eerste verdieping
Middels de vaste trap bereikt u de eerste verdieping. De centrale overloop geeft toegang tot twee slaapkamers en de luxe badkamer. Aan de voorzijde bevindt zich een slaapkamer, voorzien van nette inbouwkasten en een charmante erker. Deze erker is uitgerust met op maat gemaakte kussens, waardoor een gezellige zithoek is gecreëerd. Aan de achterzijde ligt de master bedroom, eveneens met inbouwkasten en airconditioning, en met directe toegang tot een balkon dat prettig uitkijkt op de groene binnentuinen. De badkamer op deze verdieping is volledig uitgevoerd in dezelfde stijl als de andere sanitaire ruimtes en beschikt over een dubbele douche, dubbele wastafel met meubel, ligbad en een toilet.

Tweede verdieping
De tweede verdieping biedt wederom een ruime overloop, twee grote slaapkamers en badkamer. Beide kamers zijn voorzien van airconditioning en inbouwkasten, waardoor er volop opbergruimte is. De slaapkamer aan de achterzijde beschikt daarnaast over openslaande deuren naar het tweede balkon. De badkamer op deze verdieping is wederom stijlvol afgewerkt en voorzien van een inloopdouche, wastafel met meubel en toilet.

Bijzonderheden
- Appartementsrecht ca. 190m² (gemeten conform NEN-2580 meetinstructie);
- Ruime achtertuin ca. 52m² (gemeten conform NEN-2580 meetinstructie) met schuur;
- Vier ruime slaapkamers;
- Twee badkamers;
- Twee balkons;
- Houten vloeren door hele woning;
- Gashaard met afstandsbediening;
- Kelder met genoeg bergruimte;
- Energielabel C;
- Slaapkamers voorzien van airconditioning;
- Vloerverwarming in woonkamer, hal, keuken en badkamers;
- Overal kozijnen voorzien van dubbel glas;
- Eigen grond, dus GEEN erfpacht;
- Kleinschalige VvE van twee leden, in eigen beheer;
- VvE maandelijkse bijdrage € 300,-
- Oplevering in overleg.

Deze informatie is door ons met de nodige zorgvuldigheid samengesteld. Onzerzijds wordt echter geen enkele aansprakelijkheid aanvaard voor enige onvolledigheid, onjuistheid of anderszins, dan wel de gevolgen daarvan. Alle opgegeven maten en oppervlakten zijn indicatief. Koper heeft zijn eigen onderzoeksplicht naar alle zaken die voor hem of haar van belang zijn. Met betrekking tot deze woning is de makelaar adviseur van verkoper. Wij adviseren u een deskundige (NVM-)makelaar in te schakelen die u begeleidt bij het aankoopproces. Indien u specifieke wensen heeft omtrent de woning, adviseren wij u deze tijdig kenbaar te maken aan uw aankopend makelaar en hiernaar zelfstandig onderzoek te (laten) doen. Indien u geen deskundige vertegenwoordiger in-schakelt, acht u zich volgens de wet deskundige genoeg om alle zaken die van belang zijn te kun-nen overzien. Van toepassing zijn de NVM voorwaarden.

Kenmerken

Overdracht
Vraagprijs
€ 2.500.000 k.k.
Status
verkocht onder voorbehoud
Aanvaarding
in overleg
Bouw
Soort woonhuis
Dubbel benedenhuis
Soort bouw
appartement
Bouwjaar
1911
Energieklasse
C
Soort dak
plat dak
Slaapkamers
4
Badkamers
2
Oppervlakten en inhoud
Woonoppervlakte
190 m2
Overige inpandige ruimte
29 m2
Gebouwgebonden buitenruimte
13 m2
Inhoud
817 m3
Perceeloppervlakte
272 m2
faciliteiten
Mechanische ventilatie
Tv kabel
Natuurlijke ventilatie
Aan rustige weg
In centrum
In woonwijk
Baerz & Co Property Brochure

Brochure

Video’s

Virtuele rondleidingen

VIRTUAL TOUR
Virtual Tour Valeriusstraat 170 H

Heeren Makelaars

Stadionweg 75
1077 SE Amsterdam

info@heerenmakelaars.nl
+31 204702255

www.heerenmakelaars.nl

Informatie / bezichtigingsaanvraag

Eran Hausel profile image
Eran Hausel
Real estate agent

Een luxe woning kopen in Amsterdam

Amsterdam biedt een kosmopolitische levensstijl, gekenmerkt door erfgoed, verbondenheid en discrete luxe. Bewoners profiteren van een sterke internationale gemeenschap, hoogwaardige dienstverlening en een bruisende cultuur. De blijvende aantrekkingskracht van de stad schuilt in de combinatie van geschiedenis, verfijning en een vooruitstrevende geest.