Villa d'Arte werkt intensief samen met Baerz & Co Luxury Homes International, het trefpunt waar exclusieve huizen en veeleisende kopers samenkomen. Hieronder vindt u een geselecteerd aanbod van de meest exclusieve huizen op alle hot-spots in 20 landen rond de Middellandse zee, de Alpen, Mexico en Dubai.

BERGEN (NH)
Groene Hof 3 - 1861 PK
Nederland

Angeline Croonen profile image
Angeline Croonen
Real Estate Agent
€2.495.000 k.k.
Woonoppervlakte
202m2
Perceeloppervlakte
2847m2
Slaapkamers
2

Omschrijving

Bijzondere, onder architectuur gebouwde, schuurvilla in het weidelandschap van Bergen met prachtig uitzicht en energielabel A++++.

Op deze unieke plek in Bergen, omgeven door groene weilanden, water en prachtige vergezichten, vindt u op huisnummer 3 een sfeervolle villa voor wie houdt van rust en ruimte. Deze woning is een waar paradijs voor natuurliefhebbers en levensgenieters, met een sprookjesachtige tuin die uitnodigt tot ontspanning en inspiratie. Het maakt onderdeel uit van een uniek erfensemble van vijf andere unieke landhuizen, die allemaal aangesloten zijn bij het karakter van een ‘boerenerf’ met een eigentijdse uitstraling. Vanuit de woning heeft u een adembenemend uitzicht over de weidse weilanden. De villa vormt het ideale thuis voor wie waarde hecht aan exclusiviteit en hedendaags comfort.

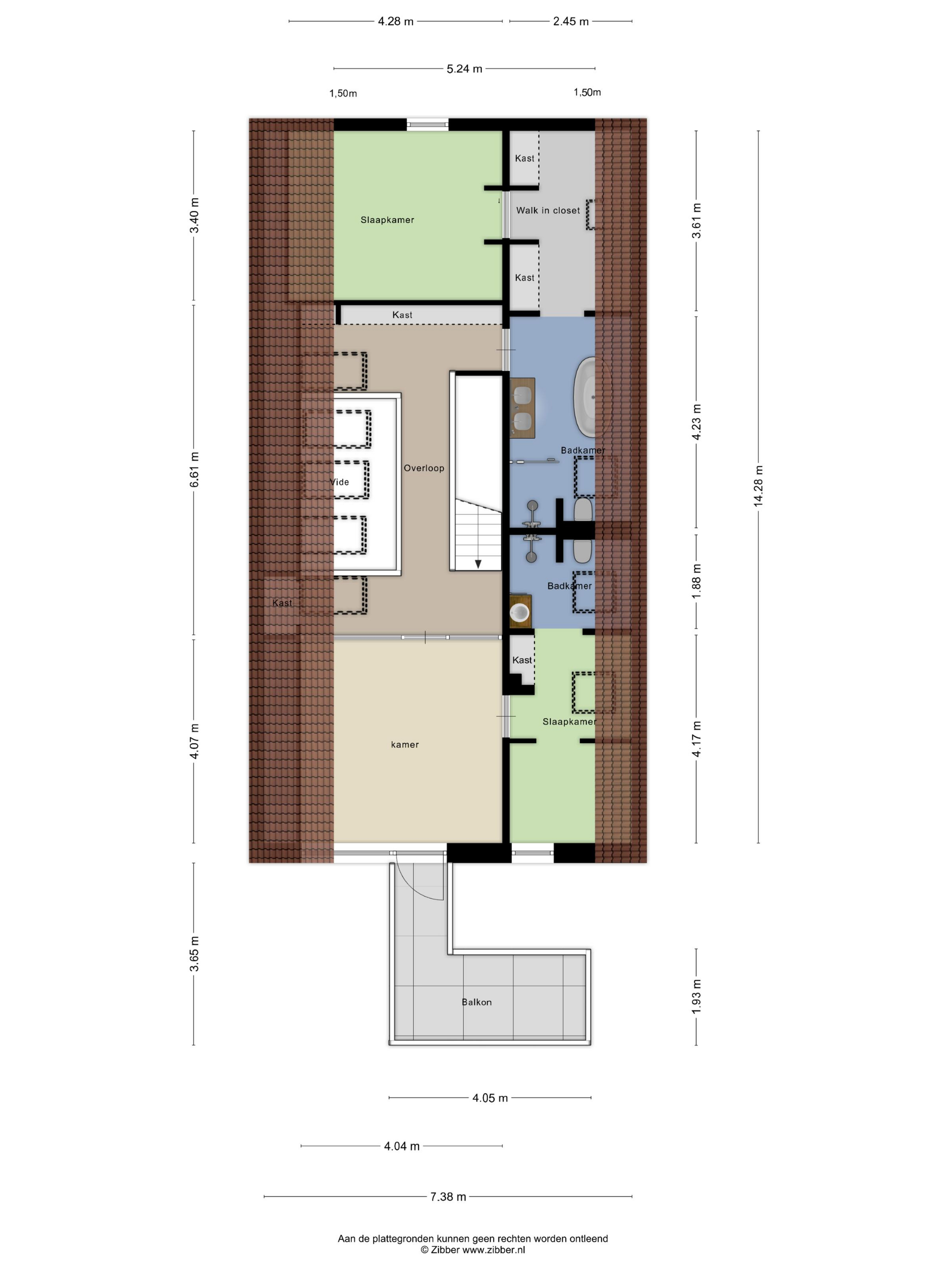
We nemen u graag mee naar binnen. Via de entree betreden we de sfeervolle woonkamer met open keuken. De keuken is volledig uitgerust en biedt alles wat het hart van de kookliefhebber begeert. Wat direct opvalt, zijn de grote raampartijen die zorgen voor een prachtige lichtinval en een weids uitzicht op de groene tuin en de omliggende weilanden. Ook de trap naar de verdieping is een ware blikvanger – een architectonisch hoogstandje dat karakter toevoegt aan de ruimte. Het huis is als een loft opgezet met volledig open karakter.

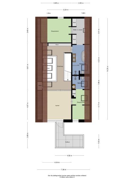
Op de verdieping bevinden zich de slaapkamers en 2 stijlvolle, moderne badkamers. Deze zijn ontworpen met oog voor comfort en gebruiksgemak. Door de hele woning is volop ingebouwde- op maat gemaakte- kastruimte aanwezig en er is een prettige werkplek gecreëerd, zodat alles binnen handbereik is.

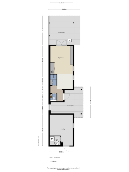
Een groot bijgebouw is multifunctioneel en kan naar wens worden ingericht als bijvoorbeeld atelier, relaxruimte of sportruimte. Hier bevindt zich ook een grote opbergruimte met de technische voorzieningen. Het huis is elektrisch uitgerust met een warmte pomp, warmte-terug-win-unit, 62 zonnepanelen, HR+++ glas, dus het hele huis is optimaal geïsoleerd. Hierdoor is deze woning voorzien van een heus A++++ label, wat betekent dat de energiekosten vrijwel nihil zijn. Vanuit het buitengebouw geniet u van het fantastische uitzicht over de weilanden. Aan de weilanden achter het huis is ook de buitenkeuken gesitueerd met een grote vlonder die ruimte biedt voor ontspanning en rust.

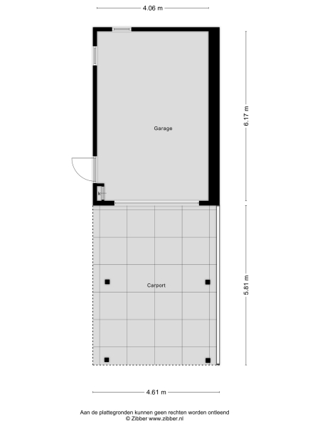
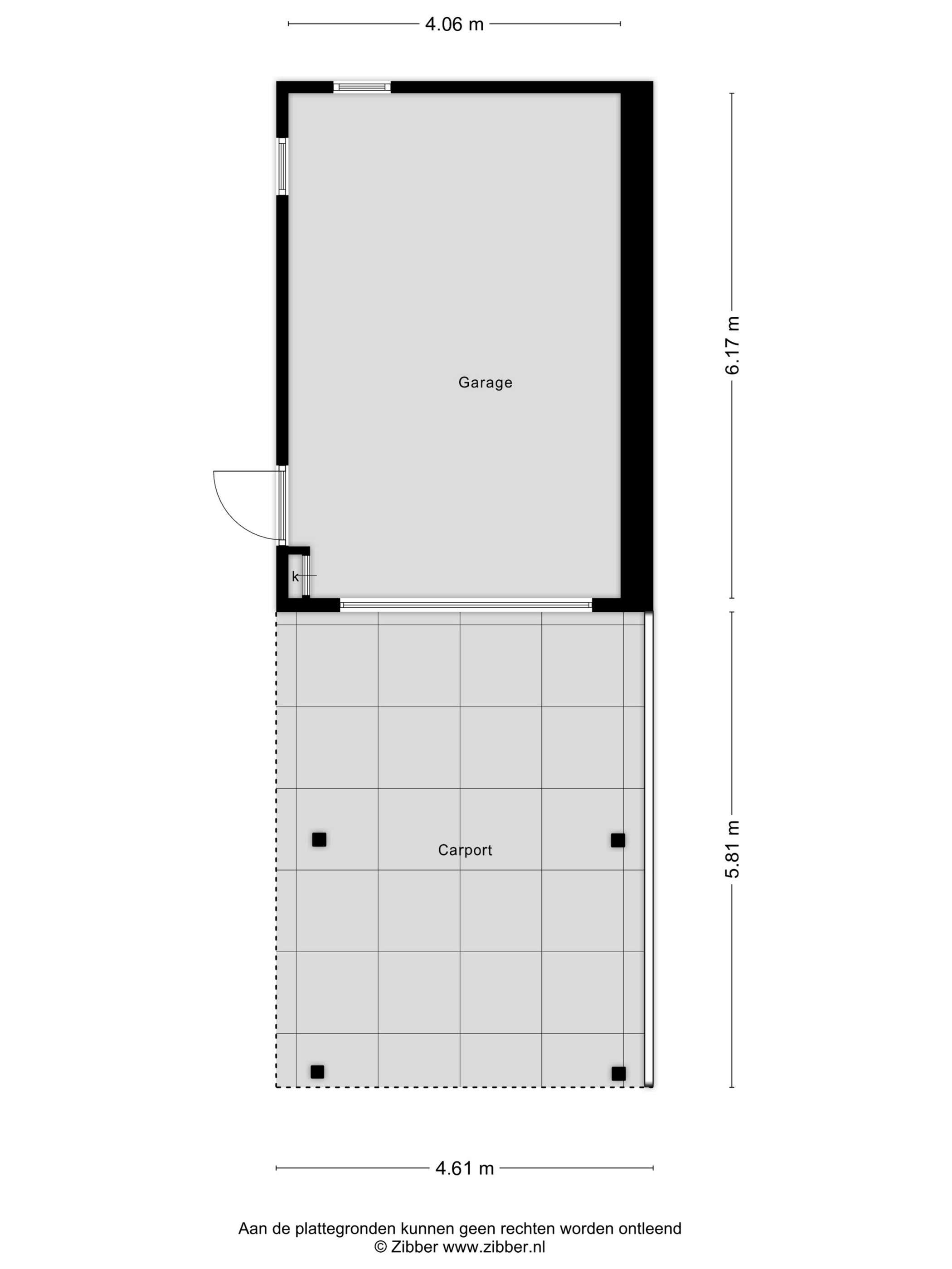
De vrijstaande garage met overdekte carport biedt ruim plek aan de auto en/of andere vervoersmiddelen, maar kan ook prima dienst doen als fijne werkplaats. Op het eigen terrein kunnen eenvoudig meerdere auto's geparkeerd worden.

De tuin is een oase van rust en inspiratie, met meer dan fraaie beplanting, verschillende zitjes, een fantastische kas, kippen, zon- en schaduwplekken en een schitterend uitzicht. De kas is direct gekoppeld aan de fraai aangelegde moestuin. De kippen en een fruittuin maken het plaatje daarbij af.

De omgeving is ideaal voor wie houdt van wandelen: met een flinke wandeling bent u zo in het bos of in het gezellige centrum van Bergen, waar u fijne terrassen, mooie winkels, tal van sportfaciliteiten en goede scholen treft.

Kortom, dit is een buitengewoon fijne woonomgeving voor wie houdt van kunst, cultuur en natuur. Een plek waar u kunt genieten van het beste wat Bergen en haar prachtige omgeving te bieden heeft: rust, ruimte en inspiratie. Wij nodigen u graag uit om deze bijzondere villa zelf te komen ervaren!

Kenmerken

Zonnepanelen
Alarm system
Overdracht
Vraagprijs
€ 2.495.000 k.k.
Status
beschikbaar
Aanvaarding
in overleg
Bouw
Soort woonhuis
Villa
Soort bouw
vrijstaande woning
Bouwjaar
2018
Energieklasse
A++++
Soort dak
zadeldak
Slaapkamers
2
Badkamers
2
Oppervlakten en inhoud
Woonoppervlakte
202 m2
Overige inpandige ruimte
0 m2
Gebouwgebonden buitenruimte
58 m2
Externe bergruimte
59 m2
Inhoud
749 m3
Perceeloppervlakte
2847 m2
faciliteiten
Mechanische ventilatie
Alarminstallatie
Tv kabel
Rookkanaal
Dakraam
Zonnepanelen
Aan water
Aan rustige weg
Vrij uitzicht
Buiten bebouwde kom
In bosrijke omgeving
Landelijk gelegen
Baerz & Co Property Brochure

Brochure

Video’s

Plattegronden

Croon Makelaars

Breelaan 41
1861 GD Bergen

info@croonmakelaars.nl
+31 (0)72 743 32 44

www.croonmakelaars.nl

Informatie / bezichtigingsaanvraag

Angeline Croonen profile image
Angeline Croonen
Real Estate Agent