Villa d'Arte werkt intensief samen met Baerz & Co Luxury Homes International, het trefpunt waar exclusieve huizen en veeleisende kopers samenkomen. Hieronder vindt u een geselecteerd aanbod van de meest exclusieve huizen op alle hot-spots in 20 landen rond de Middellandse zee, de Alpen, Mexico en Dubai.

BERGEN (NH)
Herenweg 57 - 1861 PB
Nederland

€1.695.000 k.k.
Woonoppervlakte
N/A
Perceeloppervlakte
9122m2
Slaapkamers
N/A

Omschrijving

Een unieke kans!
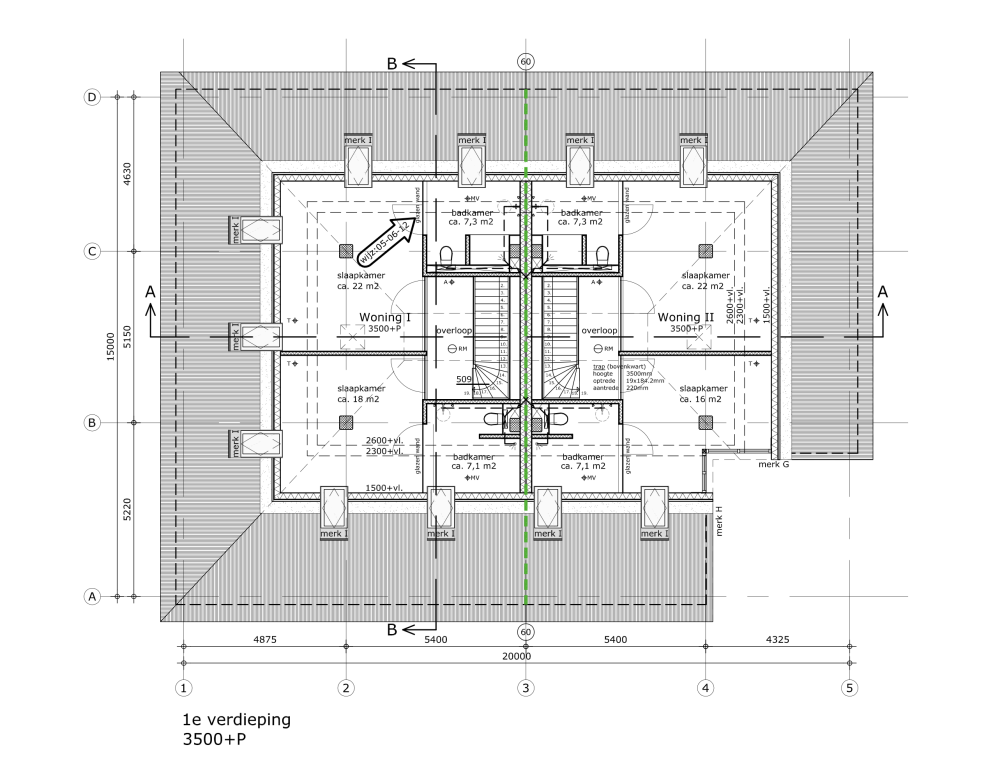
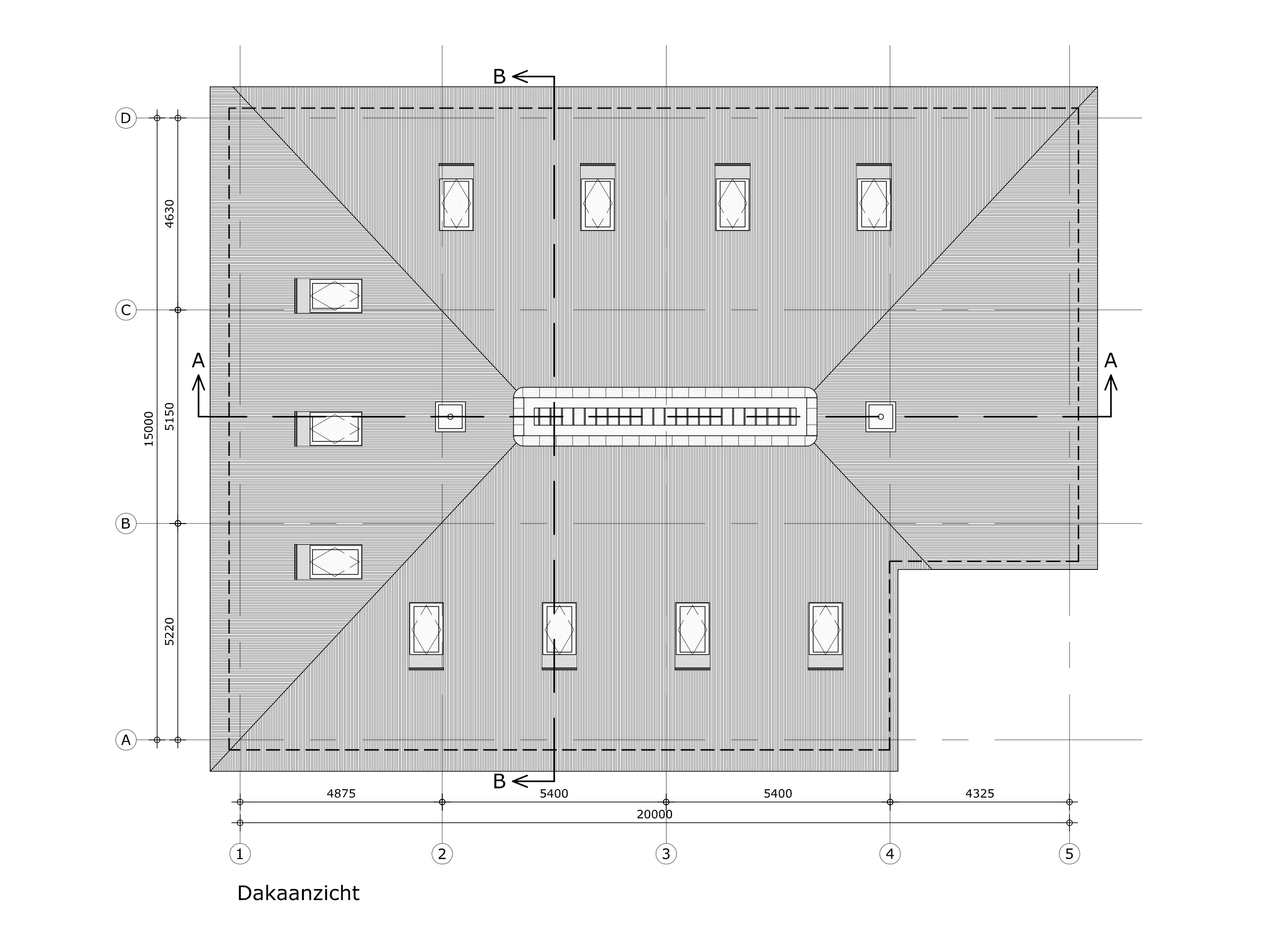
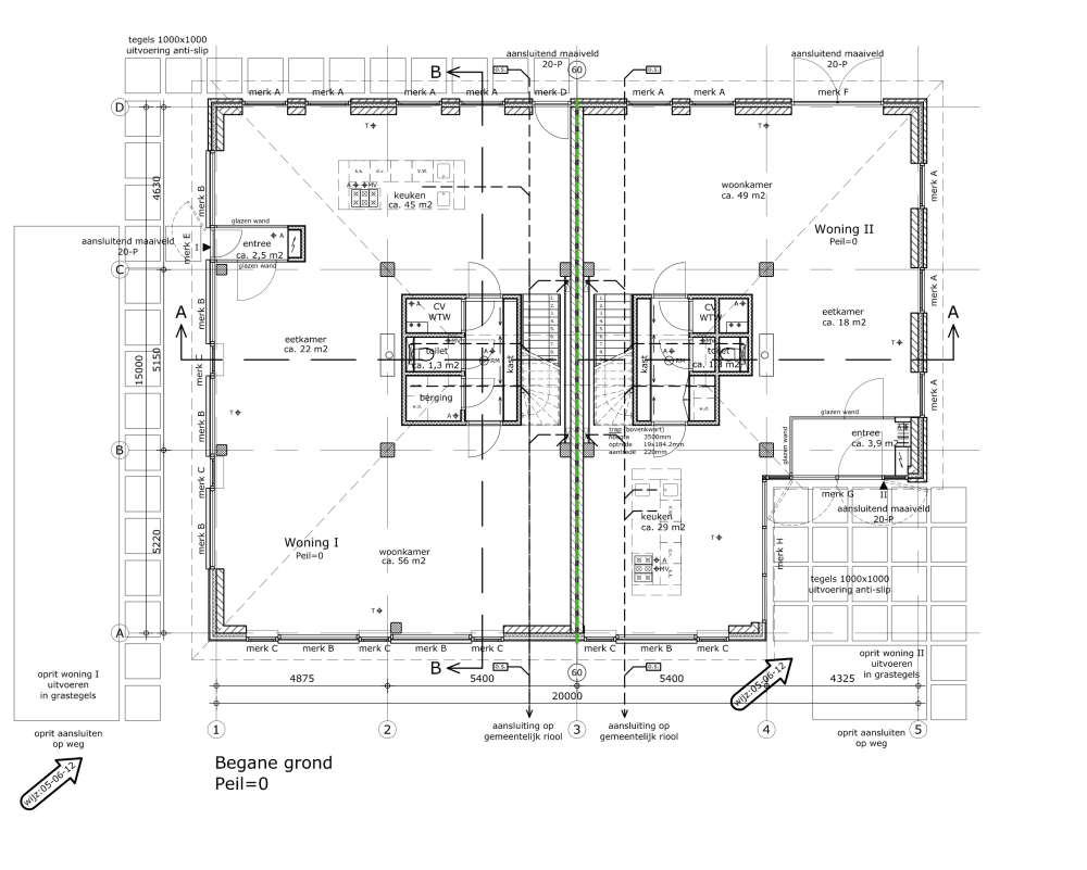
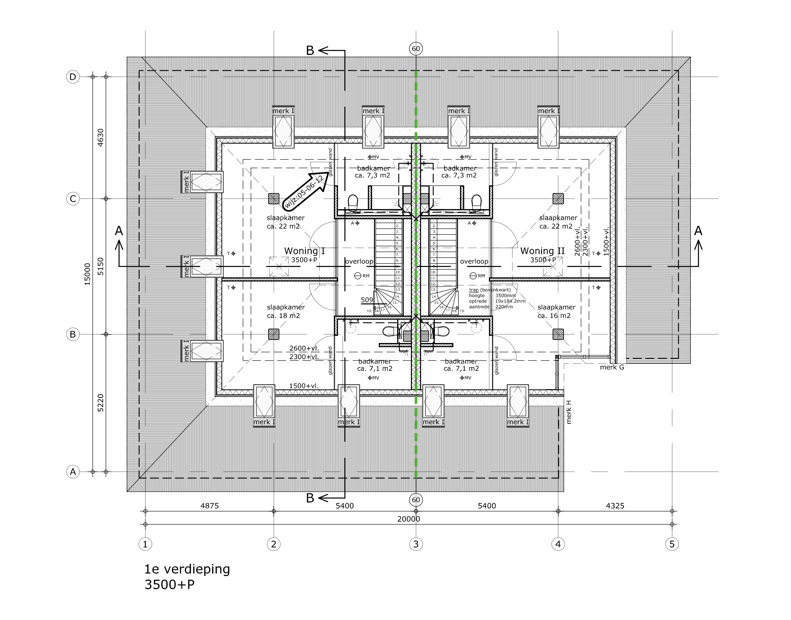
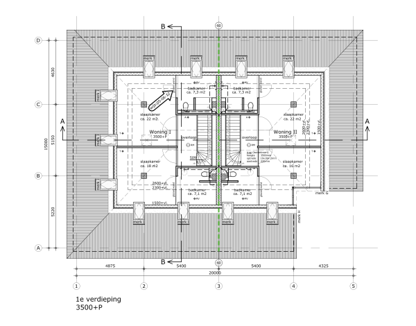
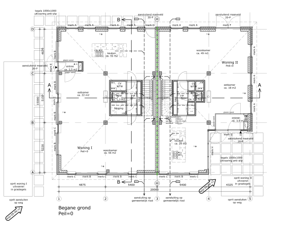
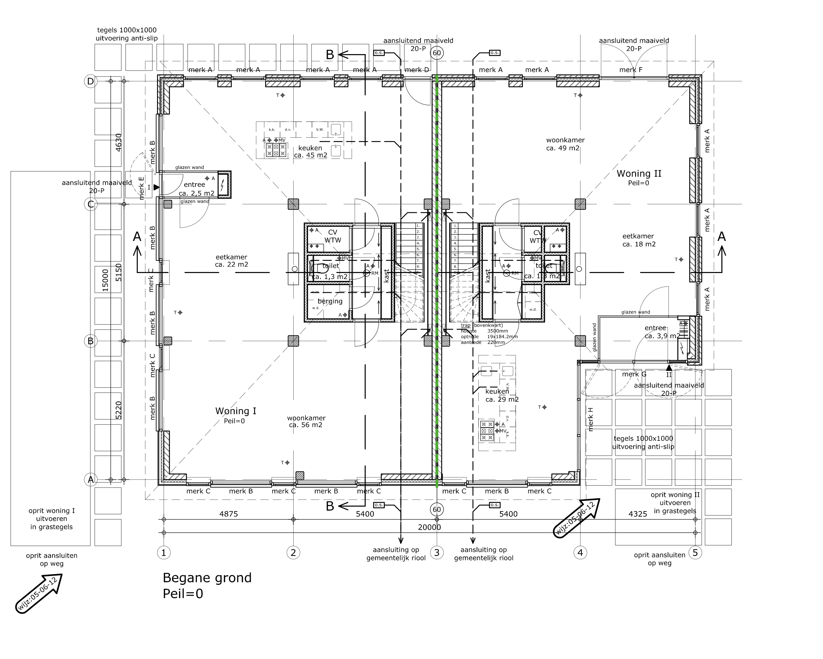
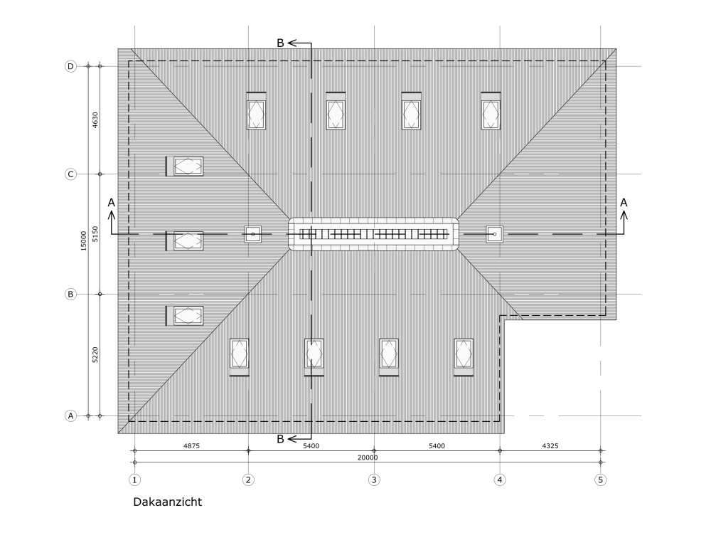
Aan de Herenweg, verscholen tussen het levendige Bergen en de charmante Egmonden, ligt deze bijzondere kavel met bouwplan, bouwtekeningen en een reeds verleende bouwvergunning voor een dubbele woonboerderij. Een unieke kans om uw droomplek te realiseren op een plek waar rust, ruimte en natuur de hoofdrol spelen.

De kavel is royaal van formaat, ca. 9122 m2 groot en ligt op een schitterende, stille locatie met een adembenemend vrij uitzicht over de uitgestrekte weilanden. Vanaf deze plek kijkt u iedere dag uit over het groen, terwijl u ’s ochtends de stilte hoort van het platteland. Toch bent u binnen enkele minuten in het centrum van Bergen of de Egmonden.

De ligging is werkelijk ideaal: aan de rand van het bos met wandel- en fietsroutes direct voor de deur. Hier woont u te midden van de natuur met de duinen en de zee op korte afstand. Het bouwplan is zorgvuldig ontworpen met oog voor omgeving, licht en uitzicht, en biedt alle mogelijkheden om een moderne, comfortabele stolpboerderij te realiseren die past bij deze bijzondere plek.

De kavel wordt als geheel verkocht, inclusief alle bijbehorende plannen en vergunningen, zodat u direct aan de slag kunt. Er is al een bouwvergunning aanwezig.
Een eigen ontwerp op deze kavel is ook mogelijk echter behoeft een nieuwe vergunningsaanvraag .

Wie op zoek is naar rust, ruimte en een unieke woonplek in het groen, zal zich hier direct thuis voelen. Een zeldzame kans om te wonen op een van de mooiste plekken van Bergen, met vrij uitzicht, stilte en de zee binnen handbereik.
Het bijkopen van ca. 30.000 m2 weidegrond is bespreekbaar.

Kenmerken

Overdracht
Vraagprijs
€ 1.695.000 k.k.
Status
beschikbaar
Aanvaarding
in overleg
Bouw
Soort woonhuis
Bouwgrond
Kamers
N/A
Oppervlakten en inhoud
Perceeloppervlakte
9122 m2
faciliteiten
Aan rustige weg
Vrij uitzicht
Beschutte ligging
Buiten bebouwde kom
In bosrijke omgeving
Baerz & Co Property Brochure

Brochure

Video’s

Croon Makelaars

Breelaan 41
1861 GD Bergen

info@croonmakelaars.nl
+31 (0)72 743 32 44

www.croonmakelaars.nl

Informatie / bezichtigingsaanvraag

Angeline Croonen profile image
Angeline Croonen
Real Estate Agent

Een luxe woning kopen in Bergen (Noord-Holland)

Bergen biedt een verfijnde en gastvrije gemeenschap met natuurschoon en culturele diepgang. Bewoners genieten van uitstekende voorzieningen, maatwerkservice en een harmonieuze balans tussen privacy en betrokkenheid – een uitgelezen bestemming voor internationale huizenkopers met hoge verwachtingen.