Villa d'Arte werkt intensief samen met Baerz & Co Luxury Homes International, het trefpunt waar exclusieve huizen en veeleisende kopers samenkomen. Hieronder vindt u een geselecteerd aanbod van de meest exclusieve huizen op alle hot-spots in 20 landen rond de Middellandse zee, de Alpen, Mexico en Dubai.

BERGEN (NH)
Noordlaan 27 - 1861 GM
Nederland

Angeline Croonen profile image
Angeline Croonen
Real Estate Agent
€1.250.000 k.k.
Woonoppervlakte
131m2
Perceeloppervlakte
1976m2
Slaapkamers
2

Omschrijving

Een architectonisch juweeltje in het hart van Bergen.

Verscholen aan een van de mooiste lanen van Bergen ligt deze unieke vrijstaande bungalow op een kavel van bijna 2000 m2, een toonbeeld van de Nieuwe Zakelijkheid. Ontworpen door de gerenommeerde architect Leon Waterman, ademt deze woning de essentie van functionaliteit en esthetiek. Het geheel biedt veel potentie.

Licht, lucht en ruimte zijn de sleutelwoorden van deze woning, gebouwd in de jaren '50 en sindsdien zorgvuldig onderhouden. De principes van de Nieuwe Zakelijkheid komen tot uiting in de platte daken, strakke lijnen en de naadloze verbinding tussen binnen en buiten. De grote schuifpui in de woonkamer vervaagt de grens tussen interieur en exterieur, terwijl de loggia een perfecte overgang biedt naar de omringende natuur. U dient hier zelf wel nog hedendaags woongenot en enige luxe aan toe te voegen, maar dan krijgt u ook wat.

De entree bevindt zich aan de achterzijde en u wordt verwelkomt in een ruime hal met garderobe. De woning beschikt over een lichte woonkamer met sfeervolle haard, een royale slaapkamer met tuindeur en een tweede slaap-/werkkamer. Er zijn twee complete badkamers, waarvan één met bad en bidet. De dichte keuken met aansluitend een functionele bijkeuken met o.a. plek voor de c.v.-ketel, is ook nog in originele staat en is klaar voor uw persoonlijke touch. Een entresol met werkkamer biedt de perfecte plek om thuis te werken of te gebruiken als praktijkruimte, deze ruimte heeft een eigen entree.

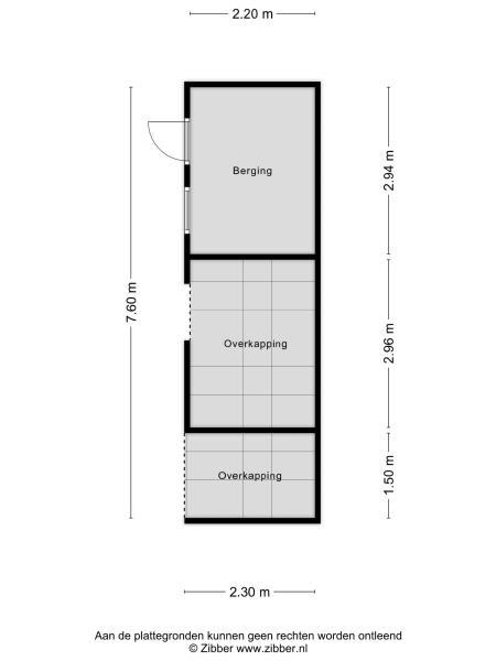
De woning biedt extra's zoals een grote aangebouwde berging/bijkeuken met o.a. de wasmachineaansluiting en een dubbele garage. Verder is er in de weelderige tuin nog een houten berging voor extra opbergruimte. Op de oprit kunnen met gemak meerdere auto's worden geparkeerd.

Geniet van het beste van twee werelden, met de rust van een lommerrijke laan en de levendigheid van het centrum op loopafstand. Het bos is vlakbij voor een verkwikkende wandeling, maar ook uitvalswegen naar Alkmaar en Amsterdam zijn snel bereikbaar.

Ervaar zelf hoe vorm en functie samensmelten in dit unieke stukje Bergen. Bent u een liefhebber van deze architectuur en denkt u hier u droomhuis te kunnen creëren? Maak een afspraak, wij laten u deze woning graag zien.

Kenmerken

Overdracht
Vraagprijs
€ 1.250.000 k.k.
Status
verkocht onder voorbehoud
Aanvaarding
in overleg
Bouw
Soort woonhuis
Bungalow
Soort bouw
vrijstaande woning
Energieklasse
G
Soort dak
lessenaardak
Slaapkamers
2
Badkamers
2
Oppervlakten en inhoud
Woonoppervlakte
131 m2
Overige inpandige ruimte
60 m2
Gebouwgebonden buitenruimte
14 m2
Externe bergruimte
7 m2
Inhoud
705 m3
Perceeloppervlakte
1976 m2
faciliteiten
Tv kabel
Rookkanaal
Schuifpui
Natuurlijke ventilatie
Aan water
Beschutte ligging
In bosrijke omgeving
Baerz & Co Property Brochure

Brochure

Video’s

Plattegronden

Croon Makelaars

Breelaan 41
1861 GD Bergen

info@croonmakelaars.nl
+31 (0)72 743 32 44

www.croonmakelaars.nl

Informatie / bezichtigingsaanvraag

Angeline Croonen profile image
Angeline Croonen
Real Estate Agent