Villa d'Arte werkt intensief samen met Baerz & Co Luxury Homes International, het trefpunt waar exclusieve huizen en veeleisende kopers samenkomen. Hieronder vindt u een geselecteerd aanbod van de meest exclusieve huizen op alle hot-spots in 20 landen rond de Middellandse zee, de Alpen, Mexico en Dubai.

BERGSCHENHOEK
Van Ruysdaellaan 60 - 2661 SE
Nederland

Dominique Blom profile image
Dominique Blom
Register Makelaar Taxateur
€800.000 k.k.
Woonoppervlakte
186m2
Perceeloppervlakte
344m2
Slaapkamers
4

Omschrijving

Deze royale en goed onderhouden 2-onder-1-kapwoning biedt alles wat je mag verwachten: veel leef- en buitenruimte, prettig lichtinval, een eigen oprit en een zonnige, fraai aangelegde achtertuin.

Met vier ruime slaapkamers, een royale keuken, een lichte woonkamer en een praktische garage is dit een ideale woning voor gezinnen, thuiswerkers of iedereen die behoefte heeft aan extra ruimte.

De ligging van de woning in de wijk Oosteindsche Ackers is perfect voor iedereen die op zoek is naar een rustige en kindvriendelijke omgeving. Zo vind je diverse scholen, kinderdagverblijven en het gezellige centrum van Bergschenhoek op loopafstand, liggen veel sport- en recreatievoorzieningen in de directe omgeving en heb je een goede aansluiting op het openbaar vervoer (bus en RandstadRail) en de uitvalswegen (A12, A13, N209 en N472).

Kortom: een fantastische woning met veel mogelijkheden!

Indeling

Voortuin:
Aan de voorzijde bevindt zich de nette voortuin met daarnaast een ruime, bestrate oprit met plek voor één of twee auto's op eigen terrein. Ook is er een oplaadpunt voor een elektrische auto aanwezig.
De garage (geïsoleerd) is voorzien van een kanteldeur en is multifunctioneel inzetbaar. Deze
is zowel bereikbaar via een deur aan de zijkant (tuinzijde) als binnendoor vanuit de
woning.

Begane grond:
Ruime entree/hal met meterkast, garderobe en een trapkast, toilet,
trapopgang naar de eerste verdieping en toegang tot de garage en de woonkamer.
De royale woonkeuken ligt aan de voorzijde van de woning en is voorzien van veel kastruimte, een granieten aanrechtblad en diverse inbouwapparatuur, zoals een gasfornuis met afzuigkap, oven, magnetron,
koel-vriescombinatie en vaatwasser.
De tuingerichte woonkamer is licht en ruim en biedt toegang tot een extra kamer op de begane grond.
Deze multifunctionele ruimte is geschikt als bijvoorbeeld werkkamer, speelkamer of hobbyruimte.

De gehele begane grond is afgewerkt met een prachtige massief
houten vloer.

Achtertuin:
De fraai aangelegde achtertuin is gelegen op het zonnige zuidwesten en biedt volop privacy. Het gazon in combinatie met diverse planten, struiken en bomen zorgt voor een groene, rustige sfeer. Een heerlijke
plek om te ontspannen of gezellig buiten te zitten.

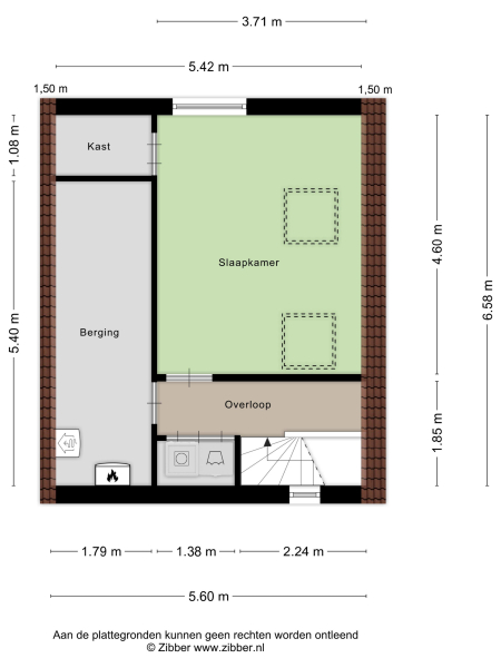
1e verdieping:
Overloop met separaat toilet, toegang tot drie slaapkamers en de badkamer.
Aan de voorzijde bevindt zich de ruime hoofdslaapkamer (met inloopkast), met extra zijraam voor extra daglicht. Aan de achterzijde zijn nog twee ruime slaapkamers gesitueerd, beide met vaste kastruimte.
Eén van de slaapkamers biedt tevens toegang tot een
grote berging.
De badkamer is voorzien van een ligbad, douche, handdoekradiator
en wastafel.

Op de 1e en 2e verdieping ligt een mooie laminaat vloer.

2e verdieping:
Overloop met toegang tot de vierde, zeer royale slaapkamer (met twee extra dakramen).
Hier bevinden zich tevens de aansluitingen voor wasmachine en droger, de cv-installatie (netjes weggewerkt in een kast), mechanische ventilatie en extra bergruimte.
Deze slaapkamer is aan de achterzijde gelegen, beschikt over een
aparte garderobekast en airconditioning.
Bijzonderheden:
- 4 ruime slaapkamers;
- Eigen oprit met garage;
- 1e en 2e verdieping zijn aan de achterzijde voorzien van kunststof kozijnen;
- 10 zonnepanelen en zonneboiler;
- Kindvriendelijke en rustige woonomgeving;
- Oplevering in overleg, conform Lijst van Zaken.

Wij nodigen je van harte uit om deze royale 2-onder-1-kap-woning met eigen ogen te komen bewonderen.

Alle verstrekte informatie moet beschouwd worden als een uitnodiging tot het doen van een bod of om in onderhandeling te treden. De teksten en impressies zijn bedoeld om een goede indruk te geven van het object. Aan de inhoud ervan is de grootst mogelijke zorg besteed. Desondanks is alle informatie nadrukkelijk onder voorbehoud. Er kunnen geen rechten worden ontleend aan deze woninginformatie.

Koopovereenkomst pas rechtsgeldig na ondertekening:
Een mondelinge overeenstemming tussen de particuliere verkoper en de particuliere koper is niet rechtsgeldig. Met andere woorden: er is geen koop. Er is pas sprake van een rechtsgeldige koop als de particuliere verkoper en de particuliere koper de koopovereenkomst hebben ondertekend. Dit vloeit voort uit artikel 7:2 Burgerlijk Wetboek. Een bevestiging van de mondelinge overeenstemming per e-mail of een toegestuurd concept van de koopovereenkomst wordt overigens niet gezien als een 'ondertekende koopovereenkomst'.

Toelichtingsclausule Meetinstructie:
De woning is conform de Branchebrede Meetinstructie (BBMI) opgemeten. De Meetinstructie is bedoeld om een meer eenduidige manier van meten toe te passen voor het geven van een indicatie van de gebruiksoppervlakte. De Meetinstructie sluit verschillen in meetuitkomsten niet volledig uit, door bijvoorbeeld interpretatieverschillen, afrondingen of beperkingen bij het uitvoeren van de meting.
All information provided should be regarded as an invitation to make an offer or enter into negotiations. No rights can be derived from this property description.

Speciale Kenmerken

Zonnepanelen
Air conditioning

Kenmerken

Overdracht
Vraagprijs
€ 800.000 k.k.
Status
verkocht onder voorbehoud
Aanvaarding
in overleg
Bouw
Soort woonhuis
Eengezinswoning
Soort bouw
twee onder een kapwoning
Bouwjaar
1997
Energieklasse
A
Soort dak
tentdak
Slaapkamers
4
Badkamers
1
Oppervlakten en inhoud
Woonoppervlakte
186 m2
Overige inpandige ruimte
19 m2
Gebouwgebonden buitenruimte
1 m2
Inhoud
726 m3
Perceeloppervlakte
344 m2
faciliteiten
Mechanische ventilatie
Airconditioning
Dakraam
Glasvezel kabel
Zonnepanelen
In woonwijk
Baerz & Co Property Brochure

Brochure

Video’s

Plattegronden

DB Makelaars

Dorpsstraat 79
2661 CE Bergschenhoek

dominique@dbmakelaars.nl
+31 107850833

www.dbmakelaars.nl

Informatie / bezichtigingsaanvraag

Dominique Blom profile image
Dominique Blom
Register Makelaar Taxateur