Villa d'Arte werkt intensief samen met Baerz & Co Luxury Homes International, het trefpunt waar exclusieve huizen en veeleisende kopers samenkomen. Hieronder vindt u een geselecteerd aanbod van de meest exclusieve huizen op alle hot-spots in 20 landen rond de Middellandse zee, de Alpen, Mexico en Dubai.

BREDA
Kasteelplein 63 - 4811 XC
Nederland

Lennart van Oosterhout profile image
Lennart van Oosterhout
Real Estate Agent
€895.000 k.k.
Woonoppervlakte
155m2
Perceeloppervlakte
N/A
Slaapkamers
2

Omschrijving

Dit schitterende loftappartement bevindt zich op de bovenste etage van het monumentale complex Justinus van Nassau. Dit markante gebouw, waarvan de oorsprong teruggaat tot circa 1560, kent een rijke geschiedenis en is rond het jaar 2000 zorgvuldig getransformeerd tot een uniek wooncomplex in het hart van de stad.

Het appartement onderscheidt zich door zijn bijzondere ligging onder de imposante monumentale kap. Hierdoor ontstaat een karaktervolle en sfeervolle woonruimte, waarbij de indrukwekkende kapconstructie in het gehele appartement zichtbaar is gebleven. De open indeling en de hoge plafonds zorgen bovendien voor een ongeëvenaard gevoel van ruimte en licht.

De locatie is uitstekend: direct grenzend aan het Valkenberg en op slechts enkele minuten lopen van het station. Ook de Grote Markt, met haar brede aanbod aan horeca en winkels, ligt letterlijk om de hoek.

Praktisch gemak is eveneens gegarandeerd. Zo beschikt u over een eigen parkeerplaats en is er in het souterrain een royale berging aanwezig.
BEGANE GROND
De entree voor bewoners en bezoekers bevindt zich aan het Kasteelplein. U treft hier het bellentableau met videofoon en u heeft toegang tot het trappenhuis en de lift. Ook heeft u vanaf hier toegang tot de parkeergarage en de sfeervolle binnentuin van het complex.
TWEEDE VERDIEPING
HAL/ENTREE
U betreedt het appartement via de L-vormige hal, vanwaar u toegang heeft tot de diverse vertrekken. In deze hal treft u de meterkast (8 groepen en aardlekschakelaar) en vervolgens de volgende ruimtes:

TOILET
Toiletruimte met wandcloset met inbouwreservoir en fonteintje.

LIVING
Bijzonder riante living (ca. 60m²) met open keuken. De ruimtelijke beleving is uniek, door de in het zicht gebleven hoge kapconstructie én de grote glaspartij aan de achterzijde, een raampartij die onder andere fantastisch uitzicht op de Grote kerk van Breda biedt.

Tevens heeft u toegang tot de open keuken en via een trapopgang toegang tot de entresol.

KEUKEN
De open keuken is aan de voorkant van het appartement (met zicht op het Kasteelplein en Valkenberg) gesitueerd. De modulaire inrichting bestaat uit verschillende elementen, met onder andere een meubel met een brede gaskookplaat met rvs afzuigkap, een heteluchtoven en vaatwasser op hoogte. Voorts treft u een eiland met diep rvs blad met 1½ spoelbak en onderkasten en laden.

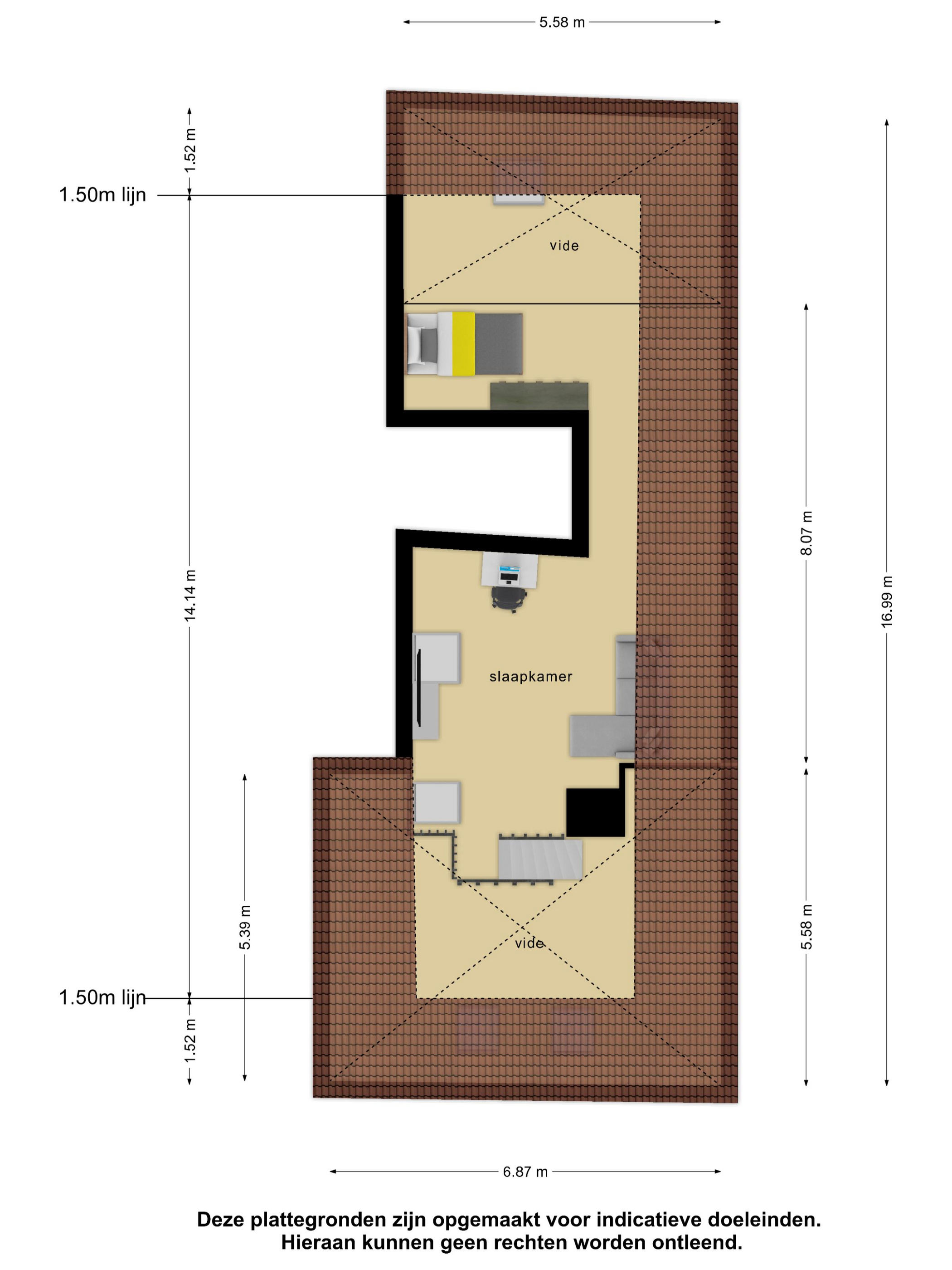
SLAAPKAMER
De slaap- en badkamer treft u aan de andere zijde van de eerdergenoemde hal. Het riante slaapgedeelte (totaal ca. 55 m²) is gelegen aan de kant van het Kasteelplein. Ook in de slaapkamer heeft u volledig zicht op de intact gehouden monumentale kap. In deze kamer zijn twee zeer ruime inloopkasten aanwezig.

BADKAMER
De badkamer is aan de voorzijde van de slaapvleugel gesitueerd. De luxe inrichting bestaat uit een vrijstaand ligbad met designkraan, een douche met natuurstenen wand en designkraan, voorts 2 wastafels met wandkranen.
DERDE VERDIEPING
De entresol (ca. 40 m² vloeroppervlak) is middels een open trap vanuit de woonkamer te bereiken. Deze ruimte is te gebruiken als werkkamer, tv-kamer of hobbyruimte maar is tevens uitstekend geschikt om als extra slaapkamer te fungeren.
TUIN
GEMEENSCHAPPELIJKE BINNENTUIN
De sfeervolle gemeenschappelijke binnentuin is uitsluitend bestemd voor gebruik door bewoners en biedt een zeer rustig en uniek gelegen privé-terras midden in de bruisende binnenstad!

BERGING
De berging (ca. 2.30 x 2.70m) is gelegen in het souterrain van het complex.

PARKEREN
Parkeren geschiedt volledig geautomatiseerd middels een autolift, bij dit appartement hoort één parkeerplaats.
WAT U VERDER NOG MOET WETEN
• Het appartement beschikt over een unieke en monumentale kapconstructie met maximale hoogte van ca. 6 meter;
• Omdat het een rijksmonument betreft is een energielabel niet van toepassing; Het op pagina 42 bepaalde is hiermee niet van toepassing.
• Door de open indeling is er een ruimtelijk effect met verrassend veel lichtinval gerealiseerd;
• Het gehele appartement is voorzien van een fraaie gietvloer;
• Justinus van Nassau was één van de natuurlijke zonen van Willem van Oranje. Het pand, waarvan de historie terug gaat tot omstreeks 1500, ligt te midden van historische gebouwen die in de geschiedenis van Nederland een prominente betekenis hebben gehad. De huidige U-vorm van het gebouw is in ca. 1550 tot stand gekomen door samenvoeging van twee 'hofhuizen'. In 1790 krijgt het gebouw z'n huidige Lodewijk XVI stijl, en is omstreeks 2001 volledig gerenoveerd in twaalf sfeervolle appartementen met een gemeenschappelijke binnentuin;
• Als bewoner van 'Justinus van Nassau' geniet u van een magnifiek uitzicht op tal van historische gebouwen. Gebouwen die niet alleen in de geschiedenis van Breda, maar ook in die van Nederland een prominente betekenis hebben.
• VVE (Vereniging van Eigenaren)
Als eigenaar van een appartement(srecht) bent u van rechtswege lid van de VvE. De bijdrage hiervoor is ca. € 440,00 per maand voor het appartement en € 125,03,- voor de parkeerplaats. De bijdrage is inclusief een reservering voor het reservefonds groot onderhoud. De stukken van de VvE zijn beschikbaar en op te vragen via de makelaar.

Kenmerken

Overdracht
Vraagprijs
€ 895.000 k.k.
Status
beschikbaar
Aanvaarding
in overleg
Bouw
Soort woonhuis
Portiekflat
Soort bouw
appartement
Bouwjaar
1560
Soort dak
samengesteld dak
Slaapkamers
2
Badkamers
1
Oppervlakten en inhoud
Woonoppervlakte
155 m2
Overige inpandige ruimte
0 m2
Externe bergruimte
6 m2
Inhoud
511 m3
faciliteiten
Mechanische ventilatie
Tv kabel
Lift
Dakraam
Aan park
In centrum
Vrij uitzicht
Baerz & Co Property Brochure

Brochure

Video’s

Plattegronden

Storimans en Partners

Ginnekenweg 161
4818 JD Breda

lvanoosterhout@storimansenpartners.nl
+31 76 522 60 90

www.storimansenpartners.nl

Informatie / bezichtigingsaanvraag

Lennart van Oosterhout profile image
Lennart van Oosterhout
Real Estate Agent