Villa d'Arte werkt intensief samen met Baerz & Co Luxury Homes International, het trefpunt waar exclusieve huizen en veeleisende kopers samenkomen. Hieronder vindt u een geselecteerd aanbod van de meest exclusieve huizen op alle hot-spots in 20 landen rond de Middellandse zee, de Alpen, Mexico en Dubai.

DE HOEF
Eerste Hoefweg 3 B - 1426 AK
Nederland

John Korver profile image
John Korver
Real estate agent
€1.469.000 k.k.
Woonoppervlakte
304m2
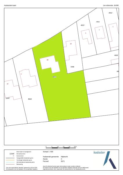
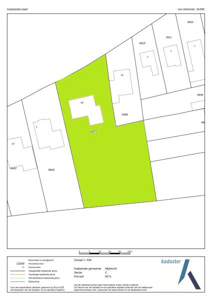
Perceeloppervlakte
2125m2
Slaapkamers
7

Omschrijving

Exclusief en bijzonder: deze riante villa op hoogte biedt een unieke woonbeleving met royale ruimtes en panoramisch uitzicht, alsof je op je eigen terp woont!

Aan de rand van het pittoreske De Hoef, verscholen tussen het groen en grenzend aan open vaarwater, ligt deze bijzondere, zeer royale vrijstaande villa. Een degelijk gebouwd huis met karakter, omringd door een fraai aangelegde tuin met een eigen steiger en haventje, een tuinkas én een sfeervol prieeltje – een waar buitenparadijs waar rust, ruimte en natuur samenkomen. Wonen aan het water, met uitzicht over het polderlandschap - een oase van rust op steenworp afstand van steden als Amsterdam en Utrecht.

Binnen wacht u een verrassend ruime, lichte woning met meerdere slaapkamers, een souterrain met kantoorruimte en een riante garage met plek voor minstens vijf auto’s. De woning is rondom onderheid en biedt comfort en kwaliteit in elke hoek. En het uitzicht? Dat is elke dag een schilderij van wuivend riet, grazende koeien en weidse Hollandse luchten. Ondanks de landelijke ligging bent u in no time in Amsterdam, Utrecht, Den Haag of op Schiphol. En voor de watersportliefhebber: de Vinkeveense Plassen zijn binnen vaarbereik. Hier woont u écht buiten, zonder concessies te doen aan bereikbaarheid en comfort.

Een stijlvolle entree die direct indruk maakt!
Via een charmant bruggetje bereikt u het toegangshek dat leidt naar het royale erf van de woning. Het hekwerk is fraai vormgegeven en praktisch ingedeeld: een brede, openslaande poort voor auto's en een aparte loopdeur voor voetgangers zorgen voor een gastvrije én functionele toegang. De onderheide oprit is uitgevoerd in hoogwaardig beton met een stijlvol design en leidt u langs de zijkant van de woning. Eerst passeert u een helling die toegang biedt tot de inpandige garage – ideaal voor dagelijks gebruik of als praktische werkruimte. Iets verderop bevindt zich de hoofdentree van de woning, eveneens aan de zijkant gelegen, en loopt de oprit naadloos door richting de achtertuin. Een entree met allure, die perfect past bij de solide en stijlvolle uitstraling van deze bijzondere villa.
De indeling van de woning is als volgt:

BEGANE GROND
Comfort, ruimte en stijl – de begane grond als hart van het huis.

Via een brede stoep bereikt u de stijlvolle entree van de woning, gekenmerkt door een groot raam naast de deur met glas en speelse blokverdeling. De voordeur opent naar een indrukwekkende, ruime en representatieve hal die direct de solide kwaliteit van de woning laat zien. Hier vindt u een prachtige hardhouten trap naar zowel de eerste verdieping als het souterrain en toegang tot diverse vertrekken op de begane grond. De hal leidt onder andere naar een royale, licht betegelde badkamer, voorzien van een douchecabine, ligbad, toilet, wastafelmeubel met spiegelkast én mechanische ventilatie. Deze badkamer is zowel via de centrale hal als direct vanuit de naastgelegen slaapkamer te betreden – ideaal in gebruik. De aangrenzende slaapkamer is ruim opgezet en beschikt over vier gelijke, te openen ramen met uitzicht over zowel de oprit als de achtertuin. Via een solide houten schuifdeur heeft u toegang tot een comfortabele inloopkast met raam.

Tegenover de badkamer bevindt zich een ruim separaat toilet met fontein, in dezelfde stijl betegeld als de badkamer en met een te openen raam voor natuurlijke ventilatie. Direct daarnaast vindt u de meterkast, netjes weggewerkt achter een aparte deur. Aan de rechterzijde van de hal bevindt zich een tweede, iets kleinere slaapkamer met twee grote ramen die uitkijken op de voortuin. Deze kamer is veelzijdig in gebruik – ideaal als werkkamer, logeerkamer of speelruimte. Onder de trap is bovendien praktische ruimte voor een garderobe.

Via een fraaie houten glaswand met bijpassende deur betreedt u de sfeervolle woonkamer in L-vorm waar grote raampartijen zorgen voor een overvloed aan daglicht en een prachtig zicht op de voortuin en zijkant van het perceel. Een marmeren plateau met afsluitbare houtgestookte open haard vormt het centrale punt voor een gezellige zithoek. Aan de achterzijde is volop ruimte voor een grote eettafel, pal naast de openslaande deuren naar het verhoogde en onderheide terras – met een adembenemend uitzicht over de tuin, het water en het uitgestrekte polderlandschap. De eetkamer staat via een elegante toog in verbinding met de ruime, lichte keuken, die voorzien is van dubbele openslaande ramen met zicht op de achtertuin. De keuken is uitgerust met volop kastruimte en diverse inbouwapparatuur: een vaatwasser, oven, elektrische kookplaat met afzuigkap en een koel-/vriescombinatie. Aansluitend treft u de praktische bijkeuken met vaste kast (waar zich de verdeling van de vloerverwarming bevindt), extra opbergruimte, en aansluitingen voor de wasmachine en de wasdroger, een extra wastafel én een deur naar het verhoogde terras. De gehele begane grond is voorzien van een doorlopende tegelvloer met comfortabele vloerverwarming. Alle raamkozijnen zijn uitgevoerd in hardhout, en alle ramen zijn voorzien van houten luiken of rolluiken – een stijlvolle combinatie van comfort en klassieke charme.

Een begane grond die alles biedt: ruimte, licht, luxe en een directe verbinding met het buitenleven.
EERSTE VERDIEPING
Slaapcomfort, ruimte en uitzicht – de eerste verdieping met karakter en veelzijdigheid.

Via de robuuste, open hardhouten trap in de centrale hal bereikt u de eerste verdieping van deze royale woning. Bovenaan de trap ontvouwt zich een ruime, lichte overloop die toegang biedt tot de verschillende vertrekken – elk met hun eigen charme en functionaliteit. Aan de zijkant van de woning bevinden zich twee gespiegelde slaapkamers, beide voorzien van een dakkapel en grote ramen met zicht op de oprit. Deze kamers zijn praktisch ingedeeld met een vaste kast en knieschotten voor extra opbergruimte. Eén van deze slaapkamers biedt bovendien toegang tot een fijn balkon aan de zijkant van het huis – een heerlijke plek om ’s ochtends in alle rust van de buitenlucht te genieten. Dit balkon is ook bereikbaar via een tweede deur op de overloop. Aan de achterzijde van de woning, bereikbaar via een klein afstapje vanaf de overloop, bevindt zich een royale kamer met een charmant puntdak en een raam met uitzicht over de achtertuin. Hier is de cv-installatie geplaatst, maar de ruimte leent zich uitstekend als hobbykamer, extra werkplek of speelruimte – multifunctioneel en sfeervol.

Centraal op de overloop vindt u een ruime opbergkast en de grote badkamer, uitgevoerd in wit en blauw tegelwerk. De badkamer is van alle gemakken voorzien: een ligbad, een toilet, een wastafelmeubel met spiegel én een royale inloopdouche. Dankzij de dakkapel met dubbele te openen ramen stroomt het daglicht royaal naar binnen en heeft u een prachtig vrij uitzicht over de achtertuin. Tot slot bevindt zich naast de badkamer een ruime slaapkamer met een groot raam aan de zijkant van de woning. Deze kamer beschikt over twee inbouwkasten en knieschotten aan weerszijden, waardoor ook hier volop bergruimte aanwezig is. Net als op de rest van de woning zijn alle raamkozijnen op deze verdieping uitgevoerd in hoogwaardig hardhout, wat bijdraagt aan de degelijke, duurzame uitstraling van het geheel.

Een verdieping die rust, ruimte en flexibiliteit biedt – perfect voor een gezin, gasten of thuiswerken in alle comfort.
SOUTERRAIN
Veelzijdig souterrain met kantoorruimte, opslag en royale garage.

Via de solide hardhouten trap in de centrale hal op de begane grond daalt u af naar het verrassend ruime souterrain. Wat direct opvalt, is de praktische indeling en het comfort: alle ruimtes zijn voorzien van een tegelvloer en bieden volop mogelijkheden voor diverse woon- of werkdoeleinden. Bij binnenkomst in de hal treft u direct twee deuren. Achter de eerste bevindt zich een ruimte die oorspronkelijk bedoeld was als extra toilet, maar ook uitstekend kan worden ingericht als berging, pantry of andere functionele ruimte. Achter de tweede deur ligt een ruime opslagruimte – ideaal voor voorraad, gereedschap of seizoensgebonden spullen. Verderop in het souterrain vindt u een zeer royale kamer die momenteel dienstdoet als kantoorruimte. Deze lichte en rustige werkplek is voorzien van een vaste kast, die ooit als wijnkast is gebruikt – een charmant detail met historie. De ruimte is multifunctioneel inzetbaar, bijvoorbeeld als atelier, speelruimte of extra slaapkamer. Hier is daglicht met natuurlijk ventilatie aanwezig.

Een andere deur in de hal leidt naar de indrukwekkende garage. Met een robuuste betonnen vloer, daglichttoetreding via een koekoek en ruimte voor ten minste vijf auto’s is dit een absolute droom voor autoliefhebbers, hobbyisten of ondernemers. De garage is toegankelijk via een handmatig bedienbare roldeur met daarnaast een separate loopdeur aan de buitenzijde van de woning. In deze ruimte bevinden zich bovendien enkele technische voorzieningen die bijdragen aan het comfort en de duurzaamheid van de woning: het centrale stofzuigersysteem dat is aangesloten op diverse afzuigpunten op alle woonlagen van het huis, en de omvormer voor de zonnepanelen op het dak.

Een souterrain dat uitblinkt in ruimte, functionaliteit en mogelijkheden – en daarmee een waardevolle aanvulling vormt op het wooncomfort van deze bijzondere woning.
TUIN
Een buitenleven om van te dromen – rust, ruimte en uitzicht in een groene oase.

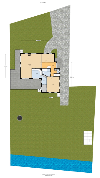
De schitterend aangelegde tuin rondom de woning vormt een waar paradijs voor liefhebbers van natuur, ruimte en buitenleven. De voortuin is stijlvol ingericht met grind en volwassen beplanting, wat zorgt voor een rustige en verzorgde uitstraling die perfect aansluit bij de charme van de woning. Via de onderheide oprit bereikt u een sleephelling die doorloopt naar de achtertuin – ideaal voor het eenvoudig verplaatsen van bijvoorbeeld boten. De achtertuin zelf is ronduit indrukwekkend: een uitgestrekt gazon biedt volop ruimte en kijkt weids uit over het water en het uitgestrekte polderlandschap. Hier ervaart u elke dag opnieuw het ultieme gevoel van vrijheid en ontspanning. Aan de linkerkant van de tuin bevindt zich een tuinkas op fundering – perfect voor wie zijn eigen groenten, kruiden of bloemen wil kweken. Aan de waterkant ligt een eigen steiger met haventje: ideaal voor de pleziervaart, een sloep, of gewoon om aan te zitten met de voeten boven het water. Hiervandaan kunt u met uw eigen boot richting de Vinkeveense Plassen varen. Ook een rondvaart via de Kromme Mijdrecht naar de rivier De Amstel biedt een mooie vaarroute.

Verderop in de tuin vindt u een charmant prieeltje, een idyllisch plekje voor een kop koffie in de ochtendzon of een goed boek in de namiddag. De tuin biedt daarnaast meer dan voldoende ruimte voor het aanleggen van een zwembad – een waardevolle toevoeging met het oog op de steeds warmere zomers. Achter het huis ligt een ruim terras waar u een fijne zithoek kunt creëren. Via een trap bereikt u het verhoogde, onderheide terras direct aan de woning, dat is afgezet met een glazen windscherm. Deze beschutte plek is bij uitstek geschikt voor een luxe eethoek of loungeset, met een adembenemend uitzicht over de tuin, het water en het Hollandse landschap. Het volledige terras rondom de woning is onderheid, wat zorgt voor een solide basis en duurzaamheid op lange termijn.

Een tuin die niet alleen uitnodigt tot genieten, maar ook alle ruimte biedt voor dromen, plannen en ontspannen buitenleven.
Voordelen van deze unieke villa in De Hoef op een rijtje:

+ Wonen aan het water met een adembenemend uitzicht over het polderlandschap – elke dag genieten van rust en ruimte.

+ Eigen steiger met haventje, ideaal voor sloepbezitters of liefhebbers van het buitenleven aan het water.

+ Fraai aangelegde tuin rondom, met onder andere een tuinkas, charmant prieeltje en ruimte voor een zwembad.

+ Riante, lichte woonkamer met grote raampartijen, houtgestookte haard en directe toegang tot een verhoogd terras met windscherm.

+ Volledig onderheide woning én terrassen, wat zorgt voor een solide en duurzame basis.

+ Souterrain met multifunctionele kantoorruimte en een enorme garage met plaats voor ten minste vijf auto's.

+ Ruime keuken en bijkeuken met veel kastruimte, inbouwapparatuur en directe toegang tot het terras.

+ Maar liefst zes (slaap-)kamers verdeeld over drie verdiepingen – ideaal voor gezinnen, gasten of werken aan huis.

+ Perfecte locatie: landelijk wonen in het pittoreske De Hoef, maar op korte afstand van Amsterdam, Utrecht, Den Haag en Schiphol.

+ Vaarafstand tot de Vinkeveense Plassen – de watersport ligt letterlijk aan uw voeten.

+ Bruto vloeroppervlakte van de woning maar liefst 536 m² waarvan 304 m² woonoppervlak en 106 m² overige inpandige ruimte in de woning.

+ Inhoudsmaat van de woning is 1.350 m³.

+ Energielabel A.
Deze woning is een unieke combinatie van rust, ruimte, comfort en bereikbaarheid – een zeldzame kans voor wie op zoek is naar iets bijzonders. Wilt u zelf de sfeer proeven, het uitzicht ervaren en de mogelijkheden ontdekken? Plan dan snel een bezichtiging in. We laten u met plezier alle facetten van deze droomwoning zien, maak een afspraak en laat u verrassen. Tot ziens aan het water in De Hoef!

LOCATIE
De situering is heel goed te noemen. Ver genoeg van de weg om van rust te kunnen genieten in een groene en waterrijke omgeving. Dichtbij genoeg als u van wat beweging om u heen houdt. De Hoef is een dorpskern (circa 900 inwoners) van de gemeente De Ronde Venen en kenmerkt zich door gevarieerde lintbebouwing aan de oevers van de rivier De rivier De Kromme Mijdrecht en hier en daar een kleine concentratie van woningen. Er is een basisschool, en een actieve sportvereniging (voetbal, handbal). Daarnaast is er een biljart- en toneelvereniging actief in het dorpshuis. Verder is er in het dorpshuis een kleine sportzaal aanwezig waar verschillende sporten beoefend kunnen worden. De Hoef heeft een actief dorps-comité die verschillende evenementen organiseert zoals bijvoorbeeld De Hoef Sportief. In het dorp vindt men ook een gezellig restaurant: Pannenkoekenhuis De Strooppot, waar men een lekkere (speciaal-) pannenkoek kan eten. Tevens biedt dit restaurant faciliteiten voor feesten en partijen en dat alles op minder dan 10 minuten loopafstand van de woning. De centra van Mijdrecht, Uithoorn en Nieuwveen zijn op korte afstand gesitueerd en rondom deze woning zijn uitgestrekte polderlandschappen om heerlijk te kunnen fietsen, wandelen en varen.

Kenmerken

Zonnepanelen
Overdracht
Vraagprijs
€ 1.469.000 k.k.
Status
beschikbaar
Aanvaarding
in overleg
Bouw
Soort woonhuis
Villa
Soort bouw
vrijstaande woning
Bouwjaar
1993
Energieklasse
A
Soort dak
zadeldak
Slaapkamers
7
Badkamers
2
Oppervlakten en inhoud
Woonoppervlakte
304 m2
Overige inpandige ruimte
106 m2
Gebouwgebonden buitenruimte
5 m2
Externe bergruimte
19 m2
Inhoud
1350 m3
Perceeloppervlakte
2125 m2
faciliteiten
Mechanische ventilatie
Rookkanaal
Schuifpui
Zonnepanelen
Natuurlijke ventilatie
Aan rustige weg
Vrij uitzicht
Beschutte ligging
Buiten bebouwde kom
Aan vaarwater
Landelijk gelegen
Baerz & Co Property Brochure

Brochure

Video’s

Plattegronden

Korver makelaars

Stationsweg 12
3641RG Mijdrecht

welkom@korvermakelaars.nl
+31 297 25 04 21

www.korvermakelaars.nl

Informatie / bezichtigingsaanvraag

John Korver profile image
John Korver
Real estate agent

Een luxe woning kopen in De Hoef

De Hoef biedt een discrete, op gemeenschap gerichte levensstijl midden in het Hollandse landschap. Bewoners profiteren van stijlvolle huizen, rust aan het water en uitstekende voorzieningen, wat deze plek gewild maakt bij binnen- en buitenlandse kopers en investeerders.