Villa d'Arte werkt intensief samen met Baerz & Co Luxury Homes International, het trefpunt waar exclusieve huizen en veeleisende kopers samenkomen. Hieronder vindt u een geselecteerd aanbod van de meest exclusieve huizen op alle hot-spots in 20 landen rond de Middellandse zee, de Alpen, Mexico en Dubai.

DORDRECHT
Buiten Walevest 124 - 3311 AD
Nederland

Johan Oosterlee profile image
Johan Oosterlee
Director/owner
€895.000 k.k.
Woonoppervlakte
202m2
Perceeloppervlakte
N/A
Slaapkamers
3

Omschrijving

Meer dan 200 m2 woonoppervlakte op toplocatie!

Op één van de mooiste locaties aan de rivier en bij de ingang van de Nieuwe Haven ligt dit luxe en volledig gemoderniseerde/gerenoveerde appartement, verdeeld over twee woonlagen met de entree op de begane grond en een fenomenaal dakterras van circa 68 m2 op de topverdieping. Naast een smaakvolle inrichting en afwerking beschikt dit Gemeentelijk monument over energielabel A. Op de 1e verdieping bevinden zich de riante woonkamer met aan de voorzijde een schitterend uitzicht op de rivier, de luxe open keuken en een heerlijk ochtendterras aan de achterzijde. Op de 2e verdieping bevinden zich de luxe en complete badkamer, 3 slaapkamers en 2 inloopkasten en leidt een vaste trap naar een dakterras met een formaat en uitzicht zoals u dit zelden tegenkomt.

Maak dus snel een afspraak en kom kijken en beleven bij dit unieke appartement!
Bijzonderheden:
- Kadastraal bekend: gemeente Dordrecht, sectie F, nummer 1866.
- Gemeentelijk Monument en Beschermd Stadsgezicht.
- Woonoppervlakte: ca. 202 m2 (Inhoud: ca. 684 m3). Gebouwgebonden buitenruimte: ca. 80 m2.
- Energielabel A.
- Volledig voorzien van dubbele beglazing.
- Dak vernieuwd en geïsoleerd in 2024.
- Dakterras met vergunning.
Begane grond:
Entree
Entree op de begane grond in royale hal met trapopgang naar de woonverdieping.
1e verdieping:
Voorportaal
Voorportaal met deur naar terras en de toiletruimte.

Toilet
De betegelde toiletruimte is voorzien van een vrijhangend toilet.

Terras (oppervlakte ca. 9 m2)
Terras op het oosten, ideaal voor "het kopje koffie in de ochtendzon" met een verrassend leuk zicht op bomen en het oude Centrum.

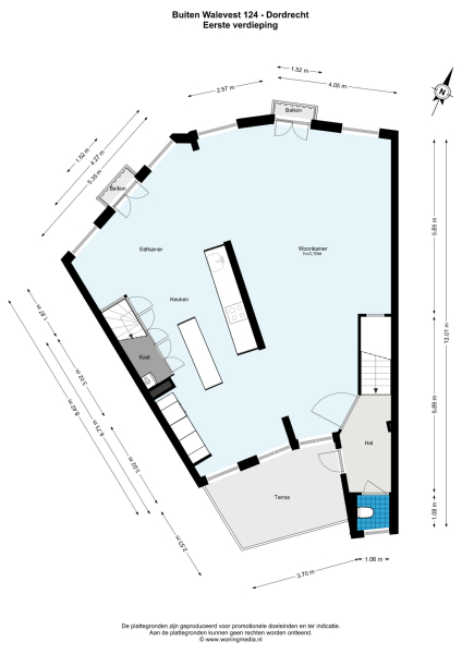
Woonkamer/keuken (oppervlakte ca. 90 m2)
De rest van deze verdieping is in haar geheel de woonruimte. Deze fraaie oppervlakte is verdeeld in een keukengedeelte aan de terraskant, een eetgedeelte aan de rivierzijde en een royal zitgedeelte eveneens aan de rivierzijde. De ruimte waaiert als het ware uit richting de rivier, hetgeen niet alleen zorgt voor een heerlijke lichtinval, maar bovenal voor een fenomenaal uitzicht over het water en het altijd boeiende scheepvaartverkeer. De keuken is opgebouwd uit twee gedeelten en (zoals je mag verwachten) luxe uitgevoerd en voorzien van inbouwapparatuur, zoals een separate koelkast en vriezer, een vaatwasmachine, een quooker, een inductiekookplaat met geïntegreerde afzuiging en een combimagnetron. In het keuken gedeelte bevindt zich een airco-installatie. Aan de rivierzijde bevinden zich nog twee, via openslaande deuren te bereiken, bescheiden balkons. De totale ruimte (inclusief keuken) is voorzien van een geweven vinyl vloerafwerking. Via een fraaie kastenwand met deur is er toegang tot de trap naar de 2e verdieping.
2e verdieping:
Overloop
Ruime en centrale overloop met ruimte voor de wasmachine en droger en de trapopgang naar het dakterras.

Badkamer (ca. 3,17 x 3,28 m.)
De badkamer is luxe afgewerkt met een fraaie lichtinval, een ligbad, een inloopdouche en een wastafelmeubel. Een vaste kast met opstelplaats CV-combiketel.

Toilet
Separate toiletruimte.

Slaapkamer 1 (ca. 4,17 x 4,11 m.)
Slaapkamer met zicht op de rivier en voorzien van twee inloopkasten van respectievelijk 4 m2 en 6 m2 en airconditioning.

Slaapkamer 2 (ca. 2,82 x 3,22 m.)
Slaapkamer.

Slaapkamer 3 (ca. 5,99 x 2,51 m.)
Slaapkamer met eveneens zicht op de rivier.
3e verdieping:
Dakterras (oppervlakte ca. 68 m2)
Hier schieten eigenlijk woorden tekort om het uitzicht op de rivier, de zonbeleving en de indrukwekkende historisch binnenstad als achtergrond te beschrijven. Het beste is om dit maar gewoon te komen beleven.
De vermelde oppervlakte (m²) en inhoud (m³) zijn vastgesteld conform de branche brede NVM cs meetinstructie op basis van de NEN2580:2007 NL. De informatie in deze brochure is met de nodige zorg vastgesteld. Aan deze gegevens kunnen echter geen rechten worden ontleend, alle aansprakelijkheid van OZP-makelaars is derhalve uitgesloten. Voorts zijn wijzigingen voorbehouden.

Kenmerken

Air conditioning
Overdracht
Vraagprijs
€ 895.000 k.k.
Status
beschikbaar
Aanvaarding
in overleg
Bouw
Soort woonhuis
Bovenwoning
Soort bouw
appartement
Bouwjaar
1901
Energieklasse
A
Soort dak
plat dak
Slaapkamers
3
Badkamers
1
Oppervlakten en inhoud
Woonoppervlakte
202 m2
Overige inpandige ruimte
0 m2
Gebouwgebonden buitenruimte
80 m2
Inhoud
684 m3
faciliteiten
Airconditioning
Aan water
In centrum
Vrij uitzicht
Aan vaarwater
Baerz & Co Property Brochure

Brochure

Video’s

Plattegronden

Kolpa-OZP Makelaars

Vissersdijk Beneden 25
3319 GW Dordrecht

oosterlee@ozp-makelaars.nl
+31 786351753

www.kolpa-ozp.nl

Informatie / bezichtigingsaanvraag

Johan Oosterlee profile image
Johan Oosterlee
Director/owner

Een luxe woning kopen in Dordrecht

Dordrecht biedt een uitgebalanceerde mix van cultureel erfgoed, verfijnd wonen en persoonlijke dienstverlening. De discrete gemeenschap, stijlvol gerestaureerde woningen en internationale allure maken de stad een exclusieve bestemming voor wie privacy en klasse zoekt.