Villa d'Arte werkt intensief samen met Baerz & Co Luxury Homes International, het trefpunt waar exclusieve huizen en veeleisende kopers samenkomen. Hieronder vindt u een geselecteerd aanbod van de meest exclusieve huizen op alle hot-spots in 20 landen rond de Middellandse zee, de Alpen, Mexico en Dubai.

HARLINGEN
Achlumerdijk 133 - 8862 AL
Nederland

Ellen Schoneveld profile image
Ellen Schoneveld
Real Estate Agent
€1.977.000 k.k.
Woonoppervlakte
1043m2
Perceeloppervlakte
7744m2
Slaapkamers
12

Omschrijving

Natuur, vaarwater, ruimte, dubbel wonen in high-end villawijk!

Uniek waterwonen! Op een privé eiland aan de Elfsteden route, ligt deze gemoderniseerde kop-hals-romp woonboerderij met weiland en vrij uitzicht over het vogelbroedgebied aan de rand van een villawijk op steenworp afstand van het centrum van de pittoreske havenstad Harlingen.

Riant luxe wonen met de sfeer van toen; 7 slaapkamers, waarvan 5 met en-suite badkamer en 2 met gedeelde royale badkamer.
De mogelijkheden zijn talrijk, want behalve met een groot gezin kan je hier ook riant wonen en een B&B, inspiratiecentrum exploiteren, of riant wonen en thuiswerken en/of zorg combineren.

Een lange oprijlaan geeft via een sierlijke smeedijzeren elektrische poort toegang tot een ruim bestraat parkeerterrein aan de achterkant van de woonboerderij.
De imposante houten voormalige staldeuren geven direct aan waar de entree zich bevindt. Als u door deze deuren binnen komt in het glazen voorportaal ziet u voor u 3 moderne ruimtes die nu zijn ingericht als kantoor, maar voor allerlei doeleinden gebruikt kunnen worden. Het open middelpunt van de grote deel is te gebruiken als huiskamer, fitness- of vergaderruimte. Alle vertrekken ogen licht en sfeervol door de glazen wanden en de imposante in het zicht gelaten prachtige oude balken en binten tot aan de nok toe. De ruime pantry en separate toiletgroepen zijn aan de achterkant van de voormalige deel gesitueerd.
Aan de rechter kant van de deel zijn beneden 4 moderne kamers met en-suite badkamers gecreëerd. Ook daar is de rustieke sfeer en het gevoel van buiten wonen behouden. Elke kamer heeft een eigen opgang.
De riante bovenverdieping van de deel herbergt nog 3 prachtige multi-functionele ruimtes plus een enorme hobby- of entertainmentruimte, een grote bergzolder, een gezellige bar en een volledig uitgeruste kookstudio. Alles in een modern jasje met behoudt van oude details. De indrukwekkende kap van de deel is op een prachtige manier gerenoveerd en betimmerd.
Het gemoderniseerde voorhuis aan de zuidkant van de boerderij kunt u betreden via het terras met voordeur naar de hal aan de zijkant van de woning of binnendoor via de voormalige deel. Het heeft een lichte sfeervolle ruime opkamer in gebruik als woonkamer waarbij de oude schouw en authentieke ronde bedstee deuren in het oog springen. De hoger gelegen kamer geeft een panoramisch uitzicht over het eigen weiland, het vogelbroedgebied, de Harlingervaart en de dijk met daarachter de Waddenzee. De nieuwe moderne woonkeuken met prachtige eikenhouten vloer is royaal, voorzien van een provisiekelder plus alle mogelijke luxe inbouwapparatuur en heeft openslaande deuren naar het “serre”-terras alwaar je heerlijk beschut kunt zitten met uitzicht over de mooie tuin en het water met aanlegsteiger. De smeedijzeren gaskachel geeft de keuken een nostalgische uitstraling. Onder de keuken is de voormalige melkstal met originele estriken vloer omgetoverd tot een bekabelde recent geïsoleerde entertainment ruimte, voorzien van radiatoren.
De hal geeft toegang tot de master bedroom voorzien van een stijlvolle en-suite badkamer met vrijstaand ligbad, separaat toilet, inloop stortdouche en dubbele wastafelmeubels. Na de badkamer loopt u langs een royale inloopkast met mat-glazen deuren naar de slaapkamer. Deze heeft een deur naar het zuid-terras en geïsoleerde karakteristieke stalramen. Het bed met een elektrisch geïntegreerd verzonken tv-meubel staat prominent in de kamer waarachter een grote vaste kastenwand als “dressing room” is geplaatst. Deze vertrekken hebben allen vloerverwarming.
Een ruime 2e grote badkamer voorzien van ligbad, douche, designradiator, vloerverwarming, 2 wastafelmeubels, separaat toilet, bidet en afgesloten witgoedruimte is tevens gesitueerd op de begane grond.
Het voorhuis heeft boven nog 2 ruime lichte slaapkamers, elk met eigen trapopgang, overloop en kastruimte.

BEGANE GROND
De begane grond is in twee delen ingedeeld/in gebruik.
-Het oude gemoderniseerde voorhuis met een moderne woonkeuken voorzien van alle mogelijke inbouwapparatuur met openslaande deuren naar het terras/serre aan de waterkant, een opkamer met fabuleus uitzicht als woonkamer, een voormalige melkstal als entertainment room, een luxe master bedroom met stijlvolle en-suite badkamer en inloopkleedkast. De centraal gelegen hal geeft ook toegang tot een 2e grote badkamer beneden voorzien van separaat toilet en afgesloten witgoedruimte.
-De voormalige stal, is verbouwd en heeft 4 royale kamers met allen en-suite badkamer en eigen opgang. In deze deel zijn beneden tevens 4 moderne vertrekken met pantry en toiletgroepen gesitueerd rondom een moderne grote opengewerkte multi-functionele ruimte met zicht op de prachtige nok.
-Het is vrij eenvoudig om de deel of alleen de begane grond hiervan om te toveren tot een volledig zelfstandig woonhuis voor een groot gezin. Zie hiervoor onze artist impressie.

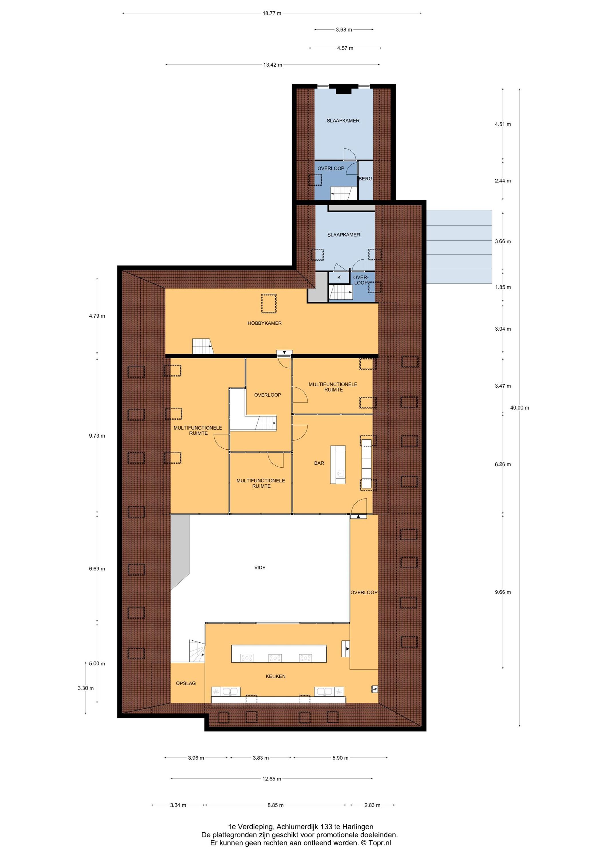
VERDIEPING
De verdieping van het voorhuis heeft 2 sfeervolle slaapkamers, elk te bereiken via een eigen trapopgang met overloop, kastruimte, dakkapellen en dakramen.
De verdieping van de voormalige deel heeft 3 royale vertrekken plus een grote entertainment ruimte, een gezellige bar en een professionele kookstudio.

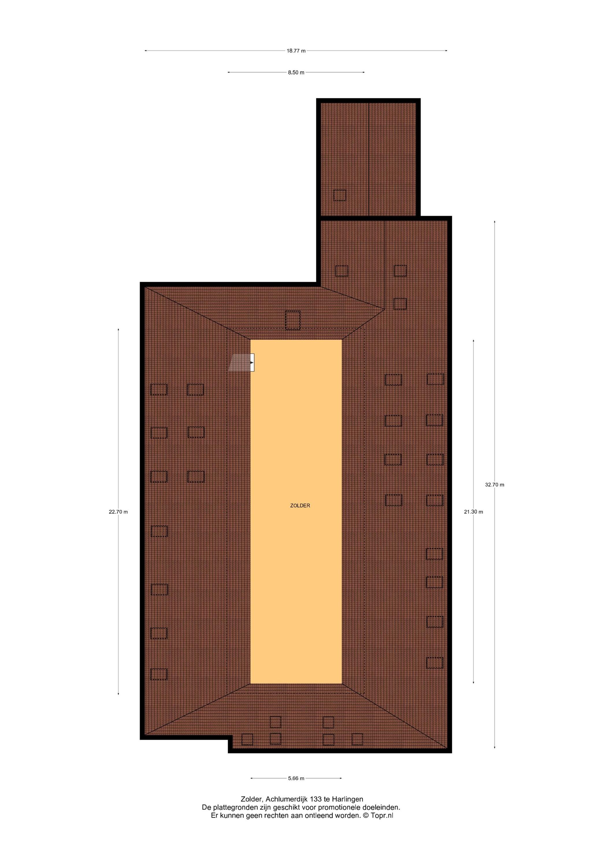
ZOLDER
Boven de voormalige stal/deel ligt een riante zolder. Deze heeft stahoogte en is te bereiken middels een vaste trap in de entertainment ruimte op de verdieping van de deel.

DE DEEL
De voormalige deel is op professionele wijze gemoderniseerd waarbij alles onder handen is genomen.
De imposante open staldeuren met glazen entree, valt direct op bij aankomst op Harlingen Staete. Er zijn 4 prachtige volledig ingerichte kamers met en-suite badkamer gerealiseerd.
Verder zijn beneden 3 royale multifunctionele vertrekken gesitueerd rondom een grote opengewerkte zaal met zicht op de imposante nok in het midden van de deel. Alle vertrekken zijn licht en sfeervol door het gebruik van veel glas, het behoud van de oude stalramen en de prachtige oude binten van het 6-kant van de deel in het zicht. Het spreekt voor zich dat alle high-tech aansluitingen/bekabeling voor internet, licht, presentaties etc. aanwezig zijn alsook een pantry en separate toiletgroepen.
Via 2 trapopgangen kunt u naar de 1e verdieping van de deel waar ook daar overal het prachtige oude houten gebint en de modern en sfeervol afgetimmerde nok op valt. Deze verdieping herbergt nog 3 royale multifunctionele ruimtes, een grote entertainment ruimte met zolder, een gezellige bar en een professionele kookstudio.
De gehele deel beneden is voorzien van vloerverwarming en is met het voorhuis verbonden via een tussendeur.
Het is vrij eenvoudig om de deel of alleen de begane grond hiervan om te toveren tot een volledig zelfstandig woonhuis voor een groot gezin. Zie hiervoor onze artist impressie.

TUIN/WEILAND/ERF
De woonboerderij is als het ware gesitueerd op een eiland, het is omzoomd door doorgaand vaarwater met de Elfsteden Harlingervaart aan de zuidkant van het perceel. De prachtige bomen en treurwilgen langs de steigers, kano/boothelling en kanten benadrukken de waterrijke omgeving. De hardhouten steigers bieden voldoende afmeerplaats voor talloze vaartuigen.
Het weiland met fris wit hekwerk ligt aan de voorkant van de woning en is o.a. geschikt voor het houden van kleinvee of paarden.
De verzorgde en fraai aangelegde tuin heeft meerdere zon- en schaduwterrassen, borders, diverse soorten bomen w.o. zelfs een kleine boomgaard. Er is meer dan voldoende bestrate parkeergelegenheid en zelfs elektrische oplaadpalen ontbreken niet.

BIJZONDERHEDEN
-energielabel A
-kwalitatief goed gerenoveerde kop-hals-romp woonboerderij
-gemoderniseerd woonhuis met woonkeuken
-mogelijkheden voor exploiteren B&B, kookstudio, 5 moderne kantoorruimtes & vergaderzaal
-mogelijkheden voor dubbele bewoning/groepsbewoning/mantelzorg of kangoeroe wonen
-direct aan elf-steden water met prachtige vaarroutes
-mogelijkheden voor het houden van paarden/kleinvee op eigen terrein
-asbestvrij verklaring
-4 elektrische laadpalen
-hardhouten steigers voor meerdere boten
-boothelling
-schilderwerk 2020
-rijafstand Amsterdam 1 uur
-10min fietsen van wadden/vertrek veerboten

HARLINGEN
Harlingen aan de Waddenzee, benoemd tot de mooiste havenstad van Friesland met maar liefst zeshonderd monumenten heeft het allemaal. Wonen aan de wadden zee met haar prachtige flora en fauna, op steenworp afstand van de wadden eilanden, stranden en alle voorzieningen als gezellige restaurants, winkelstraatjes, scholen en een treinstation.
De havenstad heeft een historie die teruggaat tot het begin van de 13e eeuw. De nautische inslag bepaalt tot op de dag van vandaag de sfeer in en rond het karakteristieke havengebied waar het in de zomer een komen en gaan is van (internationale) toeristen, zeelieden en waddengebied liefhebbers.
Dankzij de locatie ten noorden van de afsluitdijk is Amsterdam bereikbaar binnen het uur.

DISCLAIMER
Deze informatie is met zorg samengesteld en deels gebaseerd op gegevens van de verkoper en/of derden. Hoewel gestreefd is naar een zo accuraat mogelijke weergave, kunnen aan de inhoud, waaronder teksten, bijlagen, plattegronden en maatvoering, geen rechten worden ontleend.
De vermelde oppervlakten zijn gemeten conform de NEN 2580-meetinstructie, waarbij afwijkingen niet zijn uit te sluiten. Deze aanbieding is geheel vrijblijvend en bedoeld als uitnodiging tot het uitbrengen van een bod. Voor objecten ouder dan 25 jaar worden standaard een ouderdoms- en indien van toepassing asbestclausule opgenomen in de koopakte.

Kenmerken

Alarm system
Overdracht
Vraagprijs
€ 1.977.000 k.k.
Status
beschikbaar
Aanvaarding
in overleg
Bouw
Soort woonhuis
Woonboerderij
Soort bouw
vrijstaande woning
Bouwjaar
1832
Energieklasse
A
Soort dak
zadeldak
Slaapkamers
12
Badkamers
6
Oppervlakten en inhoud
Woonoppervlakte
1043 m2
Overige inpandige ruimte
0 m2
Gebouwgebonden buitenruimte
21 m2
Inhoud
4264 m3
Perceeloppervlakte
7744 m2
faciliteiten
Mechanische ventilatie
Alarminstallatie
Tv kabel
Rookkanaal
Dakraam
Aan water
Aan rustige weg
Vrij uitzicht
Beschutte ligging
Aan vaarwater
Landelijk gelegen
Baerz & Co Property Brochure

Brochure

Video’s

Plattegronden

Villa Friesland Makelaardij

Lange Marktstraat 1
8911 AD Leeuwarden

info@villafriesland.nl
+31 (0)58 - 23 006 23

www.villafriesland.nl

Informatie / bezichtigingsaanvraag

Ellen Schoneveld profile image
Ellen Schoneveld
Real Estate Agent

Een luxe woning kopen in Harlingen

Harlingen biedt veeleisende kopers een perfecte mix van erfgoed, culturele charme en exclusiviteit aan het water. De gemeenschap waardeert privacy en persoonlijke service, met een internationale aantrekkingskracht geworteld in authenticiteit en een verfijnde levensstijl.