Villa d'Arte werkt intensief samen met Baerz & Co Luxury Homes International, het trefpunt waar exclusieve huizen en veeleisende kopers samenkomen. Hieronder vindt u een geselecteerd aanbod van de meest exclusieve huizen op alle hot-spots in 20 landen rond de Middellandse zee, de Alpen, Mexico en Dubai.

KEKERDOM
Duffeltdijk 9 - 6579 JD
Nederland

€1.595.000 k.k.
Woonoppervlakte
387m2
Perceeloppervlakte
4200m2
Slaapkamers
9

Omschrijving

In Kekerdom staat dit in neoclassicistische stijl gebouwde herenhuis. De voormalige pastorie dateert uit circa 1850 en heeft een monumentale status. Het woonhuis is in 2007 volledig gerenoveerd en wordt omringd door meerdere aanbouwen, waaronder een voormalige paardenstal en een serre. De serre is in 2024 gerenoveerd. Met tien kamers, diverse bijvertrekken en gelegen op een bijzonder royaal perceel (4.200 m2), biedt dit herenhuis een combinatie van historie, rust, ruimte en natuur, een veelzijdigheid die u zelden zult tegenkomen.

De woning ligt in een bijzonder fraaie omgeving, midden in natuurgebied de Gelderse Poort. Aan de ene zijde kijkt het huis uit op de karakteristieke Sint-Laurentiuskerk en aan de andere zijde op het open, groene landschap waar wilde paarden en runderen vrij rondlopen en de ooievaars hun vaste nest bewonen. Aan de ene kant van de tuin ligt een oude boomgaard, de andere zijde van de tuin is onderdeel van het natuurgebied en bestaat uit een wilde tuin met eigen (vis)water. Deze combinatie van dorpse historie en uitgestrekte riviernatuur is kenmerkend voor de omgeving. De ligging nabij de Ooijpolder en in natuurgebied de Millingerwaard maakt dit tot een ideale woonplek voor liefhebbers van wandelen, fietsen en het buitenleven. Rust en ruimte staan hier centraal en tegelijkertijd zijn er vele voorzieningen en uitvalswegen in de buurt. Het centrum van Nijmegen is per auto in een kwartier bereikbaar.

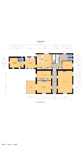
Indeling:

Begane grond
Entree, toegang tot de hal, twee woonkamers, twee werkkamers en een keuken/bijkeuken. Vrijwel de gehele begane grond is voorzien van een natuurstenen vloer met vloerverwarming. Aan de voorzijde van de woning bevinden zich twee woonkamers. De kleinere woonkamer grenst aan de serre en staat hiermee in directe verbinding via schuifdeuren. De serre heeft een deur naar de boomgaard. De grotere woonkamer is via dubbele toegangsdeuren bereikbaar en biedt veel leefruimte. Beide woonkamers beschikken over een sfeervolle schouw. De hal geeft toegang tot een kleine werkkamer en een grotere werkkamer, twee separate toiletten (beide met fonteintje), een inbouwkast, en de keuken. De keuken is voorzien van een AGA met vier ovens. Er zijn twee praktische inbouwkasten en een grote voorraadkast met daarin de trap naar de kelder. Verder heeft de keuken openslaande deuren naar een prachtige terras dat aan de zijde van het natuurgebied om het huis heen loopt. Aansluitend bevindt zich de bijkeuken, in dezelfde stijl uitgerust. De bijkeuken beschikt over een trapje, naar de boomgaard. Aan de bijkeuken grenst een slaapkamer, bereikbaar via enkele traptreden. Deze slaapkamer beschikt over een eigen badkamer met tweede toilet, fonteintje en een douche. Door deze indeling leent dit deel van de woning zich bij uitstek voor gebruik als zelfstandige leefruimte, bijvoorbeeld voor inwoning, gastenverblijf of werken aan huis.

Eerste verdieping
Overloop met trapopgang en toegang tot vijf ruime slaapkamers, waarvan diverse zijn voorzien van riante inbouwkasten. De badkamer is voorzien van vloerverwarming en is compleet uitgevoerd met een ligbad, dubbele wastafel, derde toilet en een douche met dubbele kraan. De indeling maakt deze verdieping geschikt voor grotere huishoudens of multifunctioneel gebruik van de kamers (slaap-, werk- of hobbyruimte).

Tweede verdieping
Via een vaste trap is de zolderverdieping bereikbaar, deze strekt zich uit over het voorhuis. Het achterhuis is voorzien van een plat dak. De zolder biedt toegang tot het dak aan de weiland zijde.

Overige ruimten
Onder de bijkeuken/slaapkamer is een paardenstal gevestigd die nu in gebruik is als schuur.
Verderop in de boomgaard staat, los van het huis, een tweede, ruime schuur.
De kelder is bereikbaar via de trap in de keuken.

Bijzonderheden:

- Bouwjaar 1850: het voorhuis stamt uit 1850, het achterhuis uit 1897 en de serre uit 1907 en de paardenstal uit 1900.
- Woonoppervlakte ca. 387 m², kelder ca. 31 m² en externe berging ca. 34 m².
- Perceelgrootte ca. 4.200 m².
- Monumentale status, het is een oude pastorie.
- Ligging buitendijks, omgeven door natuur.
- Plat dak met uitzicht op het natuurgebied.
- Energielabel C, geldig tot 21-10-2035.
- Volledig gerenoveerd in 2007, de serre in 2024.
- Vrijwel de gehele begane grond is voorzien van vloerverwarming, evenals de badkamer op de eerste verdieping.
- Ecohome systeem waarmee vloerverwarming per kamer geregeld kan worden.
- Vrijwel het gehele pand is voorzien van monumentenglas, enkele ramen (zoals die van de serre) zijn voorzien
van HR++glas.
- Verwarming middels HR CV-ketel 2023, vloerverwarming (2022), gevelkachel (2013).
- Warm water middels warm waterboiler (2023), geiser (2013).
- Zie Vragenlijst deel B voor bijzonderheden m.b.t. perceel.

Kenmerken

Overdracht
Vraagprijs
€ 1.595.000 k.k.
Status
beschikbaar
Aanvaarding
in overleg
Bouw
Soort woonhuis
Landhuis
Soort bouw
vrijstaande woning
Bouwjaar
1850
Energieklasse
C
Soort dak
schilddak
Slaapkamers
9
Badkamers
2
Oppervlakten en inhoud
Woonoppervlakte
387 m2
Overige inpandige ruimte
31 m2
Externe bergruimte
34 m2
Inhoud
1520 m3
Perceeloppervlakte
4200 m2
faciliteiten
Mechanische ventilatie
Glasvezel kabel
Natuurlijke ventilatie
Aan bosrand
Aan water
Vrij uitzicht
Beschutte ligging
Open ligging
Buiten bebouwde kom
In bosrijke omgeving
Baerz & Co Property Brochure

Brochure

Video’s

Plattegronden

Verbeek Makelaars

Mariaplein 6
6522 AV Nijmegen

f.van.camp@verbeek-makelaars.nl
+31 24 22 00 111

www.verbeek-makelaars.nl

Informatie / bezichtigingsaanvraag

Freek van Camp profile image
Freek van Camp
Real Estate Agent

Een luxe woning kopen in Kekerdom

Kekerdom kenmerkt zich door authenticiteit, tijdloze landschappen en een discreet levensritme. De regio biedt privacy, culturele verbinding en hoogwaardige dienstverlening voor wie rust en internationale toegankelijkheid zoekt in Nederlands landelijk wonen.