Villa d'Arte werkt intensief samen met Baerz & Co Luxury Homes International, het trefpunt waar exclusieve huizen en veeleisende kopers samenkomen. Hieronder vindt u een geselecteerd aanbod van de meest exclusieve huizen op alle hot-spots in 20 landen rond de Middellandse zee, de Alpen, Mexico en Dubai.

ST.-JACOBIPAROCHIE
Oosteinde 38 - 9079 LC
Nederland

Ellen Schoneveld profile image
Ellen Schoneveld
Real Estate Agent
€850.000 k.k.
Woonoppervlakte
473m2
Perceeloppervlakte
1872m2
Slaapkamers
10

Omschrijving

Monumentaal wonen met eindeloze mogelijkheden – Seulle State

Aan de rand van het dorp Sint-Jacobiparochie, vlak bij de Unesco Werelderfgoed Waddenzee, staat een parel van formaat: Seulle State. Deze indrukwekkende rijks monumentale villa – een voormalige dokterswoning – ademt geschiedenis, grandeur en sfeer. Met zijn statige uitstraling, unieke stijlkenmerken en een woonoppervlakte van ca. 475 m² op een royaal perceel van 1.872 m², is dit een pand dat niet alleen ruimte biedt, maar ook talloze perspectieven.

Wonen, werken, creëren of combineren? Alles is denkbaar.
Seulle State wordt momenteel gebruikt als royaal familiehuis, maar de schaal, indeling en het bijbehorende vrijstaande koetshuis maken het object bij uitstek geschikt voor uiteenlopende invullingen, zoals:
*Dubbele bewoning of mantelzorg (kangoeroe wonen)
*Praktijkruimte, atelier of kantoor aan huis
*Kleinschalige B&B of gastenverblijf
*Zorg gerelateerde functies zoals dagbesteding of groepswonen (na toestemming gemeente)
*Of een stijlvolle combinatie van wonen en werken

Het voormalige koetshuis biedt bovendien volop mogelijkheden voor een zelfstandige werk- of woonruimte, na verbouwing en met medewerking van de gemeente.

Karakter en comfort
Binnen ademt het huis klassieke elegantie: hoge plafonds, marmeren vloeren, originele schouwen, parket, glas-in-loodramen en fraaie ornamenten zijn met zorg bewaard gebleven. Tegelijk is er ruimte voor modernisering naar eigen smaak en wens.

Een zeldzame kans
Bent u op zoek naar een karaktervolle villa waar u uw eigen woon- of werkconcept kunt realiseren, omringd door rust, natuur en historie? Dan is Seulle State een unieke kans in Friesland. Een plek die uitnodigt tot leven, creëren en genieten – in stijl.

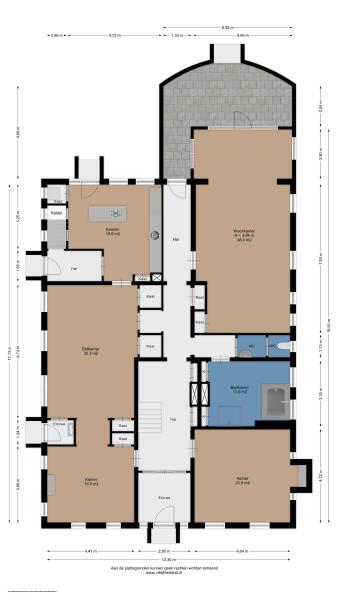
Indeling in het kort
Begane grond
Statige entree met originele details zoals een marmeren vloer, vloermozaïek en glas-in-loodramen. Diverse representatieve kamers waaronder een werkkamer, eetkamer, zitkamer, tuinkamer en een woonkeuken met bijkeuken en toegang tot de kelder. Badkamer en separaat toilet aanwezig.

Eerste verdieping
Zes slaapkamers rond een ruime vide, waarvan meerdere met inbouwkasten en eigen wastafel. Tweede badkamer met bad en douche, aparte wasruimte, toegang tot een zonnig dakterras en een loggia met mozaïekvloer.

Tweede verdieping (zolder)
Via vaste trap bereikbare, hoge zolderverdieping met daglicht en originele houten details. Onbenut en naar eigen inzicht af te werken.

Koetshuis
Vrijstaand (ca. 58m2), met openslaande deuren, inbouwkasten en verdieping met stahoogte. Geschikt voor werk-, gasten- of woonfunctie (na aanpassing en toestemming).

Tuin, erf en parkeren
Lommerrijke tuin rondom met zon- en schaduwterrassen, oude kastanjebomen, sierborders en volop privacy. Ruime parkeergelegenheid op eigen terrein.

Sint-Jacobiparochie – Pelgrimsdorp aan het Wad
Op een steenworp van het Unesco Werelderfgoed Waddenzee ligt het karakteristieke dorp Sint-Jacobiparochie – ook wel bekend als Sint Jabik – een geliefde plek voor rustzoekers, wandelaars en pelgrims. Dit markante dorp vormt het beginpunt van het Friese Jabikspaad, de pelgrimsroute naar Santiago de Compostela, en is met recht het bekendste pelgrimsdorp van Noord-Nederland.
In Sint-Jacobiparochie geniet u van het beste van twee werelden: de rust van het Friese landschap én de nabijheid van dagelijkse voorzieningen. Het dorp beschikt over onder andere een huisartsenpraktijk, fysiotherapie, basisschool, kinderdagverblijf, restaurant en diverse sportverenigingen. Voor uitgebreide voorzieningen zoals supermarkten, winkels en horecagelegenheden ligt het regiodorp St.-Annaparochie op slechts enkele autominuten afstand.
De blikvanger van het dorp is De Groate Kerk, gebouwd in 1844 naar ontwerp van architect Thomas Romein. Deze monumentale kerk is niet alleen een cultureel middelpunt met concerten en exposities, maar ook een refugio waar pelgrims kunnen overnachten. Vanuit het dorp vertrekken diverse fiets- en wandelroutes door het uitgestrekte landschap, langs terpen, dijken en vergezichten over het Wad.
Dankzij de centrale ligging zijn ook steden als Franeker (16 min), Harlingen (20 min) en Leeuwarden (20 min) vlot bereikbaar. Zelfs de Randstad ligt op slechts vijf kwartier rijden. De nabijheid van de Afsluitdijk maakt verbinding met Noord-Holland en de rest van Nederland moeiteloos.

DISCLAIMER
Deze informatie is met zorg samengesteld en deels gebaseerd op gegevens van de verkoper en/of derden. Hoewel gestreefd is naar een zo accuraat mogelijke weergave, kunnen aan de inhoud, waaronder teksten, bijlagen, plattegronden en maatvoering, geen rechten worden ontleend.
De vermelde oppervlakten zijn gemeten conform de NEN 2580-meetinstructie, waarbij afwijkingen niet zijn uit te sluiten. Deze aanbieding is geheel vrijblijvend en bedoeld als uitnodiging tot het uitbrengen van een bod. Voor objecten ouder dan 25 jaar worden standaard een ouderdoms- en indien van toepassing asbestclausule opgenomen in de koopakte.

Kenmerken

Overdracht
Vraagprijs
€ 850.000 k.k.
Status
beschikbaar
Aanvaarding
in overleg
Bouw
Soort woonhuis
Villa
Soort bouw
vrijstaande woning
Bouwjaar
1915
Soort dak
schilddak
Slaapkamers
10
Badkamers
3
Oppervlakten en inhoud
Woonoppervlakte
473 m2
Overige inpandige ruimte
50 m2
Gebouwgebonden buitenruimte
23 m2
Externe bergruimte
58 m2
Inhoud
2320 m3
Perceeloppervlakte
1872 m2
faciliteiten
Tv kabel
Jacuzzi
Schuifpui
Dakraam
Natuurlijke ventilatie
Aan rustige weg
In centrum
Vrij uitzicht
Beschutte ligging
Landelijk gelegen
Baerz & Co Property Brochure

Brochure

Video’s

Plattegronden

Villa Friesland Makelaardij

Lange Marktstraat 1
8911 AD Leeuwarden

info@villafriesland.nl
+31 (0)58 - 23 006 23

www.villafriesland.nl

Informatie / bezichtigingsaanvraag

Ellen Schoneveld profile image
Ellen Schoneveld
Real Estate Agent

Een luxe woning kopen in Sint Jacobiparochie

St.-Jacobiparochie biedt een authentiek landelijk karakter, verfijnde woningen en een hechte gemeenschap. De ingetogen luxe, privacy en culturele nabijheid spreken internationale kopers aan op zoek naar kwaliteit en echtheid.